Local commercial - 86 m² au Perreux-sur-Marne
favoris
2 550 € / mois
Description :
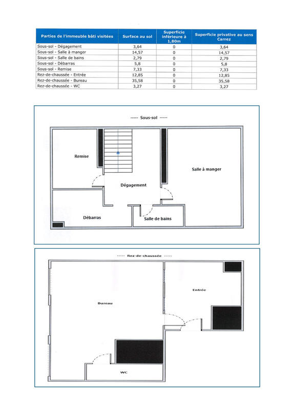
A louer local commercial 86 M2 centre ville , bureaux commerces sans nuisances, vitrine 8 mètres, rdc 52 M2 climatisé, exposé ouest, accès direct sous sol aménagé 34 M2 avec espace stockage, cuisine, douche. Entrée rue et entrée immeuble privative, place de stationnement en sous sol. Loyer mensuel 2300 euros ht et hors charges. Immeuble récent, locaux refait à neuf il y a 3 ans, aucun travaux
Afficher plus de détails
Informations sur ce bien :
L'intérieur :
-
86 m²
-
Sans cuisineInformations complémentairesSans cuisine
L'extérieur :
-
Parking
Les équipements :
-
Climatisation
Autres :
-
Année de construction :1990
Copropriété :
-
Copropriété :Oui
-
Nombre de lots :30
Synthèse
Local commercial à Le Perreux-sur-Marne
2 550 € / mois
Surface :
86 m²
Transaction :
Location (locaux professionnels)
Référence :
1_1418
Charges :
250 €
Informations complémentaires
Les charges sont inclues dans le loyer affiché
Montant de la caution :
6 900 €
Honoraires :
9 €
Informations complémentaires
Dont honoraires état des lieux : 258 €
Date de publication :
Aujourd'hui à 00:25
Contacter l'annonceur
Performance énergétique
A
B
C
D
E
F
G
Gaz à effet de serre
A
B
C
D
E
F
G
Agent
IMMOSPID
CASADIO Stephane
Mettre en avant cette annonce
Signaler une erreur
Localisation :
L'adresse exacte n'est pas renseignée. Le bien se situe dans cette zone.
Performance énergétique :
Logement économe
A
B
C
D
E
F
341
kWh/m²/an
9
kg CO₂/m²/an
G
Logement énergivore
Faible émission de CO₂
A
B
9
kg CO₂/m²/an
C
D
E
F
G
Forte émission de CO₂
Date du diagnostic :
21 novembre 2021
Locations de locaux commerciaux à proximité
- 4 locations de locaux commerciaux à Fontenay-sous-Bois (2.3 km)
- 5 locations de locaux commerciaux à Neuilly-sur-Marne (2.5 km)
- 1 location de local commercial à Neuilly-Plaisance (2.7 km)
- 9 locations de locaux commerciaux à Champigny-sur-Marne (2.8 km)
- 1 location de local commercial à Joinville-le-Pont (3.2 km)
- 12 locations de locaux commerciaux à Saint-Maur-des-Fossés (4.5 km)
- 6 locations de locaux commerciaux à Vincennes (4.8 km)
- 2 locations de locaux commerciaux à Villemomble (5 km)
- 2 locations de locaux commerciaux à Gagny (5.4 km)