• Terrain constructible - 1 150 m²
  • Terrain constructible - 1 150 m²
  • Terrain constructible - 1 150 m²
408 000 €
1 150 m²

Description :

Permis purgé, Projet sécurisé ,4 maisons duplex RE2020 avec garage

Dans un quartier résidentiel calme et recherché du Muy, à proximité immédiate des axes routiers et des commodités, opportunité rare d'acquérir un projet immobilier clé en main, prêt à être lancé.

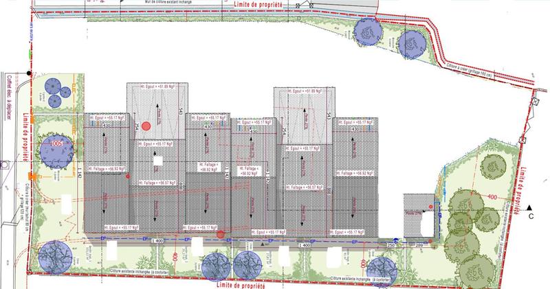
Il s'agit d'une parcelle de 1 150 m² en zone UC du PLU, supportant actuellement une maison à démolir, avec permis de construire obtenu et purgé de tout recours, autorisant la réalisation de 4 maisons neuves en duplex (R+1) avec garages et jardins privatifs.

Situation administrative sécurisée

Permis de construire purgé (délais de recours des tiers expirés), Affichage réglementaire conforme

Prescription archéologique INRAP à prévoir, procédure courante sur le secteur, à réaliser après démolition de l'existant

Le projet autorisé:

4 maisons duplex R+1

Surface habitable : 112 m² par logement, Surface de plancher totale : 448 m², 4 garages privatifs de 13,60 m², Surface totale des garages : 63,67 m²
Jardins privatifs:
Maison 1 : 90 m², Maison 2 : 30 m², Maison 3 : 28 m², Maison 4 : 41 m²

Configuration rationnelle et équilibrée :

2 maisons mitoyennes d'un côté, 2 maisons mitoyennes des deux côtés
Optimisation foncière cohérente avec le marché local.

Emplacement et marché:
Accès rapide aux voiries principales et à l'autoroute A8
Fréjus / Saint-Raphaël et plages à moins de 20 minutes
Draguignan à environ 15 minutes
Gare TGV Les Arcs - Draguignan à proximité

Secteur recherché pour la résidence principale, avec une demande locative stable sur les maisons récentes offrant garage + extérieur.

Valeur locative intéressante (neuf RE2020, marché fluide, forte demande sur le secteur)

Maisons mitoyennes neuves, prestations modernes, jardins privatifs, garages.

Points forts de l'opération

Permis purgé = risque juridique maîtrisé
Typologie recherchée (maison + garage + jardin)
Produit rationnel et vendable (ni luxe, ni bas de gamme)
Double stratégie possible : revente à la découpe ou patrimonial locatif
Marché locatif sain sur le secteur
Projet cohérent avec le tissu urbain local

Dossier complet sur demande :
plans PC, implantation, surfaces détaillées, règlement PLU / fouilles archéologiques.

Prix de vente 408000 euros Honoraires agence charge vendeur inclus

Pour visiter et vous accompagner dans votre projet, contactez Frédéric REYTER, au 0632195646 ou, par courriel à f.reyter@proprietes-privees.com. Selon l'article L.561.5 du Code Monétaire et Financier, pour l'organisation de la visite, la présentation d'une pièce d'identité vous sera demandée. Cette annonce a été rédigée sous la responsabilité éditoriale de Frederic REYTER agissant sous le statut d'agent commercial immatriculé au RSAC DRAGUIGNAN 517789954 auprès de SAS PROPRIETES PRIVEES, au capital de 44 920 euros, ZAC LE CHÊNE FERRÉ - 44 ALLÉE DES CINQ CONTINENTS 44120 VERTOU ; SIRET 487 624 777 00040, RCS Nantes. Carte Professionnelle Transactions sur immeubles et fonds de commerce (T) et Gestion immobilière (G) n° CPI 4401 2016 000 010 388 délivrée par la CCI Nantes - Saint Nazaire. Compte séquestre n°30932508467 BPA SAINT-SEBASTIEN-SUR-LOIRE (44230). Garantie GALIAN-SMABTP - 89 rue de la Boétie, 75008 Paris - n°28137 J pour 2 000 000 euros pour T et 120 000 euros pour G. Assurance responsabilité civile professionnelle par GALIAN-SMABTP n° de police 28137.J Mandat réf : 433864 - Le professionnel garantit et sécurise votre projet immobilier.

Frederic REYTER (EI) Agent Commercial - Numéro RSAC : DRAGUIGNAN 517789954 - .
Les informations sur les risques auxquels ce bien est exposé sont disponibles sur le site Géorisques : www. georisques. gouv. fr

Afficher plus de détails

Informations sur ce bien :

L'intérieur :

  • 1 150 m²

Terrain :

  • Viabilisé :
    Non
Synthèse
Terrain constructible à Le Muy
408 000 €
Surface : 1 150 m²
Prix au m² : 355 €
Transaction :
Achat
Référence :
433864FREY
Date de publication :
Il y a plus de 7 jours
Terrain constructible - 1 150 m²
Agent
Propriétés Privées
Propriétés Privées
Frederic REYTER
Appeler
Écrire
Mettre en avant cette annonce
Signaler une erreur

Localisation :

Annonces similaires
Annonces immobilières récentes