• Bureau - 728 m²
  • Bureau - 728 m²
  • Bureau - 728 m²
7 886 € HT / mois
728 m²

Description :

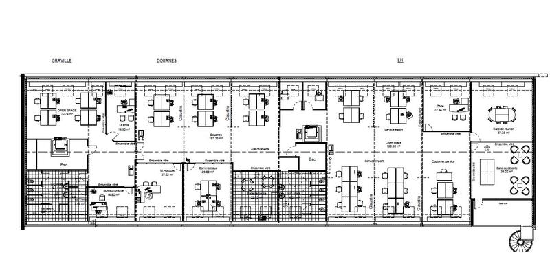
Votre cabinet TH2 Conseil et Transaction vous propose à la location un plateau de bureaux d'environ 728 m² (incluant les parties communes).

Situé Quartier de l'Eure - Au dernier étage d'un bâtiment entièrement rénové, un plateau de bureaux à aménager totalement, tout est à créer, des plans ont déjà été étudiés par le bailleur.
Possibilité de créer un rooftop.
les travaux peuvent être effectuer par le bailleur en incluant un surloyer, ils peuvent être également divisés entre les deux parties, ou pris en charge par le locataire avec une franchise de loyer. ( possibilité de louer plus grand ou plus petit).

Entrée sécurisé, ascenseur, baie de brassage
Service à la carte allant jusqu'au ménage si vous le désirez.

Les charges incluent l'eau, l'électricité et l'entretien des communs.

Parking disponibles à 250 € HT/unité/an.

Accès/Desserte :
Bus : ligne 3 et 5.
A 10 mn du centre ville et de la gare en voiture,
A 7 mn de l'entrée / sortie de ville,
A 10 mn de l'A131

Bail : Commercial
Durée : 3/6/9 ans
Régime fiscal : TVA
Dépôt de garantie : 3 mois
Loyer et charges : Trimestriels et d'avance
Indexation : Annuelle
Indice : ILAT

TH2 Conseil et Transaction 06.69.40.16.93
Nous ne manquerons pas de vous donner plus d'informations concernant ce bien.

Honoraires de 28 392 € HT à la charge du locataire. Dépôt de garantie 23 660 €. Non soumis au DPE. Les informations sur les risques auxquels ce bien est exposé sont disponibles sur le site Géorisques : georisques.gouv.fr.

Afficher plus de détails

Informations sur ce bien :

L'intérieur :

  • 728 m²
    Informations complémentaires
    Min. : 364 m²

L'extérieur :

  • Parking

Les équipements :

  • Ascenseur
  • Accès handicapé

Autres :

  • Travaux à prévoir :
    Oui
  • Étage :
    RDC

Copropriété :

  • Copropriété :
    Oui
Synthèse
Bureau à Le Havre
7 886 € HT / mois
Surface : 728 m²
Transaction :
Location (locaux professionnels)
Référence :
LP347-TH2
Montant de la caution :
23 660 €
Honoraires :
28 392 €
Informations complémentaires
Honoraires hors taxes
Date de publication :
Il y a plus de 7 jours
Bureau - 728 m²
Agent
TH2 CONSEIL ET TRANSACTION
TH2 CONSEIL ET TRANSACTION
TH2 CT
Appeler
Écrire
Mettre en avant cette annonce
Signaler une erreur

Localisation :

Performance énergétique :

Bien non soumis au Diagnostic de Performance Énergétique (DPE)

Annonces similaires
Annonces immobilières récentes