• Terrain - 1 200 m²
  • Terrain - 1 200 m²
  • Terrain - 1 200 m²
675 000 €
1 200 m²

Description :

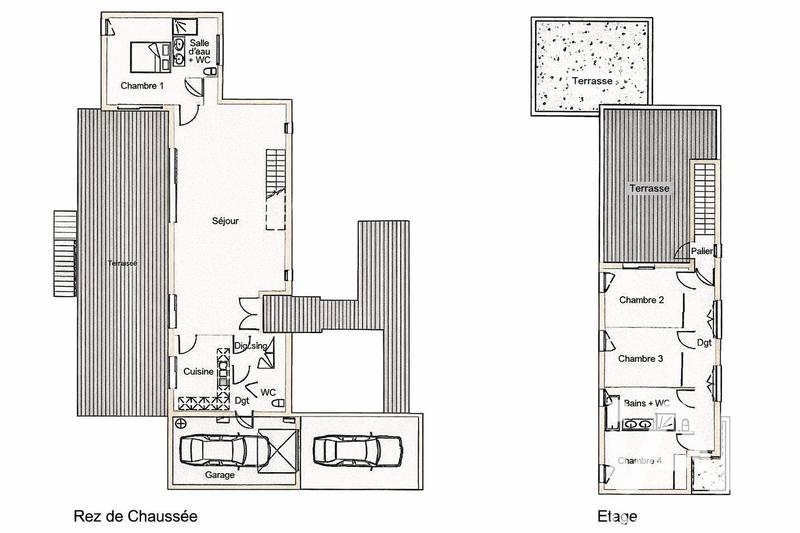
Iad France - Anthony Heymann vous propose : Situé à 3 km seulement de la Dune du Pilat et à 5 minutes de la plage du Pyla, ce terrain de plus de 1 200 m² offre un cadre privilégié, en lisière d’une forêt classée en zone naturelle et inconstructible. Bénéficiant d’une excellente exposition et totalement à l’abri des regards, il se trouve dans une zone résidentielle paisible, dans un environnement rare et préservé. Les commerces ainsi que les plages sont accessibles en quelques minutes. Un permis de construire définitif a été accordé pour la réalisation d’une maison d’architecte contemporaine à toit plat, développant 148 m² habitables et comprenant un garage et des terrasses. La construction n’ayant pas encore débuté, le projet peut être entièrement adapté, tant dans l’agencement intérieur que dans les aménagements extérieurs, afin de correspondre pleinement à vos attentes. Le projet prévoit notamment : - Une vaste pièce de vie avec cuisine ouverte d’environ 65 m², baignée de lumière - Quatre chambres avec rangements, dont une suite parentale en rez-de-chaussée avec salle d’eau - À l’étage : trois chambres de 12 m², ainsi qu’une salle de bain équipée d’une baignoire, d’une douche et de WC Un environnement d’exception pour concrétiser un projet immobilier haut de gamme, au cOEur de la nature et à proximité immédiate de l’océan. Les visuels présentés correspondent au permis de construire validé. Dossier complet et informations complémentaires disponibles sur demande. Le prix inclut exclusivement le terrain viabilisé. Honoraires d'agence à la charge du vendeur. Bien non soumis au DPE. Les informations sur les risques auxquels ce bien est exposé, y compris l'obligation légale de débroussaillement, sont disponibles sur le site Géorisques : http://www.georisques.gouv.fr. La présente annonce immobilière a été rédigée sous la responsabilité éditoriale de M Anthony Heymann mandataire indépendant en immobilier (sans détention de fonds), agent commercial de la SAS I@D France immatriculé au RSAC de bordeaux sous le numéro 824308506, titulaire de la carte de démarchage immobilier pour le compte de la société I@D France SAS.

Afficher plus de détails

Informations sur ce bien :

L'intérieur :

  • 1 200 m²

Autres :

  • Mitoyenneté :
    Non

Terrain :

  • Viabilisé :
    Non
Synthèse
Terrain à La Teste-de-Buch
675 000 €
Surface : 1 200 m²
Prix au m² : 563 €
Transaction :
Achat
Référence :
1983821
Date de publication :
Il y a plus de 7 jours
Terrain - 1 200 m²
Agent
iad france
iad france
Anthony Heymann
Appeler
Écrire
Mettre en avant cette annonce
Signaler une erreur

Localisation :

L'adresse exacte n'est pas renseignée. Le bien se situe dans cette zone.
Annonces similaires
Annonces immobilières récentes