Maison - 181 m² - 9 pièces à Ingenheim

favoris
  • Maison - 181 m² - 9 pièces
  • Maison - 181 m² - 9 pièces
  • Maison - 181 m² - 9 pièces
  • Maison - 181 m² - 9 pièces
179 000 €
181 m²
9 pièces
7 chambres

Description :

Sous compromis : Bienvenue dans votre futur chez vous, à INGENHEIM.

Situées dans une ruelle calme du village, à quelques pas des champs, ces maisons bénéficient d'une localisation idéale. Les commodités de HOCHFELDEN et WILWISHEIM sont à proximité : gare, bus, épicerie, écoles, collèges, médecins, boulangeries, restaurants...

Cette maison des années 1980 est implantée sur un terrain de 4,59 ares, comprenant un jardin de 128 m², une cour intérieure de 70 m² et une grange de 140 m² avec une hauteur de 8 mètres.

Avec 182 m² habitables et au sol, le rez-de-chaussée offre :
- Une entrée par la cour intérieure avec un kachelofen
- Un salon/séjour de 28 m²
- Une chambre de 15 m² avec une arrivée d'eau
- Un couloir avec placards intégrés
- Une cuisine fermée de 10 m² attenante à la salle à manger de 19 m² (possibilité d'ouvrir pour créer une cuisine américaine)
- Une salle de bain simple vasque
- Un WC séparé.

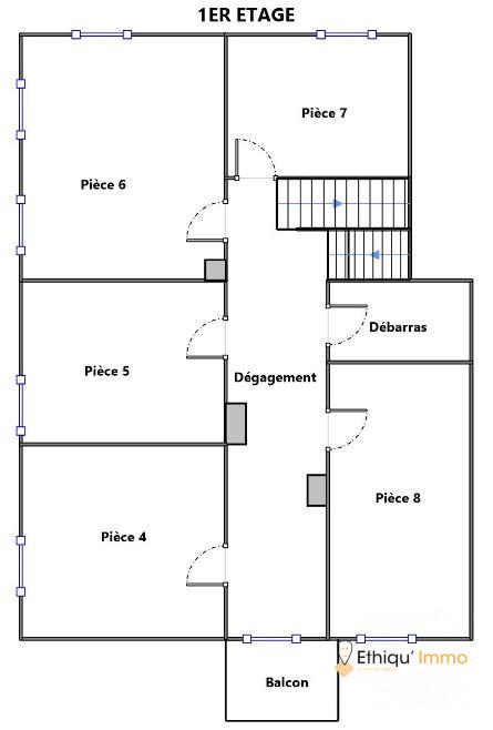
À l'étage, vous trouverez :
+ 5 chambres allant de 10 à 18 m² ;
+ Un balcon et un dressing de 4 m².

Annexes :
° Une cave semi-enterrée
° Un grenier
° Un jardin de 128 m²
° Une cour intérieure de 70 m²
° Une grange de 140 m² avec une hauteur de 8 mètres

Cette maison dispose d'un chauffage au fuel et d'une fosse septique entretenue régulièrement et aux normes.

Investissement = des devis ont été fait par des professionnelles pour la création de 2 appartements, un par étage = estimation 120 000€ TOUT compris.

Possibilité de transformer une maison en un espace professionnel ou commercial avec la grange pour stockage

**
Parcelle supplémentaire optionnelle :
Un terrain non constructible de 2,57 ares avec un poulailler et un garage double se trouve juste à côté, dont la vente peut être discutée avec les futurs acheteurs potentiels.
**

Le logement étant actuellement vide, un aménagement virtuel a été réalisé sans modifier les dimensions des pièces, afin de vous aider à mieux visualiser les volumes et la disposition.

Xavier FREISS : Votre spécialiste en transaction O7 49 48 67 98

Frais d'agence inclus dans le prix.

Classe énergie E, Classe climat D Montant estimé des dépenses annuelles d'énergie pour un usage standard : entre 3000.00 € et 4000.00 € sur les années 2021, 2022 et 2023 (abonnements compris). Les informations sur les risques auxquels ce bien est exposé sont disponibles sur le site Géorisques : georisques.gouv.fr.

Votre conseiller Ethiqu'Immo : Xavier FREISS
Agent commercial (Entreprise individuelle).
www.ethiqu-immo.fr

Afficher plus de détails

Informations sur ce bien :

L'intérieur :

  • 9 pièces
  • 181 m²
  • 7 Chambres
  • 1 Salle de bain
  • 1 Toilette
  • Cave

L'extérieur :

  • Terrasse
  • Balcon
  • 4 Parkings
  • 4 Box

Autres :

  • Année de construction :
    1980
Synthèse
Maison à Ingenheim
179 000 €
Surface : 181 m²
Prix au m² : 989 €
Transaction :
Achat
Référence :
XF_4159-MAISON 562-ETHIQUIMMO
Mandat :
Exclusif
Date de publication :
Il y a plus de 7 jours
Maison - 181 m² - 9 pièces
Performance énergétique
A
B
C
D
E
F
G
Gaz à effet de serre
A
B
C
D
E
F
G
Agent
Ethiqu'Immo
Ethiqu'Immo
Xavier FREISS
Appeler
Écrire
Mettre en avant cette annonce
Signaler une erreur

Localisation :

L'adresse exacte n'est pas renseignée. Le bien se situe dans cette zone.

Performance énergétique :

Logement économe
A
B
C
D
E
325
kWh/m²/an
45
kg CO₂/m²/an
F
G
Logement énergivore
Faible émission de CO₂
A
B
C
D
45
kg CO₂/m²/an
E
F
G
Forte émission de CO₂
Date du diagnostic : 20 août 2024
Estimation des coûts annuels d’énergie du logement : 3 000 € à 4 000 €
Annonces similaires
Annonces immobilières récentes