• Maison - 117 m² - 4 pièces
  • Maison - 117 m² - 4 pièces
  • Maison - 117 m² - 4 pièces
  • Maison - 117 m² - 4 pièces
  • Maison - 117 m² - 4 pièces
  • Maison - 117 m² - 4 pièces
  • Maison - 117 m² - 4 pièces
  • Maison - 117 m² - 4 pièces
  • Maison - 117 m² - 4 pièces
159 900 €
117 m²
4 pièces
2 chambres

Description :

HOUVILLE LA BRANCHE - MAISON DE VILLE DE 117m²

Bienvenue dans votre futur chez-vous ! Nous sommes ravis de vous présenter cette maison de ville de 4 pièces, dépendances, cour extérieure. Profitez de notre pack visibilité permettant de découvrir la maison sous toutes ses formes avec notre visite virtuelle, des photos 4K et des plans 2D.

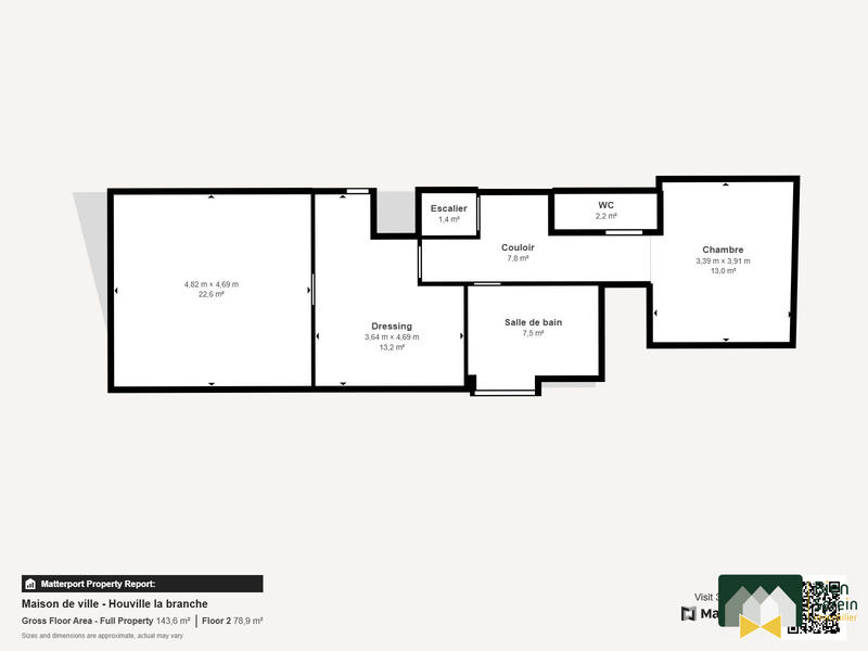
AU REZ-DE-CHAUSSEE :
- Entrée sur cuisine ouverte aménagée et équipée,
- Salle à manger - Séjour,
- Buanderie,
- WC indépendant,
- Accès aux annexes et à la cour extérieur.

À L'ÉTAGE :
- Salle de bains,
- 2 chambres,
- WC indépendant,
- Combles aménageables.

ESPACE EXTERIEUR:
- Cour,
- Stationnements,

CÔTÉ CONFORT :
- Dépendance,
- Cour,
- Double vitrage PVC,
- Poêle à granulés.

L'EMPLACEMENT :
À seulement 5 minutes à pied, vous trouverez un arrêt de bus, pratique pour vos déplacements quotidiens. À 10 minutes à pied, une maternelle et une école élémentaire accueilleront vos enfants dans un environnement sécurisé et éducatif. À 5 minutes en voiture, un commerce d'alimentation générale vous permettra de faire vos courses sans perdre de temps. Plusieurs restaurants, médecins généralistes et crèches sont également accessibles en 10 minutes en voiture, garantissant un cadre de vie pratique et agréable.

Cette maison idéale pour un premier achat est au prix de 159 90€.

N'hésitez pas à contacter votre agent au Noeud Pap' pour obtenir plus d'informations et visiter cette maison ! ??

Honoraires à la charge du vendeur. Classe énergie E, Classe climat B Montant estimé des dépenses annuelles d'énergie pour un usage standard : entre 3269.00 € et 4423.00 € sur les années 2021, 2022 et 2023 (abonnements compris). Les informations sur les risques auxquels ce bien est exposé sont disponibles sur le site Géorisques : georisques.gouv.fr.

Votre conseiller Bien Serein immobilier : Morgan GOHIER
Agent commercial (Entreprise individuelle)
RSAC 910254119

Afficher plus de détails

Informations sur ce bien :

L'intérieur :

  • 4 pièces
  • 117 m²
  • 2 Chambres
  • Cuisine américaine, équipée
    Informations complémentaires
    Américaine, équipée
  • 1 Salle d'eau
  • 2 Toilettes
  • Cave

L'extérieur :

  • 2 Parkings

Autres :

  • Chauffage :
    Individuel
  • Année de construction :
    1900
Synthèse
Maison à Houville-la-Branche
159 900 €
Surface : 117 m²
Prix au m² : 1 367 €
Transaction :
Achat
Référence :
606-BIENSEREIN28
Date de publication :
Il y a plus de 7 jours
Maison - 117 m² - 4 pièces
Performance énergétique
A
B
C
D
E
F
G
Gaz à effet de serre
A
B
C
D
E
F
G
Agent
Bien Serein immobilier
Morgan GOHIER
Appeler
Écrire
Mettre en avant cette annonce
Signaler une erreur

Localisation :

Performance énergétique :

Logement économe
A
B
C
D
E
327
kWh/m²/an
9
kg CO₂/m²/an
F
G
Logement énergivore
Faible émission de CO₂
A
B
9
kg CO₂/m²/an
C
D
E
F
G
Forte émission de CO₂
Date du diagnostic : 06 mai 2025
Estimation des coûts annuels d’énergie du logement : 3 269 € à 4 423 €
Annonces similaires
Annonces immobilières récentes