• Maison - 90 m²
  • Maison - 90 m²
  • Maison - 90 m²
259 000 €
90 m²
3 chambres

Description :

Maison neuve à construire

Nous vous proposons ce joli plain-pied de 3 chambres sur un très beau terrain constructible sur la commune de Harnes.
Ce terrain à Harnes proposé par notre partenaire lotisseur est situé à proximité des commerces, médecins et écoles.
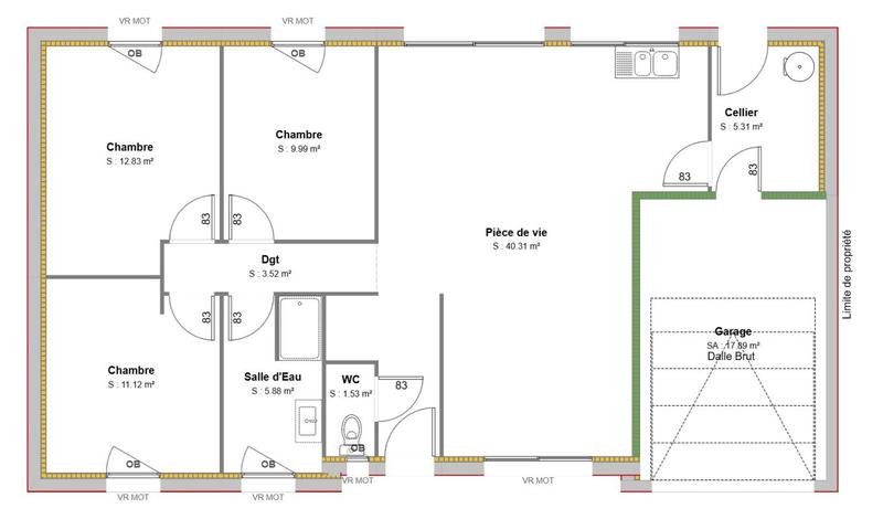
Vous disposerez de 90 m² habitables avec en partie jour une grande pièce de vie lumineuse avec baie vitrée, d'une cuisine ouverte ainsi qu'un cellier.
En partie nuit : 3 belles chambres, une salle de bain et un WC séparé.
Enfin, un garage complète ce bien.

Cette maison est une proposition imaginée par Maisons Home Ready, votre constructeur de maisons à Auchy-les-Mines.
Possibilité de réaliser votre maison personnalisée sur les secteurs de votre choix afin de s'adapter au mieux à votre budget.

MENTIONS LEGALES : Le modèle est totalement adaptable à vos envies et besoins et personnalisable grâce à de nombreuses options de finition. Nous consulter pour plus d'informations. Le prix affiché comprend le coût du terrain et de la construction (frais de notaire et taxes inclus). Les annonces de terrains constructibles sont sélectionnées auprès de nos partenaires fonciers selon disponibilités et autorisation de publicité en vue de construire une maison neuve avec un Contrat de Construction de Maison Individuelle dans le cadre de la loi du 19/12/1990. Ces derniers sont soit des professionnels dûment habilités à la transaction immobilière, soit des particuliers. Les terrains sélectionnés sont disponibles à la date de la première parution de l'annonce. En aucun cas Maisons Home Ready ou ses collaborateurs ne sont propriétaires des terrains, ne jouent un rôle d'intermédiation ou de négociation sur la transaction et ne participent à la vente. Les prix des terrains sont indiqués par nos partenaires fonciers.

Soumis au DPE
Conforme à la réglementation RE2020

Afficher plus de détails

Informations sur ce bien :

L'intérieur :

  • 90 m²
    Informations complémentaires
    Surface habitable : 90 m²
  • 3 Chambres
  • 1 Salle de bain
  • 1 Toilette

Autres :

  • État :
    Neuf
Synthèse
Maison à Harnes
259 000 €
Surface : 90 m²
Prix au m² : 2 878 €
Transaction :
Achat
Référence :
Pavillon_Harnes
Date de publication :
Aujourd'hui à 08:25
Maison - 90 m²
Agent
HOMEREADY
HOMEREADY
Sylvie Merlevelde
Appeler
Écrire
Mettre en avant cette annonce
Signaler une erreur

Localisation :

L'adresse exacte n'est pas renseignée. Le bien se situe dans cette zone.
Annonces similaires
Annonces immobilières récentes