Maison - 120 m² - 5 pièces à Grilly

favoris
  • Maison - 120 m² - 5 pièces
  • Maison - 120 m² - 5 pièces
  • Maison - 120 m² - 5 pièces
  • Maison - 120 m² - 5 pièces
950 000 €
120 m²
5 pièces
4 chambres

Description :

Emplacement exceptionnel - Sur les hauteurs du Mont Mourex, au fond d'une impasse, découvrez cette magnifique villa à construire de 120m².

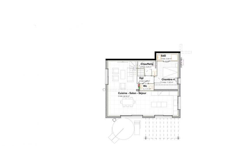
Edifiée sur un terrain de 887 m² et répartie sur 2 niveaux, elle offre, au rez-de-chaussée inférieur, une cuisine ouverte sur la salle à manger et le séjour. Cette lumineuse pièce de vie se prolonge sur une belle terrasse exposée sud / sud-est. Ce niveau comprend également une chambre avec salle de douche attenante, un wc séparé et une chaufferie. L'étage accueille 3 chambres et une salle de bains.

Un garage complète ce bien.

Située dans environnement calme et résidentiel, cette villa aux prestations de grande qualité offre un panorama exceptionnel sur le lac Léman et le massif des Alpes.

Elle bénéficie d'un emplacement privilégié à :
moins de 10 min des douanes de Sauverny et de Chavannes-de-Bogis,
10 min du lac de Divonne-les-Bains
10 min à pied du bus vers la Suisse
moins de 30 min de l'aéroport international de Genève et de la gare Cornavin
Faites construire votre villa neuve dans un environnement exceptionnel, contactez notre équipe au 04 50 40 45 42 pour plus de renseignements.

Honoraires à la charge du vendeur. DPE en cours. Les informations sur les risques auxquels ce bien est exposé sont disponibles sur le site Géorisques : georisques.gouv.fr.

Votre conseiller IFIC Immobilier : Sébastien BOURBON
Agent commercial (Entreprise individuelle)

Afficher plus de détails

Informations sur ce bien :

L'intérieur :

  • 5 pièces
  • 120 m²
  • 4 Chambres
  • 1 Salle de bain
  • 1 Salle d'eau
  • 2 Toilettes
  • Séjour de 48 m²

L'extérieur :

  • Terrasse
  • 2 Parkings
  • Box

Autres :

  • Année de construction :
    2024
Synthèse
Maison à Grilly
950 000 €
Surface : 120 m²
Prix au m² : 7 917 €
Transaction :
Achat
Référence :
VM2713-IFIC01
Date de publication :
Il y a plus de 7 jours
Maison - 120 m² - 5 pièces
Agent
IFIC INTERNATIONAL
IFIC INTERNATIONAL
Sébastien BOURBON
Appeler
Écrire
Mettre en avant cette annonce
Signaler une erreur

Localisation :

L'adresse exacte n'est pas renseignée. Le bien se situe dans cette zone.
Annonces similaires
Annonces immobilières récentes