Maison - 112 m² - 4 pièces à Goos

favoris
  • Maison - 112 m² - 4 pièces
  • Maison - 112 m² - 4 pièces
  • Maison - 112 m² - 4 pièces
325 000 €
112 m²
4 pièces
3 chambres

Description :

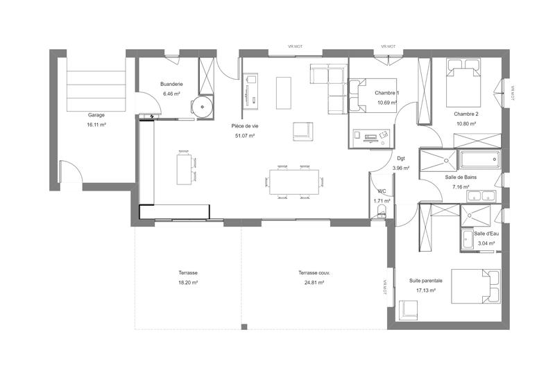
À l'approche de l'été, Maisons d'en France vous propose cette belle maison à Goos, ville située à une vingtaine de minutes à l'Est de Dax. Sur un terrain hors lotissement d'environ 1000 m², c'est un véritable havre de paix dans un environnement vert qui vous est proposé. Une maison moderne et tout confort d'environ 112 m² + garage de 16 m² et une terrasse couverte avoisinant les 25 m² vous apportera tout le confort nécessaire pour profiter pleinement de ce cadre paisible. Elle aura pour atout majeur de concilier fonctionnalité et confort avec trois chambres (dont 1 suite parentale avec salle d'eau et dressing). Une salle de bain commune comprenant douche à l'italienne, baignoire et double vasque viendra compléter la partie nuit. Côté jour, un salon-séjour-cuisine-entrée d'une surface avoisinant les 51 m² offrira à votre espace de vie une belle luminosité par l'intermédiaire de ses 2 ouvertures donnant sur la terrasse couverte. Le système de chauffage vous est proposé en gainable type Air Zone avec climatisation, ce qui vous permettra de chauffer et rafraichir votre lieu de vie sans essouffler votre budget. Carrelage compris dans l'ensemble des pièces "jour" et centralisation électrique pour l'ensemble des volets roulants. La construction de votre maison respectera la RE 2020. Possible d'adapter les plans à vos envies, gain ou retrait de surfaces et / ou pièces (prix à adapter en fonction). Il restera à votre charge les touches finales, à savoir les parquets dans les chambres, peinture, cuisine, les clôtures et le portail. Son prix de vente est à partir de 325000€ terrain + maison, frais de notaire, raccordements et taxes d'aménagement et PFAC inclus. Le terrain est vendu par un de nos partenaires fonciers et sa disponibilité est très limitée dans le temps. Pour toutes informations complémentaires, n'hésitez pas à contacter Ludwig MOLL. Référence : LM1-GOOS (photo non contractuelle).

Afficher plus de détails

Informations sur ce bien :

L'intérieur :

  • 4 pièces
  • 112 m²
    Informations complémentaires
    Surface habitable : 112 m²
  • 3 Chambres
  • 1 Salle de bain
  • 1 Salle d'eau
  • 1 Toilette
  • Salle à manger

L'extérieur :

  • Terrasse
  • Garage
    Informations complémentaires
    1 place

Autres :

  • Mitoyenneté :
    Non
Synthèse
Maison à Goos
325 000 €
Surface : 112 m²
Prix au m² : 2 902 €
Transaction :
Neuf
Référence :
LM1-GOOS
Date de publication :
Il y a plus de 7 jours
Maison - 112 m² - 4 pièces
Agent
Maisons d’en France - Sud Ouest Dax
Maisons d’en France - Sud Ouest Dax
Appeler
Écrire
Mettre en avant cette annonce
Signaler une erreur

Localisation :

L'adresse exacte n'est pas renseignée. Le bien se situe dans cette zone.
Annonces similaires
Annonces immobilières récentes