• Appartement - 47 m² - 2 pièces
  • Appartement - 47 m² - 2 pièces
  • Appartement - 47 m² - 2 pièces
  • Appartement - 47 m² - 2 pièces
  • Appartement - 47 m² - 2 pièces
239 000 €
47 m²
2 pièces
1 chambre

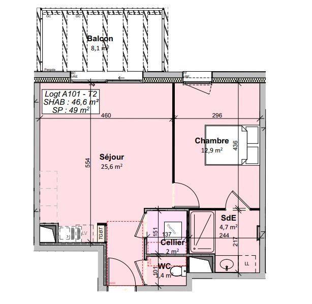
Description :

Iad France - Maryse Bonny (07 71 66 73 30) vous propose : Vivre en hauteur, dan un cadre apaisant, une vue dégagée sur la nature. Au cOEur d'un environnement résidentiel recherché, cette résidence à taille humaine offre un équilibre idéal entre calme et proximité des essentiels. Un emplacement niché dans le bocage vendéen, loin de l'agitation des grandes villes, submergé par une nature généreuse. Situé au premier étage avec ascenseur cet appartement neuf séduit par la clarté de ses volumes et la qualité de sa distribution. Le séjour, spacieux, s'ouvre sur un balcon prolongeant l'espace de vie. Une chambre généreuse, une salle d'eau fonctionnelle, un WC indépendant et un cellier viennent compléter l'ensemble. Les extérieurs, un balcon agréable, Idéal pour profiter des beaux jours en toute tranquillité. La résidence est sécurisée, avec un accès contrôlé, garantissant calme et sérénité. L'ascenseur dessert l'étage, un confort d'usage que vous apprécierez au quotidien. Une construction neuve conforme aux normes environnementales RE 2020, assurant performance énergétique, thermique et qualité durable. Cadre d'acquisition : Frais de notaire réduits, éligible, selon situation, à certains dispositifs d'aide de l'Etat. Accompagnement personnalisé tout au long du projet. Honoraires d’agence à la charge du vendeur. Bien non soumis au DPE. Les informations sur les risques auxquels ce bien est exposé sont disponibles sur le site Géorisques : www.georisques.gouv.fr. La présente annonce immobilière a été rédigée sous la responsabilité éditoriale de Mlle Maryse Bonny EI (ID 86268), mandataire indépendant en immobilier (sans détention de fonds), agent commercial de la SAS I@D France immatriculé au RSAC de LA ROCHE SUR YON sous le numéro 939986485, titulaire de la carte de démarchage immobilier pour le compte de la société I@D France SAS. Retrouvez tous nos biens sur notre site internet. www.iadfrance.fr.

Afficher plus de détails

Informations sur ce bien :

L'intérieur :

  • 2 pièces
  • 47 m²
    Informations complémentaires
    Surface habitable : 47 m²
  • 1 Chambre
  • Séjour

L'extérieur :

  • Parking

Les équipements :

  • Ascenseur
  • Interphone
  • Digicode

Autres :

  • Année de construction :
    2026
  • Mitoyenneté :
    Non
Synthèse
Appartement à Givrand
239 000 €
Surface : 47 m²
Prix au m² : 5 085 €
Transaction :
Achat
Référence :
1986708
Date de publication :
Il y a plus de 7 jours
Appartement - 47 m² - 2 pièces
Agent
iad france
iad france
Maryse Bonny
Appeler
Écrire
Mettre en avant cette annonce
Signaler une erreur

Localisation :

L'adresse exacte n'est pas renseignée. Le bien se situe dans cette zone.
Annonces similaires
Annonces immobilières récentes