• Immeuble - 1 200 m²
  • Immeuble - 1 200 m²
  • Immeuble - 1 200 m²
  • Immeuble - 1 200 m²
  • Immeuble - 1 200 m²
  • Immeuble - 1 200 m²
  • Immeuble - 1 200 m²
3 180 000 €
1 200 m²

Description :

À VENDRE - IMMEUBLE D'ACTIVITÉ - GENTILLY (94250)

De Ferla Entreprise vous propose à la vente un immeuble d'activité idéalement situé en plein coeur de Gentilly (94250).

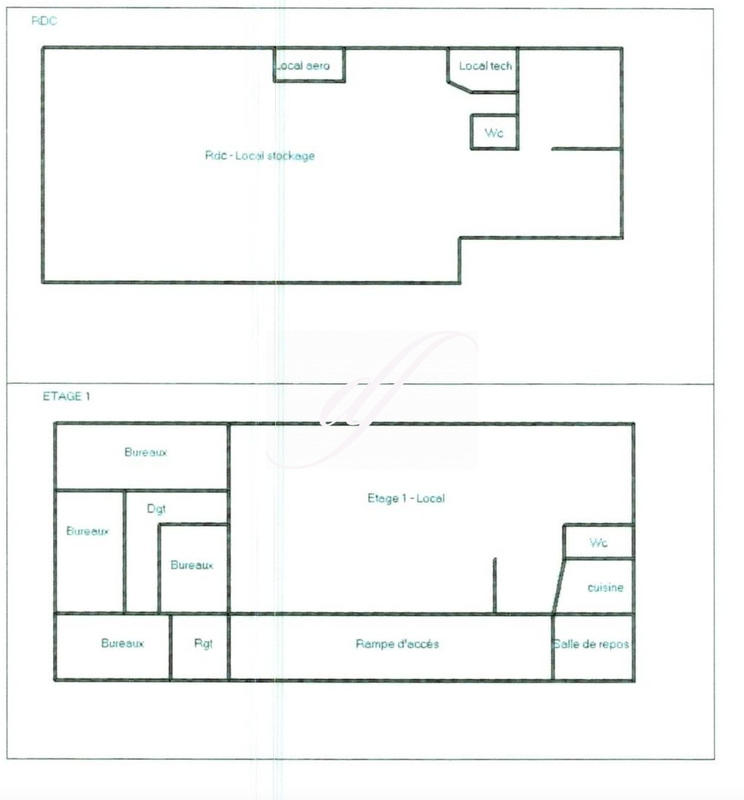
Répartition des surfaces :

Rez-de-chaussée : 400 m²
1er étage : 400 m²
2e étage : 400 m²

Soit une surface totale d'environ 1 200 m².

Immeuble adapté à de nombreuses activités professionnelles, offrant de beaux volumes et une implantation stratégique à proximité immédiate de Paris.

Prix de vente : 3 180 000 € FAI (frais d'agence inclus).

Contact :
Alexandre Boscher - 06 70 67 56 57

Honoraires inclus de 6% TTC à la charge de l'acquéreur. Prix hors honoraires 3 000 000 €. DPE en cours. Les informations sur les risques auxquels ce bien est exposé sont disponibles sur le site Géorisques : georisques.gouv.fr.

Votre conseiller De ferla immobilier : Alexandre Boscher
Agent commercial (Entreprise individuelle)

Afficher plus de détails

Informations sur ce bien :

L'intérieur :

  • 1 200 m²

L'extérieur :

  • Parking
Synthèse
Immeuble à Gentilly
3 180 000 €
Surface : 1 200 m²
Prix au m² : 2 650 €
Transaction :
Achat
Référence :
VI080-DEFERLA
Mandat :
Exclusif
Date de publication :
Il y a plus de 7 jours
Immeuble - 1 200 m²
Agent
De ferla immobilier
Alexandre Boscher
Appeler
Écrire
Mettre en avant cette annonce
Signaler une erreur

Localisation :

L'adresse exacte n'est pas renseignée. Le bien se situe dans cette zone.
Annonces similaires
Annonces immobilières récentes