Maison - 94 m² - 4 pièces à Genay

favoris
  • Maison - 94 m² - 4 pièces
  • Maison - 94 m² - 4 pièces
  • Maison - 94 m² - 4 pièces
  • Maison - 94 m² - 4 pièces
361 300 €
94 m²
4 pièces
3 chambres

Description :

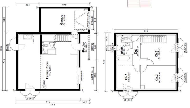
OFFRE EXCEPTIONNELLE POUR LES 50ANS : 10m² OFFERT + 2 PACK AU CHOIXVotre Maison à étage de 94m² Habitables entièrement personnalisable ! Maison Punch vous propose une magnifique maison de à étage de 94 m² sur la commune de Massieux pensée pour le confort et la modernité.Sur une parcelle de 484m² entièrement viabilisé, Nous vous proposons une construction neuve entièrement modulable à vos goûts.Caractéristiques :• Superficie totale : 94 m² habitables• Pièce de vie spacieuse de 45m² avec une cuisine ouverte, pour profiter d’un espace lumineux et convivial ainsi qu’un WC au rez de chaussé.• Espace nuit comprenant :o 3 chambres confortables : 2 chambres spacieuse de 13m² ainsi qu’une chambre de 10 m².• Salle de bain avec baignoire ou douche, selon vos envies, avec WC séparer.• Garage de 18m² attenant, idéal pour protéger votre véhicule ou pour un espace de rangement supplémentaire.• Maison conforme à la RE 2020.Prestations de qualités comprenant de nombreuse options au bon vouloir des futurs acquéreurs.CONSTRUCTION, TERRAIN ET VRD INCLUS DANS LE PRIX.Venez découvrir cette maison qui allie praticité et esthétisme. Un projet de vie pour toute la famille dans un cadre où chaque mètre carré a été optimisé pour votre confort.

Afficher plus de détails

Informations sur ce bien :

L'intérieur :

  • 4 pièces
  • 94 m²
  • 3 Chambres
  • 1 Salle de bain

L'extérieur :

  • Garage

À proximité :

  • Accès voie rapide
  • Centre-ville
  • Commerces
  • Ecoles

Autres :

  • Style :
    Traditionnelle
Synthèse
Maison à Genay
361 300 €
Surface : 94 m²
Prix au m² : 3 844 €
Transaction :
Neuf
Référence :
14626 Casini Romain
Date de publication :
Hier à 10:47
Maison - 94 m² - 4 pièces
Agent
Maisons Punch - Saint Priest
Maisons Punch - Saint Priest
Romain Casini
Appeler
Écrire
Mettre en avant cette annonce
Signaler une erreur

Localisation :

L'adresse exacte n'est pas renseignée. Le bien se situe dans cette zone.
Annonces similaires
Annonces immobilières récentes