• Terrain - 377 m²
  • Terrain - 377 m²
  • Terrain - 377 m²
580 000 €
377 m²

Description :

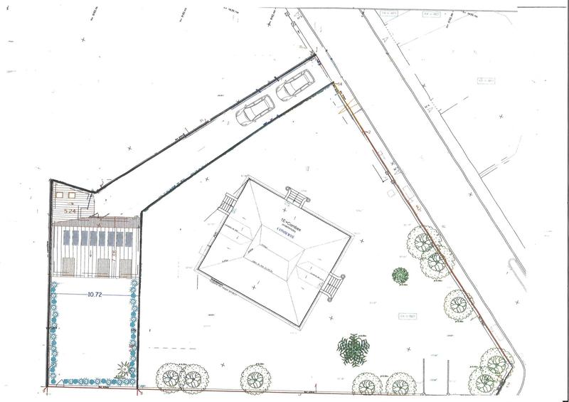
Ultra résidentiel, dans un beau domaine privé, terrain à bâtir parfaitement plat de 377 m² principalement exposé sud et bénéficiant d'une constructibilité importante (permis d'aménager accordé et purgé des recours). Il peut accueillir une villa de 150 m² à plus de 200 m² habitables sur deux ou trois niveaux, hors sous-sol. L'environnement est de grande qualité et la gare et les commerces sont à moins de 10 minutes à pied. La ligne L vous mène à Paris Saint Lazare en 25 mn et à la défense en 15 mn. L'accès au parc de Saint-Cloud est à proximité immédiate. Il existe la possibilité de stationner deux ou trois véhicules sur la parcelle, et deux véhicules sur à l'extérieur sur une partie privée.
Pour un budget d'environ 1 100 000 €, ce terrain vous offre la possibilité de bâtir VOTRE maison d'environ 150 m². Il n'attend donc plus que Votre projet. Saisissez cette opportunité unique!
Dossier disponible à l'agence.

Les informations sur les risques auxquels ce bien est exposé sont disponibles sur le site Géorisques : georisques.gouv.fr.

Votre conseiller Agence les Marechaux : Gérant - Renaud DECKER

Afficher plus de détails

Informations sur ce bien :

L'intérieur :

  • 377 m²

L'extérieur :

  • Parking

Autres :

  • Vue :
    Dégagée

Terrain :

  • Constructible :
    Oui
  • Viabilisé :
    Non
Synthèse
Terrain à Garches
580 000 €
Surface : 377 m²
Prix au m² : 1 538 €
Transaction :
Achat
Référence :
VT088-AGENCEMARECHAUX
Date de publication :
Il y a plus de 7 jours
Terrain - 377 m²
Agent
Agence les Marechaux
Agence les Marechaux
Appeler
Écrire
Mettre en avant cette annonce
Signaler une erreur

Localisation :

L'adresse exacte n'est pas renseignée. Le bien se situe dans cette zone.
Annonces similaires
Annonces immobilières récentes