Retour
Rechercher
Lieu
Où ?
    Type de bien
    Quel type de projet ?
    Particulier Entreprise
    Quel type de bien ?
        Prix
        Quel budget ?
              Surface
              Quelle surface ?
                    Pièces
                    Combien de pièces ?
                      Combien de chambres ?
                          233

                          Ventes d'appartements et de maisons à Gap

                          Recherche 233
                          Carte
                          • Appartement - 112 m² - 6 pièces
                          • Appartement - 112 m² - 6 pièces
                          • Appartement - 112 m² - 6 pièces
                          • Appartement - 112 m² - 6 pièces
                          • Appartement - 112 m² - 6 pièces
                          • Appartement - 112 m² - 6 pièces Cliquez pour voir les 17 photos

                          Appartement - 112 m² - 6 pièces

                          299 000 €
                          Sous compromis : En exclusivité, ISP vous propose ce grand T5 de 112 m² situé au 5ème étage de la résidence La Chênaie, bénéficiant d'une magnifique vue et d'un très bon ensoleillement par sa triple exposition, est, sud et ouest. Un hall d'entrée distribue les espaces nuit et jour, les quatre chambres ont accès à une terrasse, deux à l'est, deux au sud. L'appartement est équipé
                          Professionnel Publié il y a plus de 7 jours Non géolocalisée
                          Gap 4 ch 2 sdb 5ème étage Terrasse Balcon
                          • Appartement - 98 m² - 4 pièces
                          • Appartement - 98 m² - 4 pièces
                          • Appartement - 98 m² - 4 pièces
                          • Appartement - 98 m² - 4 pièces
                          • Appartement - 98 m² - 4 pièces
                          • Appartement - 98 m² - 4 pièces Cliquez pour voir les 14 photos

                          Appartement - 98 m² - 4 pièces

                          275 000 €
                          Appartement T3/T4 de 95,52 m² – Dernier étage avec balcon – Centre-ville de Gap Idéalement situé à proximité immédiate du centre-ville de Gap, cet appartement lumineux offre un cadre de vie agréable, alliant confort et praticité. Niché au 6ᵉ et dernier étage d'une résidence avec ascenseur, il bénéficie d'une exposition Sud-Ouest, garantissant une belle luminosité tout au long
                          Professionnel Publié il y a plus de 7 jours
                          Gap 2 ch 2 sdb Dernier étage
                          • Appartement - 71 m² - 3 pièces
                          • Appartement - 71 m² - 3 pièces
                          • Appartement - 71 m² - 3 pièces
                          • Appartement - 71 m² - 3 pièces
                          • Appartement - 71 m² - 3 pièces
                          • Appartement - 71 m² - 3 pièces Cliquez pour voir les 9 photos

                          Appartement - 71 m² - 3 pièces

                          372 000 €
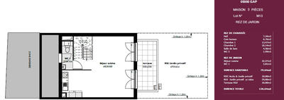
                          GAP: La Loge immobilière a le plaisir de vous faire découvrir ce superbe appartement d'angle de type trois pièces de 70 m² en cours de finitions, situé en rez-de-jardin d'une résidence neuve et sécurisée. Elle répond aux normes RT2012 pour un confort thermique et énergétique optimal grâce à sa pompe à chaleur individuelle. L'espace de vie se compose d'une pièce à vivre de 30 m²
                          Professionnel Publié il y a plus de 7 jours Non géolocalisée
                          Gap RDC Terrasse Balcon Parking
                          • Appartement - 71 m² - 3 pièces
                          • Appartement - 71 m² - 3 pièces
                          • Appartement - 71 m² - 3 pièces
                          • Appartement - 71 m² - 3 pièces
                          • Appartement - 71 m² - 3 pièces
                          • Appartement - 71 m² - 3 pièces Cliquez pour voir les 11 photos

                          Appartement - 71 m² - 3 pièces

                          330 000 €
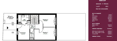
                          GAP: La Loge immobilière a le plaisir de vous faire découvrir ce superbe appartement de type trois pièces de 70 m², situé en rez-de-jardin d'une résidence neuve et sécurisée. Elle répond aux normes RT2012 pour un confort thermique et énergétique optimal grâce à sa pompe à chaleur individuelle. L'espace de vie se compose d'une pièce à vivre de 30 m², baignée de lumière, avec une
                          Professionnel Publié il y a plus de 7 jours Non géolocalisée
                          Gap 2 ch 1 sdb RDC Terrasse Balcon
                          • Appartement - 73 m² - 3 pièces
                          • Appartement - 73 m² - 3 pièces
                          • Appartement - 73 m² - 3 pièces
                          • Appartement - 73 m² - 3 pièces
                          • Appartement - 73 m² - 3 pièces
                          • Appartement - 73 m² - 3 pièces Cliquez pour voir les 8 photos

                          Appartement - 73 m² - 3 pièces

                          330 000 €
                          GAP: La Loge immobilière a le plaisir de vous faire découvrir ce superbe appartement d'angle de type trois pièces de 70 m² en cours de finitions, situé au premier et dernier étage d'une résidence neuve et sécurisée. Elle répond aux normes RT2012 pour un confort thermique et énergétique optimal grâce à sa pompe à chaleur individuelle. L'espace de vie se compose d'une pièce à viv
                          Professionnel Publié il y a plus de 7 jours Non géolocalisée
                          Gap 2 ch 1 sdb 1er étage Terrasse Balcon
                          • Appartement - 92 m² - 4 pièces
                          • Appartement - 92 m² - 4 pièces
                          • Appartement - 92 m² - 4 pièces
                          • Appartement - 92 m² - 4 pièces
                          • Appartement - 92 m² - 4 pièces
                          • Appartement - 92 m² - 4 pièces Cliquez pour voir les 21 photos

                          Appartement - 92 m² - 4 pièces

                          239 000 €
                          Découvrez ce magnifique appartement T4 de 92,27 m², situé au 2ème étage d'un immeuble de standing. Construit en 1961 et entièrement rénové en 2025, cet appartement allie charme d'antan et modernité. Avec ses 3 chambres spacieuses et lumineuses, cet appartement est idéal pour une famille ou pour ceux qui aiment recevoir. Le séjour de 36 m², baigné de lumière grâce à son exposit
                          Professionnel Publié il y a plus de 7 jours Non géolocalisée
                          Gap 3 ch 2 sdb 2nd étage Terrasse Balcon
                          • Appartement - 100 m² - 4 pièces
                          • Appartement - 100 m² - 4 pièces
                          • Appartement - 100 m² - 4 pièces
                          • Appartement - 100 m² - 4 pièces
                          • Appartement - 100 m² - 4 pièces
                          • Appartement - 100 m² - 4 pièces Cliquez pour voir les 10 photos

                          Appartement - 100 m² - 4 pièces

                          350 000 €
                          Votre agence Buech Durance Immobilier ADB vous propose à la vente cet appartement traversant d'environ 100m2. Situé dans une résidence sécurisée et bien entretenue, exposé plein sud, offrant un cadre de vie idéal pour une famille ou toute personne en quête de confort et de tranquillité. Grâce à sa luminosité optimale et à sa vue imprenable sur les montagnes, il allie modernité,
                          Professionnel Publié il y a plus de 7 jours Non géolocalisée
                          Gap 3 ch 2 sdb 3ème étage Terrasse Balcon
                          • Maison - 168 m² - 6 pièces
                          • Maison - 168 m² - 6 pièces
                          • Maison - 168 m² - 6 pièces
                          • Maison - 168 m² - 6 pièces
                          • Maison - 168 m² - 6 pièces
                          • Maison - 168 m² - 6 pièces Cliquez pour voir les 18 photos

                          Maison - 168 m² - 6 pièces

                          661 500 €
                          Calme et vue panoramique pour cette maison de 1998 orientée SO sur un terrain plat de 2 500m² piscinable. Elevée sur un sous-sol total de 100 m² (double garage, cellier, chaufferie) elle offre une cuisine équipée donnant accès à une véranda et à un salon-séjour de 65 m² avec cheminée/insert. Toujours en rez-de- chaussée, une suite parentale, une chambre et une salle d'eau v
                          Professionnel Publié il y a plus de 7 jours Non géolocalisée
                          Gap 4 ch 2 sdb Terrasse Balcon Parking
                          • Appartement - 48 m² - 2 pièces
                          • Appartement - 48 m² - 2 pièces
                          • Appartement - 48 m² - 2 pièces
                          • Appartement - 48 m² - 2 pièces
                          • Appartement - 48 m² - 2 pièces
                          • Appartement - 48 m² - 2 pièces Cliquez pour voir les 7 photos

                          Appartement - 48 m² - 2 pièces

                          134 000 €
                          Votre agence Buech Durance Immobiler ADB vous propose à la vente cet appartement loué. Idéalement situé en centre-ville de GAP, cet appartement 2 pièces vous séduira par son emplacement priviligié, à proximité immédiate des commodités. Avec une superficie d'environ 48m2, il se compose d'un  séjour lunimeux, parfait pour créer un espace convivial, une cuisine séparée, offrant pr
                          Professionnel Publié il y a plus de 7 jours Non géolocalisée
                          Gap 1 ch 1 sdb 1er étage Balcon Parking
                          • Appartement - 79 m² - 4 pièces
                          • Appartement - 79 m² - 4 pièces
                          • Appartement - 79 m² - 4 pièces
                          • Appartement - 79 m² - 4 pièces
                          • Appartement - 79 m² - 4 pièces
                          • Appartement - 79 m² - 4 pièces Cliquez pour voir les 8 photos

                          Appartement - 79 m² - 4 pièces

                          288 000 €
                          Sous compromis : Exclusivité ! Premier T4 en rez-de-jardin à la revente aux Toits de Charance. Livré fin 2022, il était loué jusqu'alors. Il est traversant et dispose de trois chambres. Celle des parents avec placard et salle d'eau privative donne sur la terrasse. Les chambres des enfants, dont une avec placard, sont de l'autre coté du couloir. La salle de bains dispose d'une
                          Professionnel Publié il y a plus de 7 jours
                          Gap 3 ch 2 sdb RDC Terrasse Piscine
                          • Appartement - 93 m² - 4 pièces
                          • Appartement - 93 m² - 4 pièces
                          • Appartement - 93 m² - 4 pièces
                          • Appartement - 93 m² - 4 pièces
                          • Appartement - 93 m² - 4 pièces
                          • Appartement - 93 m² - 4 pièces Cliquez pour voir les 16 photos

                          Appartement - 93 m² - 4 pièces

                          197 000 €
                          Gap Centre-ville : En EXCLUSIVITÉ, La Loge immobilière vous propose de découvrir ce spacieux appartement quatre pièces dans un immeuble de standing du centre-ville, Le Concorde. Spacieux et lumineux, vous découvrirez un appartement composé d'un large hall d'entrée avec placard, un vaste salon exposé plein sud, une grande cuisine, trois chambres, salle de bain, wc séparés ainsi
                          Professionnel Publié il y a plus de 7 jours Non géolocalisée
                          Gap 3 ch 1 sdb 3ème étage Terrasse Balcon
                          • Appartement - 89 m² - 4 pièces
                          • Appartement - 89 m² - 4 pièces
                          • Appartement - 89 m² - 4 pièces

                          Appartement - 89 m² - 4 pièces

                          309 000 €
                          Gap centre : PROGRAMME NEUF Démarrage des travaux au mois de janvier 2025. La Loge immobilière vous propose un accompagnement personnalisé dans votre projet d'acquisition pour ce programme neuf idéalement situé dans le secteur de Crève-Coeur à seulement 700 mètres du centre-ville tout en étant très au calme avec une magnifique vue dégagée ! La vocation principale de ce programm
                          Professionnel Publié il y a plus de 7 jours Non géolocalisée
                          Gap 3 ch 2 sdb 3ème étage Terrasse Balcon
                          • Appartement - 62 m² - 3 pièces
                          • Appartement - 62 m² - 3 pièces
                          • Appartement - 62 m² - 3 pièces

                          Appartement - 62 m² - 3 pièces

                          255 000 €
                          Gap centre : PROGRAMME NEUF Démarrage des travaux au mois de janvier 2025. La Loge immobilière vous propose un accompagnement personnalisé dans votre projet d'acquisition pour ce programme neuf idéalement situé dans le secteur de Crève-Coeur à seulement 700 mètres du centre-ville tout en étant très au calme avec une magnifique vue dégagée ! La vocation principale de ce programm
                          Professionnel Publié il y a plus de 7 jours Non géolocalisée
                          Gap 2 ch 1 sdb 3ème étage Terrasse Balcon
                          • Appartement - 43 m² - 2 pièces
                          • Appartement - 43 m² - 2 pièces
                          • Appartement - 43 m² - 2 pièces

                          Appartement - 43 m² - 2 pièces

                          203 000 €
                          Gap centre : PROGRAMME NEUF Démarrage des travaux au mois de janvier 2025. La Loge immobilière vous propose un accompagnement personnalisé dans votre projet d'acquisition pour ce programme neuf idéalement situé dans le secteur de Crève-Coeur à seulement 700 mètres du centre-ville tout en étant très au calme avec une magnifique vue dégagée ! La vocation principale de ce programm
                          Professionnel Publié il y a plus de 7 jours Non géolocalisée
                          Gap 1 ch 1 sdb 3ème étage Terrasse Balcon
                          • Appartement - 72 m² - 3 pièces
                          • Appartement - 72 m² - 3 pièces
                          • Appartement - 72 m² - 3 pièces

                          Appartement - 72 m² - 3 pièces

                          280 000 €
                          Gap centre : PROGRAMME NEUF Démarrage des travaux au mois de janvier 2025. La Loge immobilière vous propose un accompagnement personnalisé dans votre projet d'acquisition pour ce programme neuf idéalement situé dans le secteur de Crève-Coeur à seulement 700 mètres du centre-ville tout en étant très au calme avec une magnifique vue dégagée ! La vocation principale de ce programm
                          Professionnel Publié il y a plus de 7 jours Non géolocalisée
                          Gap 2 ch 1 sdb 3ème étage Terrasse Balcon
                          • Appartement - 81 m² - 4 pièces
                          • Appartement - 81 m² - 4 pièces
                          • Appartement - 81 m² - 4 pièces
                          • Appartement - 81 m² - 4 pièces
                          • Appartement - 81 m² - 4 pièces
                          • Appartement - 81 m² - 4 pièces Cliquez pour voir les 11 photos

                          Appartement - 81 m² - 4 pièces

                          178 000 €
                          Exclusivité ! Quartier hôpital, découvrez ce T4 de 80m2 au premier étage d'une maison comportant deux appartements. La chambre parentale (18.23m2) dispose d'un vaste placard aménagé, les deux autres chambres sont plus petites (10.88 et 8.98m2). Les volets sont roulants et motorisés, le chauffage est individuel au gaz de ville. Les charges de la copropriété se limitent à l'assur
                          Professionnel Publié il y a plus de 7 jours
                          Gap 3 ch 1 sdb 1er étage Parking
                          • Appartement - 100 m² - 4 pièces
                          • Appartement - 100 m² - 4 pièces
                          • Appartement - 100 m² - 4 pièces
                          • Appartement - 100 m² - 4 pièces
                          • Appartement - 100 m² - 4 pièces
                          • Appartement - 100 m² - 4 pièces Cliquez pour voir les 11 photos

                          Appartement - 100 m² - 4 pièces

                          339 000 €
                          Gap - Bonneval : La Loge immobilière vous propose ce spacieux 4 pièces de 100 m² avec une somptueuse vue panoramique sur les sommets environnants et la ville de Gap, dans la résidence de standing ''La Ferme Blanche'' ! Une spacieuse pièce principale composée d'une cuisine ouverte entièrement équipée, un espace salle à manger pour recevoir confortablement et l'espace salon, le t
                          Professionnel Publié il y a plus de 7 jours Non géolocalisée
                          Gap 3 ch 2 sdb 3ème étage Terrasse Balcon
                          • Maison traditionnelle - 171 m² - 7 pièces
                          • Maison traditionnelle - 171 m² - 7 pièces
                          • Maison traditionnelle - 171 m² - 7 pièces
                          • Maison traditionnelle - 171 m² - 7 pièces
                          • Maison traditionnelle - 171 m² - 7 pièces
                          • Maison traditionnelle - 171 m² - 7 pièces Cliquez pour voir les 24 photos

                          Maison traditionnelle - 171 m² - 7 pièces

                          640 000 €
                          Laissez-vous séduire par cette charmante maison familiale, nichée dans un environnement paisible, avec une vue imprenable sur les montagnes Un bien idéal pour habiter ou investir ! Configuration intelligente sur deux niveaux : 1er étage : deux appartements T2 indépendants, chacun comprenant 1 chambre un séjour agréable une cuisine une salle de bain Parfait pour de la locatio
                          Professionnel Publié il y a plus de 7 jours Non géolocalisée
                          Gap 4 ch 3 sdb Terrasse Parking Exposition Sud
                          • Appartement - 93 m² - 4 pièces
                          • Appartement - 93 m² - 4 pièces

                          Appartement - 93 m² - 4 pièces

                          348 000 €
                          L'Adresse Efficience Gap vous propose à la vente un bel appartement T4, 4 pièces, 3 chambre, situé au deuxième étage d'une résidence moderne et sécurisée. Terrasse de 25 m2. Situé proche du centre ville, dans un quartier calme, doté d'espaces verts et de toutes les commodités. La résidence se compose de bâtiments de trois et quatre étages avec garages et caves en sous-sol. Les
                          Professionnel Publié il y a plus de 7 jours Non géolocalisée
                          Gap 3 ch 2nd étage
                          • Appartement - 43 m² - 2 pièces
                          • Appartement - 43 m² - 2 pièces

                          Appartement - 43 m² - 2 pièces

                          199 000 €
                          L'Adresse Efficience Gap vous propose à la vente un bel appartement T2, 2 pièces, 1 chambre, situé au deuxième étage d'une résidence moderne et sécurisée. Terrasse de 14 m2. Situé proche du centre ville, dans un quartier calme, doté d'espaces verts et de toutes les commodités. La résidence se compose de bâtiments de trois et quatre étages avec garages et caves en sous-sol. Les
                          Professionnel Publié il y a plus de 7 jours Non géolocalisée
                          Gap 1 ch 2nd étage
                          • Appartement - 92 m² - 4 pièces
                          • Appartement - 92 m² - 4 pièces
                          • Appartement - 92 m² - 4 pièces
                          • Appartement - 92 m² - 4 pièces
                          • Appartement - 92 m² - 4 pièces
                          • Appartement - 92 m² - 4 pièces Cliquez pour voir les 20 photos

                          Appartement - 92 m² - 4 pièces

                          270 000 €
                          GAP-SUD : La loge immobilière a le plaisir de vous présenter ce vaste appartement de type 4 pièces traversant de 92 m² entièrement rénové avec des prestations de qualités, situé en étage élevé, il vous offre une vue imprenable sur les montagnes environnantes et la ville de Gap. Cet appartement est composé d'une entrée desservant une agréable pièce à vivre, donnant sur une lumin
                          Professionnel Publié il y a plus de 7 jours Non géolocalisée
                          Gap 3 ch 1 sdb 7ème étage Terrasse Balcon
                          • Appartement - 63 m² - 3 pièces
                          • Appartement - 63 m² - 3 pièces
                          • Appartement - 63 m² - 3 pièces
                          • Appartement - 63 m² - 3 pièces
                          • Appartement - 63 m² - 3 pièces
                          • Appartement - 63 m² - 3 pièces Cliquez pour voir les 12 photos

                          Appartement - 63 m² - 3 pièces

                          210 000 €
                          GAP -SUD : La Loge Immobilière a le plaisir de vous présenter cet agréable appartement de type 3 pièces de 63 m², idéalement situé dans le quartier prisé au sud de Gap. Doté d'une spacieuse terrasse exposée sud-est, cet appartement offre un cadre calme et résidentiel, tout en étant à proximité de toutes les commodités nécessaires. Dès votre entrée, vous serez immédiatement sédu
                          Professionnel Publié il y a plus de 7 jours Non géolocalisée
                          Gap 2 ch 1 sdb RDC Terrasse Balcon
                          • Appartement - 91 m² - 4 pièces
                          • Appartement - 91 m² - 4 pièces
                          • Appartement - 91 m² - 4 pièces
                          • Appartement - 91 m² - 4 pièces
                          • Appartement - 91 m² - 4 pièces
                          • Appartement - 91 m² - 4 pièces Cliquez pour voir les 9 photos

                          Appartement - 91 m² - 4 pièces

                          355 000 €
                          A cinq minutes du centre-ville, dans un quartier recherché pour son calme et sa nature environnante, petite résidence à taille humaine de dix appartements répartis dans trois bâtiments. De la luminosité et des prestations de qualité pour profiter de la vue sur les massifs de Ceüze et Charance. Une terrasse, un parking et un garage achèveront de vous convaincre. Disponible en
                          Professionnel Publié il y a plus de 7 jours Non géolocalisée
                          Gap 3 ch 2 sdb 1er étage Terrasse Parking
                          7

                          Ventes d'appartements et de maisons à La Freissinouse

                          (5.6 km)
                          • Maison - 36 m² - 3 pièces
                          • Maison - 36 m² - 3 pièces
                          • Maison - 36 m² - 3 pièces
                          • Maison - 36 m² - 3 pièces
                          • Maison - 36 m² - 3 pièces
                          • Maison - 36 m² - 3 pièces Cliquez pour voir les 23 photos

                          Maison - 36 m² - 3 pièces

                          76 000 €
                          Envie d'un coin de paradis ? Découvrez en exclusivité ce chalet d'environ 36 m² sur un terrain de 250m² idéalement situé au premier rang avec vue directe sur le lac de Pellautier / La freissinouse. Les + qui font la différence : - Chalet partiellement rénové cette année - Terrasse neuve pour profiter pleinement de la vue - Vendu entièrement meublé et équipé → prêt à en pro
                          Professionnel Publié le 21 avril à 08:05
                          La Freissinouse 2 ch 1 sdb Terrasse Parking Exposition Sud-est
                          • Châlet - 35 m² - 3 pièces
                          • Châlet - 35 m² - 3 pièces
                          • Châlet - 35 m² - 3 pièces
                          • Châlet - 35 m² - 3 pièces
                          • Châlet - 35 m² - 3 pièces
                          • Châlet - 35 m² - 3 pièces Cliquez pour voir les 11 photos

                          Châlet - 35 m² - 3 pièces

                          108 000 €
                          Lac de Pelleautier, Exclusivité, habitation légère de loisir démontable 35m2 état neuf, vendue meublée, très belle prestation. Située au coeur d'un camping familial de petite taille ouvert à l'année, utilisable uniquement en résidence secondaire. Accès lac et restauration sur place, snack, bar, portail sécurisé avec lecture plaque auto. Location emplacement terrain privatif av
                          Professionnel Publié il y a plus de 7 jours
                          La Freissinouse 2 ch 1 sdb Parking
                          • Maison - 96 m² - 4 pièces
                          • Maison - 96 m² - 4 pièces
                          • Maison - 96 m² - 4 pièces
                          • Maison - 96 m² - 4 pièces
                          • Maison - 96 m² - 4 pièces
                          • Maison - 96 m² - 4 pièces Cliquez pour voir les 24 photos

                          Maison - 96 m² - 4 pièces

                          375 000 €
                          PALATIUM IMMOBILIER GAP a le plaisir de vous présenter cette maison récente de type quatre pièces offrant 96 m² habitable et édifiée sur un terrain clôturé de 551 m² facile d'entretien. Entièrement de plain-pied, cette maison a été pensée pour offrir un quotidien simple, confortable et fonctionnel.Elle répond aux normes RT 2012 et bénéficie d'un excellent niveau de performance
                          Professionnel Publié il y a plus de 7 jours Non géolocalisée
                          La Freissinouse 3 ch 2 sdb Terrasse Parking
                          • Maison - 37 m² - 3 pièces
                          • Maison - 37 m² - 3 pièces
                          • Maison - 37 m² - 3 pièces
                          • Maison - 37 m² - 3 pièces
                          • Maison - 37 m² - 3 pièces
                          • Maison - 37 m² - 3 pièces Cliquez pour voir les 18 photos

                          Maison - 37 m² - 3 pièces

                          82 000 €
                          Gap, je vous propose ce magnifique chalet d'environ 37 m² au premier rang avec accès et vue direct sur le lac. Il se compose d'une cuisine ouverte sur la pièce de vie qui donne accès à sa véranda exposée sud-est et vue panoramique sur le lac. Vous découvrirez également 2 chambres et une salle d'eau avec WC. Au milieu d'un écrin de verdure ce chalet est idéal pour passer d'ag
                          Professionnel Publié il y a plus de 7 jours
                          La Freissinouse 2 ch 1 sdb Terrasse Parking Exposition Sud-est
                          • Maison - 154 m² - 6 pièces
                          • Maison - 154 m² - 6 pièces
                          • Maison - 154 m² - 6 pièces
                          • Maison - 154 m² - 6 pièces
                          • Maison - 154 m² - 6 pièces
                          • Maison - 154 m² - 6 pièces Cliquez pour voir les 20 photos

                          Maison - 154 m² - 6 pièces

                          483 000 €
                          À seulement 8 minutes de Gap : En exclusivité, La Loge Immobilière a le privilège de vous présenter cette belle demeure de caractère développant 154 m² habitables, implantée en position dominante sur un terrain clos et arboré de 4 875 m², offrant une vue dégagée sur les environs. Dès l'arrivée dans la propriété, le charme opère. Un chemin d'accès mène à la maison à travers une
                          Professionnel Publié il y a plus de 7 jours Non géolocalisée
                          La Freissinouse 4 ch 1 sdb Terrasse Parking
                          3

                          Ventes d'appartements et de maisons à Jarjayes

                          (6.5 km)
                          • Propriété - 221 m² - 9 pièces
                          • Propriété - 221 m² - 9 pièces
                          • Propriété - 221 m² - 9 pièces
                          • Propriété - 221 m² - 9 pièces
                          • Propriété - 221 m² - 9 pièces
                          • Propriété - 221 m² - 9 pièces Cliquez pour voir les 24 photos

                          Propriété - 221 m² - 9 pièces

                          758 000 €
                          Venez découvrir cette vaste propriété ancienne pleine de caractère située en position dominante sur la commune de Jarjayes édifiée sur une parcelle de 1,8 hectare. Implantée en grande partie sur une zone touristique, cette propriété permet le développement de nombreux projets : gîtes, logements insolites, camping, événementiel, activité agricole ou équestre. La bâtisse a fait
                          Professionnel Publié il y a plus de 7 jours
                          Jarjayes 3 ch 2 sdb Terrasse Balcon Parking
                          • Maison - 155 m² - 5 pièces
                          • Maison - 155 m² - 5 pièces
                          • Maison - 155 m² - 5 pièces
                          • Maison - 155 m² - 5 pièces
                          • Maison - 155 m² - 5 pièces
                          • Maison - 155 m² - 5 pièces Cliquez pour voir les 21 photos

                          Maison - 155 m² - 5 pièces

                          520 000 €
                          À vendre Maison familiale avec terrain d'environ 2 193 m2 et vue imprenable sur les montagnes Jarjayes (05130) Laissez-vous séduire par cette maison individuelle construite en 1993, offrant environ 154 m2 habitables, édifiée sur un superbe terrain d'environ 2 193 m2. Située dans un environnement paisible, elle bénéficie d'une vue dégagée et imprenable sur les montagnes, idé
                          Professionnel Publié il y a plus de 7 jours Non géolocalisée
                          Jarjayes 4 ch 2 sdb Terrasse Parking Exposition Sud
                          • Maison d'architecte - 140 m²
                          • Maison d'architecte - 140 m²
                          • Maison d'architecte - 140 m²
                          • Maison d'architecte - 140 m²
                          • Maison d'architecte - 140 m²
                          • Maison d'architecte - 140 m² Cliquez pour voir les 10 photos

                          Maison d'architecte - 140 m²

                          510 000 €
                          Belle et lumineuse maison d'architecte de 140 m² dans village proche de Gap (15 minutes en voiture), doté d'une école du CP au CM2. Cette maison réunit beaucoup d'atouts : Une vaste et lumineuse pièce à vivre : séjour, salle à manger et cuisine ouverte avec cellier. Grande hauteur sous plafond donnant sur une véranda et accès à 2 terrasses et un jardin. Une suite parentale au
                          Professionnel Publié il y a plus de 7 jours Non géolocalisée
                          Jarjayes 3 ch

                          Achat d'appartements ou de maisons à Gap. Toutes les ventes immobilières à Gap et aux environs. Appartement et maison à vendre.

                          Recherche en cours...
                          Rechercher dans cette zone