Maison - 79 m² - 4 pièces à Gap
favoris
289 700 €
Description :
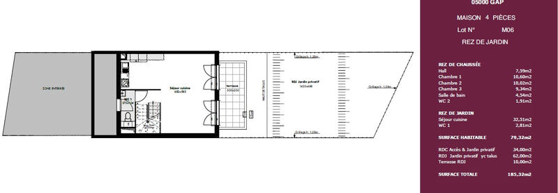
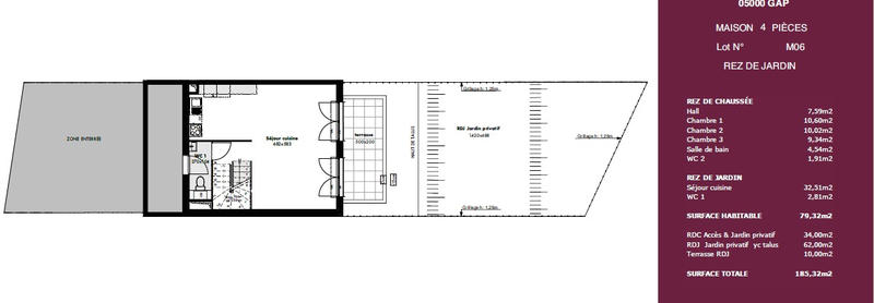
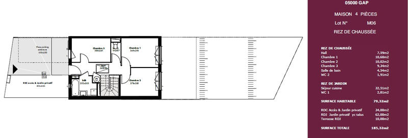
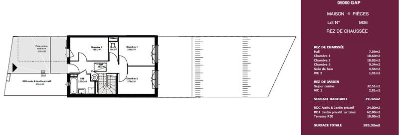
Vivre à Gap, au pied des montagnes, dans un quartier qui respire la sérénité. Nous vous proposons des maisons T4 avec séjour cuisine, 3 chambres, salle de bains, 2 WC. Une terrasse, un jardin et un garage ou place de parking. Le chauffage est assuré par une chaudière gaz. Au pied du programme 2 lignes de bus gratuites desservent Gap. Livraison fin 2025, RT 2012 , maisons T4 de 79.3 m² (289 700 euros) à 97.5 m² (360 800 euros). Pour plus de renseignements n'hésitez pas à nous contacter 04.92.45.20.99, ERA Gap 21 Avenue J. Jaurès.
Afficher plus de détails
Informations sur ce bien :
L'intérieur :
-
4 pièces
-
79 m²Informations complémentairesSurface habitable : 79 m²
-
3 ChambresInformations complémentairesChambre 1 : Surface de 10 m², rdc, carrelage, peinture, 1f
Chambre 2 : Surface de 10 m², rdc, carrelage, peinture, 1f
Chambre 3 : Surface de 9 m², rdc, carrelage, peinture, 1f -
Cuisine ouverteInformations complémentairesOuverte, rdc
-
1 Salle de bain de 4 m²Informations complémentairesRdc, carrelage, faïence et peinture, 1f
-
2 ToilettesInformations complémentairesToilette 1 : Surface de 1 m², rdc, carrelage, peinture
Toilette 2 : Surface de 2 m², rdc, carrelage, peinture -
Séjour de 33 m²Informations complémentairesSurface de 32 m², rdc, exposition sud, carrelage, peinture, 2 pf
L'extérieur :
-
Jardin
-
Terrasse de 10 m²Informations complémentairesRdc, 10 m²,
-
Parking
Les équipements :
-
Tout à l'égout
-
Double vitrage
Autres :
-
Chauffage :Individuel, Radiateur, Gaz
-
Année de construction :2025
-
État :Intérieur : Excellent, Extérieur : Excellent
-
Étage :RDCInformations complémentairesNombre d'étages de la construction : 1
-
Nombre de niveaux :2
Synthèse
Maison à Gap
289 700 €
Surface :
79 m²
Prix au m² :
3 667 €
Transaction :
Achat
Référence :
3779
Date de publication :
Il y a plus de 7 jours
Contacter l'annonceur
Agent
ERA CDM IMMOCONSEILS
Mettre en avant cette annonce
Signaler une erreur
Localisation :
L'adresse exacte n'est pas renseignée. Le bien se situe dans cette zone.
Performance énergétique :
Bien non soumis au Diagnostic de Performance Énergétique (DPE)
Ventes de maisons à proximité
- 2 ventes de maisons à Jarjayes (6.5 km)
- 4 ventes de maisons à Neffes (7.6 km)
- 3 ventes de maisons à Châteauvieux (8.3 km)
- 7 ventes de maisons à La Bâtie-Neuve (9.1 km)
- 4 ventes de maisons à Manteyer (9.4 km)
- 1 vente de maison à La Roche-des-Arnauds (9.6 km)
- 2 ventes de maisons à Saint-Laurent-du-Cros (9.7 km)
- 2 ventes de maisons à Lettret (10.3 km)
- 2 ventes de maisons à Forest-Saint-Julien (10.4 km)