• Maison - 55 m² - 3 pièces
  • Maison - 55 m² - 3 pièces
  • Maison - 55 m² - 3 pièces
  • Maison - 55 m² - 3 pièces
  • Maison - 55 m² - 3 pièces
  • Maison - 55 m² - 3 pièces
69 000 €
55 m²
3 pièces
1 chambre

Description :

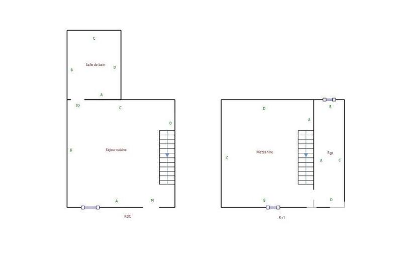
Iad France - Jonathan Lepretre vous propose : À découvrir sans tarder ! Située à Frencq, à proximité immédiate d'Étaples et des plages de la Côte d'Opale, cette maison en duplex offre un cadre de vie calme et agréable. Logement libre d'occupation. Il se compose : D'une pièce de vie lumineuse avec cuisine ouverte aménagée et équipée, d'une salle de bains avec WC au rez-de-chaussée, A l'étage, d'une chambre et d'une pièce attenante pouvant servir de dressing ou bureau. Idéal pour un premier achat ou un investissement locatif rentable. Petite copropriété bénévole, peu de charge. Petit travaux de rénovation à prévoir - Possibilité aide de l'état Excellent rapport qualité / prix. Honoraires d'agence à la charge du vendeur. Information d'affichage énergétique sur ce bien : classe ENERGIE E indice 317 et classe CLIMAT B indice 10. Les informations sur les risques auxquels ce bien est exposé, y compris l'obligation légale de débroussaillement, sont disponibles sur le site Géorisques : http://www.georisques.gouv.fr. La présente annonce immobilière a été rédigée sous la responsabilité éditoriale de M Jonathan Lepretre mandataire indépendant en immobilier (sans détention de fonds), agent commercial de la SAS I@D France immatriculé au RSAC de Boulogne sur Mer sous le numéro 903925899, titulaire de la carte de démarchage immobilier pour le compte de la société I@D France SAS.

Afficher plus de détails

Informations sur ce bien :

L'intérieur :

  • 3 pièces
  • 55 m²
    Informations complémentaires
    Surface habitable : 55 m²
  • 1 Chambre

Autres :

  • Chauffage :
    Radiateur, Électrique
  • Année de construction :
    1945
  • Mitoyenneté :
    Non
Synthèse
Maison à Frencq
69 000 €
Surface : 55 m²
Prix au m² : 1 255 €
Transaction :
Achat
Référence :
1999400
Date de publication :
Il y a plus de 7 jours
Maison - 55 m² - 3 pièces
Performance énergétique
A
B
C
D
E
F
G
Gaz à effet de serre
A
B
C
D
E
F
G
Agent
iad france
iad france
Jonathan Lepretre
Appeler
Écrire
Mettre en avant cette annonce
Signaler une erreur

Localisation :

L'adresse exacte n'est pas renseignée. Le bien se situe dans cette zone.

Performance énergétique :

Logement économe
A
B
C
D
E
317
kWh/m²/an
10
kg CO₂/m²/an
F
G
Logement énergivore
Faible émission de CO₂
A
B
10
kg CO₂/m²/an
C
D
E
F
G
Forte émission de CO₂
Date du diagnostic : 28 octobre 2025
Annonces similaires
Annonces immobilières récentes