• Appartement - 71 m² - 3 pièces
  • Appartement - 71 m² - 3 pièces
  • Appartement - 71 m² - 3 pièces
  • Appartement - 71 m² - 3 pièces
430 400 €
71 m²
3 pièces

Description :

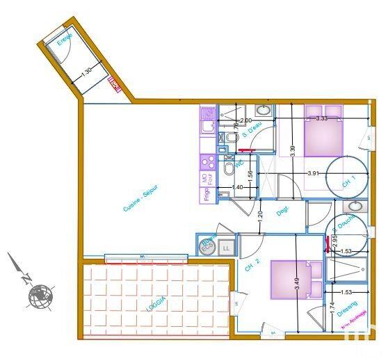
Iad France - Christophe Bellamy (06 84 78 57 34) vous propose : PROGRAMME NEUF – LES JARDINS D’AURÉLIA – FRÉJUS (TOUR DE MARE) - Appartement T3 de 71,30 m² environ et sa terrasse de 13 m² environ situé au premier étage Dans un environnement résidentiel recherché, à proximité immédiate des commodités, du centre-ville de Fréjus et des accès autoroutiers, découvrez Les Jardins d’Aurélia, une résidence neuve à l’architecture contemporaine, composée de seulement 11 logements. Répartis sur 2 niveaux, les appartements du T2 au T4 ont été conçus pour offrir un confort de vie optimal : Volumes généreux et lumineux Grands espaces extérieurs : balcon, loggia, ou terrasse avec jardin privatif Prestations soignées et matériaux de qualité Personnalisation possible selon vos envies (choix des matériaux, aménagements adaptés PMR) Chaque logement bénéficie d’un stationnement : parkings extérieurs, box ou boxables en sous-sol. La résidence propose également des espaces verts paysagers pensés pour la tranquillité et la sérénité des résidents. Conforme à la réglementation RE 2020, ce programme garantit d’excellentes performances thermiques et acoustiques, tout en maîtrisant les charges de copropriété. Un cadre de vie idéal, entre mer et Estérel, pour une résidence principale, secondaire ou un investissement locatif. Dossier complet, plans et disponibilités sur demande. Contactez-moi pour en savoir plus ou organiser une présentation personnalisée. Honoraires d’agence à la charge du vendeur. Bien non soumis au DPE. Les informations sur les risques auxquels ce bien est exposé sont disponibles sur le site Géorisques : www.georisques.gouv.fr. La présente annonce immobilière a été rédigée sous la responsabilité éditoriale de M. Christophe Bellamy EI (ID 87638), mandataire indépendant en immobilier (sans détention de fonds), agent commercial de la SAS I@D France immatriculé au RSAC de FREJUS sous le numéro 942177213, titulaire de la carte de démarchage immobilier pour le compte de la société I@D France SAS. Retrouvez tous nos biens sur notre site internet. www.iadfrance.fr.

Afficher plus de détails

Informations sur ce bien :

L'intérieur :

  • 3 pièces
  • 71 m²
    Informations complémentaires
    Surface habitable : 71 m²

L'extérieur :

  • Terrasse
  • Parking

Les équipements :

  • Ascenseur
  • Interphone
  • Digicode

Autres :

  • Mitoyenneté :
    Non
Synthèse
Appartement à Fréjus
430 400 €
Surface : 71 m²
Prix au m² : 6 062 €
Transaction :
Achat
Référence :
1786030
Date de publication :
Il y a plus de 7 jours
Appartement - 71 m² - 3 pièces
Agent
iad france
iad france
Christophe Bellamy
Appeler
Écrire
Mettre en avant cette annonce
Signaler une erreur

Localisation :

L'adresse exacte n'est pas renseignée. Le bien se situe dans cette zone.
Annonces similaires
Annonces immobilières récentes