Maison - 80 m² - 4 pièces à Francheleins

favoris
  • Maison - 80 m² - 4 pièces
  • Maison - 80 m² - 4 pièces
  • Maison - 80 m² - 4 pièces
  • Maison - 80 m² - 4 pièces
  • Maison - 80 m² - 4 pièces
  • Maison - 80 m² - 4 pièces
  • Maison - 80 m² - 4 pièces
  • Maison - 80 m² - 4 pièces
275 000 €
80 m²
4 pièces
3 chambres

Description :

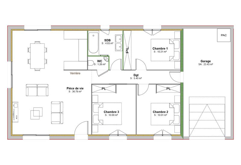
Profitez du prêt à taux O% et de nos offres anniversaire pour réaliser votre rêve à Francheleins (01090) !Devenez propriétaire de cette charmante maison de plain-pied de 80 m² - 3 chambres - garage de 23 m²Les atouts de cette maison :-> Espace jour : Une belle pièce de vie lumineuse de 37 m² avec verrière-> Espace nuit : 3 chambres confortables de 10 m² + une salle de bain avec baignoire/douche au choix-> Garage de 23 m² avec un accès direct à la maison et possibilité d’aménager un cellier/buanderie pour plus de praticité-> Finitions au choix et prestations de qualitéEn ce moment profitez de notre offre anniversaire (valable jusqu'au 31/12/2025) :10 M² OFFERT + UNE CUISINE TOUTE EQUIPEE + PLACARDS, PARQUETS DANS TOUTES LES CHAMBRES, PEINTURE ET FAÏENCE OFFERTS !Pour plus de renseignements :-> Contactez directement votre commerciale CAROLINE GUILLEMAUD ou répondez à cette annonce

Afficher plus de détails

Informations sur ce bien :

L'intérieur :

  • 4 pièces
  • 80 m²
  • 3 Chambres
  • 1 Salle de bain

L'extérieur :

  • Garage

À proximité :

  • Accès voie rapide
  • Centre-ville
  • Commerces
  • Ecoles
  • Transports en commun

Autres :

  • Style :
    Traditionnelle
Synthèse
Maison à Francheleins
275 000 €
Surface : 80 m²
Prix au m² : 3 438 €
Transaction :
Neuf
Référence :
3657 SIQUET CAROLINE
Date de publication :
Aujourd'hui à 18:45
Maison - 80 m² - 4 pièces
Agent
Maisons Punch - Villefranche
Maisons Punch - Villefranche
Appeler
Écrire
Mettre en avant cette annonce
Signaler une erreur

Localisation :

L'adresse exacte n'est pas renseignée. Le bien se situe dans cette zone.
Annonces similaires
Annonces immobilières récentes