• Appartement - 70 m² - 3 pièces
  • Appartement - 70 m² - 3 pièces
  • Appartement - 70 m² - 3 pièces
  • Appartement - 70 m² - 3 pièces
285 000 €
70 m²
3 pièces

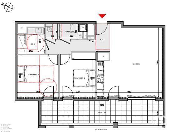
Description :

Iad France - Marie-Rose Gilles (06 98 85 33 80) vous propose : Très beau et lumineux T3 à Eybens au troisième et dernier étage. Eligible Prêt à Taux Zéro. Frais de notaire réduits (environ 2,5%). Livraison imminente : décembre 2025 ! Résidence haut de gamme, sécurisée. Aux prestations énergétiques qualitatives (RT2012-20%) Très belles prestations : - Carrelage 60x60cm - Peinture sur tous les murs - Faïence dans la SDE - Chauffage individuel gaz - Locaux vélos Garage privatif en sous-sol en sus du prix : 19 000€ Pour les investisseurs : - le loyer nu prévisionnel HC est de 830€ - le loyer LMNP prévisionnel HC est de 890€ Accessibilité : Piste cycle et bus à 2 pas de la résidence Ecoles, piscine, restaurants, commerces (boulangerie-patisserie, bureau de poste, boucherie…)… sont facilement accessibles à pied. Contactez moi pour toute information complémentaire et visite. Honoraires d’agence à la charge du vendeur. Bien non soumis au DPE. Les informations sur les risques auxquels ce bien est exposé sont disponibles sur le site Géorisques : www.georisques.gouv.fr. La présente annonce immobilière a été rédigée sous la responsabilité éditoriale de Mlle Marie-Rose Gilles EI (ID 83761), mandataire indépendant en immobilier (sans détention de fonds), agent commercial de la SAS I@D France immatriculé au RSAC de GRENOBLE sous le numéro 478110612, titulaire de la carte de démarchage immobilier pour le compte de la société I@D France SAS. Retrouvez tous nos biens sur notre site internet. www.iadfrance.fr.

Afficher plus de détails

Informations sur ce bien :

L'intérieur :

  • 3 pièces
  • 70 m²
    Informations complémentaires
    Surface habitable : 70 m²
  • Cuisine

L'extérieur :

  • Balcon de 21 m²
  • Box

Les équipements :

  • Ascenseur
  • Interphone
  • Digicode

Autres :

  • Chauffage :
    Individuel, Radiateur, Gaz
  • Année de construction :
    2025
  • Mitoyenneté :
    Non
  • Étage :
    3ème étage (dernier)
    Informations complémentaires
    Nombre d'étages de la construction : 3
Synthèse
Appartement à Eybens
285 000 €
Surface : 70 m²
Prix au m² : 4 071 €
Transaction :
Achat
Référence :
1926384
Date de publication :
Il y a plus de 7 jours
Appartement - 70 m² - 3 pièces
Agent
iad france
iad france
Marie-Rose Gilles
Appeler
Écrire
Mettre en avant cette annonce
Signaler une erreur

Localisation :

L'adresse exacte n'est pas renseignée. Le bien se situe dans cette zone.
Annonces similaires
Annonces immobilières récentes