Retour
Rechercher
Lieu
Où ?
    Type de bien
    Quel type de projet ?
    Particulier Entreprise
    Quel type de bien ?
        Prix
        Quel budget ?
              Surface
              Quelle surface ?
                    Pièces
                    Combien de pièces ?
                      Combien de chambres ?
                          1

                          Vente de terrain à Évenos

                          Recherche 1
                          Carte
                          • Terrain constructible - 2 376 m²
                          • Terrain constructible - 2 376 m²

                          Terrain constructible - 2 376 m²

                          350 000 €
                          L'agence Les Alexiades vous propose EN EXCLUSIVITE à la vente un terrain à bâtir de 2376 m2 au centre du village de Sainte Anne d'Evenos au calme, proche de toutes commodités. le terrain est vendu avec un permis de construire purgé de tout recours permettant de réaliser une maison individuelle de 121m2 avec garage et terrasse. Non soumis au DPE, Chiffrage et informations dispon
                          Professionnel Publié il y a plus de 7 jours
                          Évenos
                          12

                          Ventes de terrains à Ollioules

                          (2.6 km)
                          Terrain - 1 676 m²

                          Terrain - 1 676 m²

                          360 000 €
                          Iad France - Ana-Maria De Jesus Costa vous propose : Opportunité Exceptionnelle à Ollioules, terrain plat et clôturé constructible de 1 676 m². Permis déposé d'une maison d'architecte d'environ 164 m² avec 4 chambres, 3 salle de bains, un patio et un garage. À la recherche d'un terrain pour concrétiser votre projet de construction sur la commune prisée d'Ollioules, dans un cadr
                          Professionnel Publié il y a plus de 7 jours
                          Ollioules
                          • Terrain - 553 m²
                          • Terrain - 553 m²

                          Terrain - 553 m²

                          280 000 €
                          Iad France - Ana-Maria De Jesus Costa vous propose : Opportunité Exceptionnelle à Ollioules, terrain plat et clôturé constructible de 553 m² avec permis déposé et accepté d'une maison d'environ 115 m² avec 4 chambres, dont 2 de plain-pied et d'un garage. À la recherche d'un terrain pour concrétiser votre projet de construction sur la commune prisée d'Ollioules, dans un cadre ve
                          Professionnel Publié il y a plus de 7 jours
                          Ollioules
                          • Terrain constructible - 603 m²
                          • Terrain constructible - 603 m²
                          • Terrain constructible - 603 m²
                          • Terrain constructible - 603 m²
                          • Terrain constructible - 603 m²
                          • Terrain constructible - 603 m² Cliquez pour voir les 7 photos

                          Terrain constructible - 603 m²

                          330 000 €
                          À Ollioules, dans un quartier résidentiel calme, ce terrain plat et viabilisé de 603 m² bénéficie d'un permis de construire obtenu et purgé de tout recours pour une maison de plain-pied d'environ 100 m². Le projet validé comprend une grande pièce de vie de 41,5 m², quatre chambres, trois salles d'eau et un WC indépendant. La construction répond aux normes énergétiques de derni
                          Professionnel Publié il y a plus de 7 jours Non géolocalisée
                          Ollioules
                          • Terrain - 1 001 m²
                          • Terrain - 1 001 m²
                          • Terrain - 1 001 m²

                          Terrain - 1 001 m²

                          367 000 €
                          Iad France - Gaelle PEYRAS vous propose : Exclusivité – Terrain 1000 m² – Quartier La Tourelle à OLLIOULES Au cOEur du très prisé quartier de la Tourelle à OLLIOULES, découvrez cette parcelle de 1000 m², hors lotissement et libre tout constructeur, conjuguant charme, potentiel et emplacement d’exception. Au CALME ABSOLU et idéalement exposé, ce terrain bénéficie d’un ensoleille
                          Professionnel Publié il y a plus de 7 jours
                          Ollioules
                          • Terrain - 415 m²
                          • Terrain - 415 m²
                          • Terrain - 415 m²

                          Terrain - 415 m²

                          180 000 €
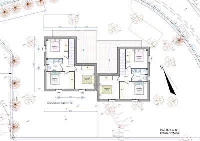
                          Terrain issu d'un détachement de parcelle situé quartier saint Laze à OLLIOULES, d'une superficie de 415m² et offrant la possibilité d'une construction en R+1 de 78m2 habitables. Projet de PC pour une maison T4 : - Au RdC : séjour de 34m2 + cellier - A l'étage : 3 chambres + SdE et WC Les viabilités se trouvent en bordure. Idéal primo accédant pour le prêt à taux zéro. Cette a
                          Professionnel Publié il y a plus de 7 jours
                          Ollioules
                          7

                          Ventes de terrains au Beausset

                          (5.3 km)
                          • Terrain de loisirs - 6 500 m²
                          • Terrain de loisirs - 6 500 m²
                          • Terrain de loisirs - 6 500 m²
                          • Terrain de loisirs - 6 500 m²
                          • Terrain de loisirs - 6 500 m²
                          • Terrain de loisirs - 6 500 m² Cliquez pour voir les 12 photos

                          Terrain de loisirs - 6 500 m²

                          285 000 €
                          Votre agence Maeva Home vous propose à la vente ce magnifique terrain en zone naturelle de la commune du Beausset. Constitué de deux parcelles attenantes et arborées, de surfaces respectives de 3100 m² et 3400 m², ce terrain se situe dans un quartier calme de ce beau village provençal. Exposées plein sud avec une superbe vue sur la Sainte Beaume, ces parcelles présentent de gra
                          Professionnel Publié il y a plus de 7 jours
                          Le Beausset Parking
                          • Terrain - 1 400 m²
                          • Terrain - 1 400 m²

                          Terrain - 1 400 m²

                          350 000 €
                          Terrain constructible à vendre Le Beausset (83330) 1 400 m2 Quartier résidentiel calme Vous rêvez de construire votre maison dans un cadre verdoyant et paisible ?Ce terrain est fait pour vous. Découvrez ce magnifique terrain constructible de 1 400 m2, situé au Beausset (83330), au coeur d'un quartier résidentiel recherché, calme et arboré, sans vis-à-vis. Caractéristiques
                          Professionnel Publié il y a plus de 7 jours Non géolocalisée
                          Le Beausset Constructible Parking
                          • Terrain - 733 m²
                          • Terrain - 733 m²
                          • Terrain - 733 m²
                          • Terrain - 733 m²
                          • Terrain - 733 m²
                          • Terrain - 733 m² Cliquez pour voir les 12 photos

                          Terrain - 733 m²

                          45 000 €
                          Exclusivité le Beausset ! Magnifique parcelle de terrain non constructible d'une surface de 733m² ! Emplacement idéal, situé à 5 minutes entre le circuit Paul Ricard et le village du beausset, venez profiter de ce terrain au c?ur de la pinède, clôturé et aménagé. les propriétaires laisses également une caravane déplaçable entièrement équipée sur la parcelle + un mini chalet
                          Professionnel Publié il y a plus de 7 jours
                          Le Beausset
                          • Terrain - 690 m²
                          • Terrain - 690 m²
                          • Terrain - 690 m²
                          • Terrain - 690 m²
                          • Terrain - 690 m²
                          • Terrain - 690 m² Cliquez pour voir les 8 photos

                          Terrain - 690 m²

                          43 000 €
                          Exclusivité ! Magnifique parcelle de Terrain d'une surface de 690 m² non constructible ! Emplacement idéal pour cette magnifique parcelle situé à 5 minutes entre le circuit Paul Ricard et le village du Castellet. Une magnifique parcelle de terrain à usage de loisir non constructible classée en zone NC. Vous pourrez venir vous recueillir le week-end en famille si vous souhai
                          Professionnel Publié il y a plus de 7 jours
                          Le Beausset
                          Terrain - 12 900 m²

                          Terrain - 12 900 m²

                          57 000 €
                          Découvrez ce terrain non constructible de 12 900 m² (soit un peu plus d'un hectare), niché au bord d'un ruisseau, dans un environnement calme, boisé et préservé. Situé sur le secteur du Beausset, au cœur des magnifiques collines du Territoire du Beausset, ce bien rare séduira les amoureux de nature, de tranquillité et de paysages authentiques. Cadre naturel exceptionnel idéal
                          Professionnel Publié il y a plus de 7 jours
                          Le Beausset
                          11

                          Ventes de terrains à Sanary-sur-Mer

                          (6.2 km)
                          • Terrain - 603 m²
                          • Terrain - 603 m²
                          • Terrain - 603 m²
                          • Terrain - 603 m²
                          • Terrain - 603 m²
                          • Terrain - 603 m² Cliquez pour voir les 7 photos

                          Terrain - 603 m²

                          330 000 €
                          À Ollioules, dans un quartier résidentiel calme, ce terrain plat et viabilisé de 603 m² bénéficie d'un permis de construire obtenu et purgé de tout recours pour une maison de plain-pied d'environ 100 m². Le projet validé comprend une grande pièce de vie de 41,5 m², quatre chambres, trois salles d'eau et un WC indépendant. La construction répond aux normes énergétiques de derniè
                          Professionnel Publié il y a plus de 7 jours
                          Sanary-sur-Mer Parking
                          • Terrain - 473 m²
                          • Terrain - 473 m²
                          • Terrain - 473 m²

                          Terrain - 473 m²

                          480 000 €
                          ? SANARY-SUR-MER - Quartier BEAUCOURS Rare à la vente : terrain constructible à 700 m de la plage ! Dans le secteur très recherché de Beaucours, au coeur d'une impasse résidentielle paisible, découvrez ce terrain constructible de 473 m², idéalement situé à seulement quelques minutes à pied du bord de mer. Ce terrain offre une emprise au sol de 25 % sur deux niveaux, soit une su
                          Professionnel Publié il y a plus de 7 jours Non géolocalisée
                          Sanary-sur-Mer Constructible Parking
                          • Terrain - 942 m²
                          • Terrain - 942 m²
                          • Terrain - 942 m²
                          • Terrain - 942 m²
                          • Terrain - 942 m²
                          • Terrain - 942 m² Cliquez pour voir les 7 photos

                          Terrain - 942 m²

                          150 000 €
                          Iad France - Christelle Viano-Porter vous propose : Sanary sur mer, LA CRIDE TERRAIN DE LOISIRS NON CONSTRUCTIBLE ! Terrain de loisirs NON CONSTRUCTIBLE de 942 m² situé à Sanary-sur-Mer, ce terrain est un véritable havre de paix pour les amoureux de la nature et des plaisirs en plein air. Cette parcelle de terrain offre une superficie généreuse Avec son exposition idéale, à la
                          Professionnel Publié il y a plus de 7 jours
                          Sanary-sur-Mer
                          • Terrain - 473 m²
                          • Terrain - 473 m²
                          • Terrain - 473 m²

                          Terrain - 473 m²

                          480 000 €
                          ? SANARY-SUR-MER - Quartier BEAUCOURS Rare à la vente : terrain constructible à 700 m de la plage ! Dans le secteur très recherché de Beaucours, au coeur d'une impasse résidentielle paisible, découvrez ce terrain constructible de 473 m², idéalement situé à seulement quelques minutes à pied du bord de mer. Ce terrain offre une emprise au sol de 25 % sur deux niveaux, soit une su
                          Professionnel Publié il y a plus de 7 jours
                          Sanary-sur-Mer
                          • Terrain - 473 m²
                          • Terrain - 473 m²
                          • Terrain - 473 m²

                          Terrain - 473 m²

                          480 000 €
                          ? SANARY-SUR-MER - Quartier BEAUCOURS Rare à la vente : terrain constructible à 700 m de la plage ! Dans le secteur très recherché de Beaucours, au coeur d'une impasse résidentielle paisible, découvrez ce terrain constructible de 473 m², idéalement situé à seulement quelques minutes à pied du bord de mer. Ce terrain offre une emprise au sol de 25 % sur deux niveaux, soit une su
                          Professionnel Publié il y a plus de 7 jours Non géolocalisée
                          Sanary-sur-Mer Constructible Parking
                          1

                          Vente de terrain au Revest-les-Eaux

                          (6.7 km)
                          • Terrain - 1 640 m²
                          • Terrain - 1 640 m²
                          • Terrain - 1 640 m²
                          • Terrain - 1 640 m²
                          • Terrain - 1 640 m²
                          • Terrain - 1 640 m² Cliquez pour voir les 6 photos

                          Terrain - 1 640 m²

                          330 000 €
                          Toulon Collet Saint Pierre Coup de fusil pour ce terrain de 1640 m² avec PC obtenu pour une construction de 157 m² avec piscine. Accès carrossable pourvu actuellement chemin en terre .Le terrassement a été effectué. Vue Dégagée. Exposition Sud Est-Ouest Au calme et en position dominante dans un cadre pagnolesque pourvu d'une végétation de résineux et de feuillus. Le relief
                          Professionnel Publié il y a plus de 7 jours Non géolocalisée
                          Le Revest-les-Eaux
                          10

                          Ventes de terrains à La Seyne-sur-Mer

                          (7.2 km)
                          Terrain - 373 m²

                          Terrain - 373 m²

                          190 000 €
                          La Seyne sur Mer, dans les calmes faubourgs aux alentours du centre ville, terrain constructible plat de 373 m², autorisant une emprise au sol maximale de 149 m², sachant qu'il convient de respecter une distance de 5 m par rapport à la rue, et 4 m par rapport aux voisins, sauf à construire une maison de plain pied qui pourra être bâtie en limite séparative . un garage existe su
                          Professionnel Publié il y a plus de 7 jours Non géolocalisée
                          La Seyne-sur-Mer Parking
                          Terrain - 373 m²

                          Terrain - 373 m²

                          190 000 €
                          La Seyne sur Mer, dans les calmes faubourgs aux alentours du centre ville, terrain constructible plat de 373 m², autorisant une emprise au sol maximale de 149 m², sachant qu'il convient de respecter une distance de 5 m par rapport à la rue, et 4 m par rapport aux voisins, sauf à construire une maison de plain pied qui pourra être bâtie en limite séparative. un garage existe sur
                          Professionnel Publié il y a plus de 7 jours
                          La Seyne-sur-Mer
                          Terrain - 373 m²

                          Terrain - 373 m²

                          190 000 €
                          La Seyne sur Mer, dans les calmes faubourgs aux alentours du centre ville, terrain constructible plat de 373 m², autorisant une emprise au sol maximale de 149 m², sachant qu'il convient de respecter une distance de 5 m par rapport à la rue, et 4 m par rapport aux voisins, sauf à construire une maison de plain pied qui pourra être bâtie en limite séparative . un garage existe su
                          Professionnel Publié il y a plus de 7 jours Non géolocalisée
                          La Seyne-sur-Mer Parking
                          Terrain - 6 520 m²

                          Terrain - 6 520 m²

                          109 000 €
                          En fond d'impasse au calme ce terrain naturel boisé n'est pas du tout constructible. Un terrain d'agrément pour ceux qui aiment la nature. Les informations sur les risques auxquels ce bien est exposé sont disponibles sur le site Géorisques : www.georisques.gouv.fr Prix de vente : 109 000 € Honoraires charge vendeur Contactez votre conseiller SAFTI : Martine SAMOU-DUVAL, Tél. :
                          Professionnel Publié il y a plus de 7 jours
                          La Seyne-sur-Mer
                          Terrain constructible - 639 m²

                          Terrain constructible - 639 m²

                          260 000 €
                          Situé au calme d'une impasse, Route des Gendarmes d'Ouvéa (sécteur Donicarde ) ce terrain de 639 m² offre un cadre privilégié dans un environnement résidentiel agréable et sécurisé. Points forts : •Terrain bien proportionné avec exposition sud, gage de luminosité. •Constructibilité autorisée : R+1, emprise au sol 25 %. •Raccordements déjà disponibles (eau, électricité, tout-à-
                          Professionnel Publié il y a plus de 7 jours Non géolocalisée
                          La Seyne-sur-Mer
                          2

                          Ventes de terrains au Castellet

                          (7.2 km)
                          • Terrain - 514 m²
                          • Terrain - 514 m²

                          Terrain - 514 m²

                          340 000 €
                          Terrain constructible de 514 m² avec permis de construire accordé pour une maison type 4 de 107 m² de surface de référence, exposé Sud, situé dans un environnement calme en bordure de campagne. Le projet architectural comprend une grande pièce de vie, trois chambres, une piscine de 3,5 x 7,7m et une terrasse en R + 1. Libre de constructeur, ce terrain vous permet de concevoir v
                          Professionnel Publié il y a plus de 7 jours
                          Le Castellet
                          • Terrain - 560 m²
                          • Terrain - 560 m²
                          • Terrain - 560 m²

                          Terrain - 560 m²

                          350 000 €
                          Terrain constructible de 560 m² avec permis de construire accordé pour une maison type 4 de 107 m² de surface de référence, exposé Sud, situé dans un environnement calme en bordure de campagne. Le projet architectural comprend une grande pièce de vie, trois chambres dont une en rdc, une piscine de 3,5 x 8m et une terrasse en R + 1. Libre de constructeur, ce terrain vous permet
                          Professionnel Publié il y a plus de 7 jours
                          Le Castellet Exposition Sud
                          9

                          Ventes de terrains à Six-Fours-les-Plages

                          (7.8 km)
                          • Terrain de loisirs - 8 590 m²
                          • Terrain de loisirs - 8 590 m²
                          • Terrain de loisirs - 8 590 m²
                          • Terrain de loisirs - 8 590 m²

                          Terrain de loisirs - 8 590 m²

                          127 000 €
                          Terrain en zone naturelle non constructible , il s'agit d'une parcelle en zone N1 pour une surface de 8590m². Parcelle de terre en nature de bois taillis. Un endroit de nature en forêt pour les amoureux de la nature! A saisir ! tel au 0672218944 Honoraires inclus de 5.83% TTC à la charge de l'acquéreur. Prix hors honoraires 120 000 €. Les informations sur les risques auxquels
                          Professionnel Publié il y a plus de 7 jours Non géolocalisée
                          Six-Fours-les-Plages Parking
                          • Terrain - 350 m²
                          • Terrain - 350 m²
                          • Terrain - 350 m²
                          • Terrain - 350 m²

                          Terrain - 350 m²

                          215 000 €
                          Iad France - Cyril Mirat vous propose : SIX-FOURS - QUARTIER LA COLLÉGIALE Terrain lot 2 Terrain de 350 m², avec un projet maison construit par 'Maisons Naturea Toulon'. Maison de 85 m² environ avec garage. Elle se compose au rez-de-chaussée d'une pièce de vie salon / cuisine donnant sur le jardin, une buanderie et WC A l'étage trois chambres, une salle d'eau et WC séparés UNE
                          Professionnel Publié il y a plus de 7 jours
                          Six-Fours-les-Plages
                          • Terrain - 586 m²
                          • Terrain - 586 m²

                          Terrain - 586 m²

                          370 000 €
                          Situé dans un environnement paisible et prisé de Six-Fours-les-Plages, à proximité immédiate de la forêt, du centre-ville et de toutes les commodités, ce terrain plat et viabilisé offre un cadre idéal pour concrétiser votre projet de construction. D'une superficie totale d'environ 586 m² (surface utile d'environ 500 m²), il bénéficie d'une vue dégagée et d'une emprise au sol au
                          Professionnel Publié il y a plus de 7 jours
                          Six-Fours-les-Plages
                          • Terrain - 506 m²
                          • Terrain - 506 m²
                          • Terrain - 506 m²

                          Terrain - 506 m²

                          310 000 €
                          Iad France - Benoît Tran Van vous propose : Terrain à Bâtir de 506 m², Une opportunité Rare pour votre projet de construction situé à Six-Fours-les-Plages, idéalement placé pour concrétiser votre projet de construction. Terrain plat, situé dans un quartier calme et recherché, ce terrain offre un cadre idéal pour la réalisation de votre future habitation. N'hésitez pas à me cont
                          Professionnel Publié il y a plus de 7 jours
                          Six-Fours-les-Plages
                          • Terrain - 8 590 m²
                          • Terrain - 8 590 m²
                          • Terrain - 8 590 m²
                          • Terrain - 8 590 m²

                          Terrain - 8 590 m²

                          127 000 €
                          Terrain en zone naturelle non constructible, il s'agit d'une parcelle en zone N1 pour une surface de 8590 m². Parcelle de terre en nature de bois taillis. Un endroit de nature en forêt pour les amoureux de la nature ! À saisir ! tel au 06 72 21 89 44 Honoraires inclus de 5.83% TTC à la charge de l'acquéreur. Prix hors honoraires 120 000 €. Les informations sur les risques auxqu
                          Professionnel Publié il y a plus de 7 jours
                          Six-Fours-les-Plages
                          11

                          Ventes de terrains à Toulon

                          (7.9 km)
                          • Terrain - 2 330 m²
                          • Terrain - 2 330 m²
                          • Terrain - 2 330 m²
                          • Terrain - 2 330 m²
                          • Terrain - 2 330 m²
                          • Terrain - 2 330 m² Cliquez pour voir les 7 photos

                          Terrain - 2 330 m²

                          27 000 €
                          Sur Toulon, sur les hauteurs verdoyantes à la limite du Revest-les-Eaux, ce terrain de loisirs offre un cadre naturel d'exception. D'une superficie privative de 2 330 m2 (sur un ensemble total de 4 660 m2), il se distingue par sa situation dominante et sa vue dégagée sur les collines, la végétation méditerranéenne, et même un aperçu sur la mer depuis son point le plus haut. L
                          Professionnel Publié le 30 déc. 2025 à 00:49 Non géolocalisée
                          Toulon Parking Exposition Sud
                          • Terrain - 2 100 m²
                          • Terrain - 2 100 m²
                          • Terrain - 2 100 m²

                          Terrain - 2 100 m²

                          709 000 €
                          Iad France - Nathalie Querrien vous propose : Terrain à bâtir à Toulon - Emplacement idéal Opportunité rare à Toulon ! Ce terrain à bâtir, situé dans un quartier prisé, offre un emplacement idéal pour la construction de votre future maison. Permis accepté LIBRE CONSTRUCTEUR pour : Une habitation d'environ 256 m² avec vue mer Un garage en sous-sol pour 5 véhicules De belles surf
                          Professionnel Publié il y a plus de 7 jours
                          Toulon
                          • Terrain constructible - 653 m²
                          • Terrain constructible - 653 m²
                          • Terrain constructible - 653 m²

                          Terrain constructible - 653 m²

                          365 000 €
                          Toulon dans le secteur de Bas Faron. Cadre pagnolesque de standing et arboré Superbe terrain plat à bâtir de 653 m² avec une emprise au sol de 25%. L' accès est immédiat par une servitude de passage déjà aménagée . Le terrain fait partie d'un détachement de parcelle d'une propriété totalement sécurisée avec double portails fermés. Tout à l'égout,VRD en bordure . Aménagemen
                          Professionnel Publié il y a plus de 7 jours Non géolocalisée
                          Toulon Piscine
                          • Terrain - 4 400 m²
                          • Terrain - 4 400 m²
                          • Terrain - 4 400 m²
                          • Terrain - 4 400 m²
                          • Terrain - 4 400 m²

                          Terrain - 4 400 m²

                          1 660 000 €
                          Terrain constructible de 4 400 m² - Toulon Ouest - Maison + dépendances À vendre, grand terrain constructible de 4 400 m² situé dans un secteur résidentiel calme et recherché de Toulon Ouest, à seulement 10 minutes du centre-ville. Zone PLU UE : permet la construction d'habitations ou de petits collectifs (sous réserve d'autorisations administratives). Le terrain comprend un
                          Professionnel Publié il y a plus de 7 jours
                          Toulon Parking
                          • Terrain - 5 900 m²
                          • Terrain - 5 900 m²
                          • Terrain - 5 900 m²
                          • Terrain - 5 900 m²
                          • Terrain - 5 900 m²
                          • Terrain - 5 900 m² Cliquez pour voir les 6 photos

                          Terrain - 5 900 m²

                          295 000 €
                          Terrain non constructible de près de 6000m2 proche centre ville de La Valette, avec un cabanon d'environ 30M2 et un hangar.  Terrain globalement plat, avec nombreux oliviers, beaucoup de cachet. À clôturer pour partie, accès chemin en terre Très joli potentiel pour une campagne de famille, un lieu de rassemblement Week-end et vacances ! Plus d'infos au 04 94 00 77 77 
                          Professionnel Publié il y a plus de 7 jours
                          Toulon

                          Achat d'un terrain à Évenos. Toutes les ventes immobilières à Évenos et aux environs. Terrain à vendre.

                          Recherche en cours...
                          Rechercher dans cette zone