• Pavillon - 90 m² - 4 pièces
  • Pavillon - 90 m² - 4 pièces
  • Pavillon - 90 m² - 4 pièces
  • Pavillon - 90 m² - 4 pièces
350 000 €
90 m²
4 pièces
3 chambres

Description :

MAISON INDIVIDUELLE AVEC GRAND JARDIN – RUE SANS ISSUE – FORT POTENTIEL

EFFICITY, l'agence qui estime votre bien en ligne, vous propose cette maison individuelle rare à la vente située dans un secteur très recherché d' Épinay-sur-Seine.

Située dans une rue sans issue, au calme absolu, cette maison de 90 m² habitables implantée sur 408 m² de terrain offre un cadre de vie privilégié pour les familles recherchant tranquillité, jardin et proximité immédiate des transports et des écoles.

Une maison familiale lumineuse

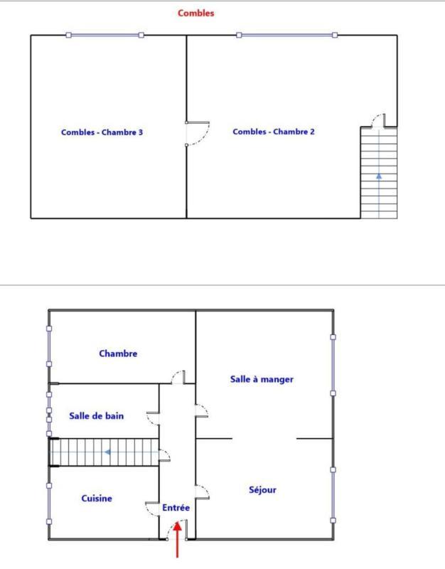
Au rez-de-chaussée :
•Une belle pièce de vie lumineuse avec grandes fenêtres
•Une cuisine séparée
•Une chambre
•Une salle de bain

À l'étage (combles aménagés) :
•Deux grandes chambres

Sous-sol total aménagé
•Garage
•Bureau
•WC
•Grande pièce technique / atelier

Un bien à fort potentiel

La maison nécessite des travaux de modernisation, mais elle offre un potentiel exceptionnel d'aménagement et d'agrandissement pour créer une belle maison familiale dans un secteur très recherché.

Localisation idéale
•RER H à 10 minutes à pied
•Tramway ligne 8 à 7 minutes à pied
•Écoles publiques et privées à proximité immédiate
•Collège et lycée à 5 minutes à pied

Un bien rare sur le secteur, idéal pour les acquéreurs souhaitant personnaliser leur future maison et profiter d'un grand terrain au calme.

Prix : 350 000 €

Contact : Kémé Philippe – Efficity - 0668621710
Les informations sur les risques auxquels ce bien est exposé sont disponibles sur le site Georisque : georisques. gouv. fr
Keme Philippe - EI - est Agent Commercial mandataire en immobilier, immatriculé au Registre Spécial des Agents Commerciaux du Tribunal de Commerce de Nanterre sous le n°801716796.
Siège social du mandant : effiCity, 48 avenue de Villiers - 75017 PARIS - Société par Actions Simplifiée, société au capital de 132 373,05 euros, immatriculée au RCS Paris 497 617 746 et titulaire de la Carte professionnelle CPI 7501 2015 000 002 025 - CCI Paris IDF - Caisse de Garantie : GALIAN Assurances 89 rue de la Boétie 75008 Paris

Afficher plus de détails

Informations sur ce bien :

L'intérieur :

  • 4 pièces
  • 90 m²
    Informations complémentaires
    Surface habitable : 90 m²
  • 3 Chambres
  • 1 Salle de bain

L'extérieur :

  • Jardin
  • 3 Parkings
  • Garage
    Informations complémentaires
    1 place

Les équipements :

  • Accès handicapé

Autres :

  • Chauffage :
    Individuel, Radiateur, Gaz
  • Année de construction :
    1955
  • Exposition :
    Ouest

Copropriété :

  • Taxe foncière :
    1 800 €
Synthèse
Pavillon à Épinay-sur-Seine
350 000 €
Surface : 90 m²
Prix au m² : 3 889 €
Transaction :
Achat
Référence :
208629
Mandat :
Exclusif
Date de publication :
Aujourd'hui à 09:00
Pavillon - 90 m² - 4 pièces
Performance énergétique
A
B
C
D
E
F
G
Gaz à effet de serre
A
B
C
D
E
F
G
Agent
RESEAU EFFICITY
RESEAU EFFICITY
Mme Keme Philippe
Appeler
Écrire
Mettre en avant cette annonce
Signaler une erreur

Localisation :

Performance énergétique :

Logement économe
A
B
C
D
E
285
kWh/m²/an
63
kg CO₂/m²/an
F
G
Logement énergivore
Faible émission de CO₂
A
B
C
D
E
63
kg CO₂/m²/an
F
G
Forte émission de CO₂
Date du diagnostic : 11 mars 2026
Annonces similaires
Annonces immobilières récentes