Duplex - 99 m² - 4 pièces à Eckbolsheim
Description :
Nous avons le plaisir de vous proposer un appartement en duplex de 4/5 pièces d'une superficie de 99m2, idéalement situé dans la charmante ville d'Eckbolsheim.
Cet appartement se trouve dans une petite copropriété de seulement 4 lots d'habitation.
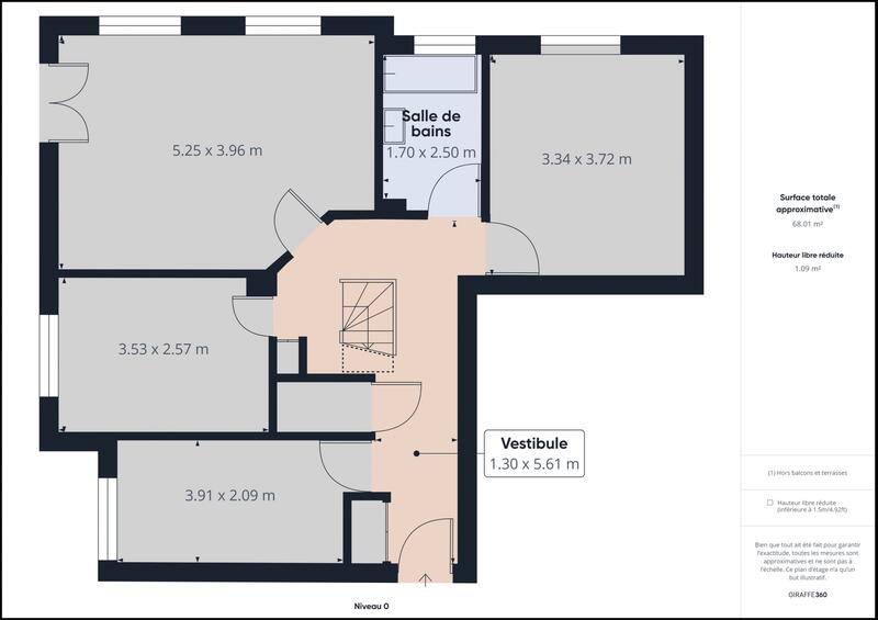
Au premier niveau, vous découvrirez une entrée donnant sur une chambre, un bureau, un W.C. séparé, une salle de bains, une cuisine indépendante ainsi qu'un séjour avec accès balcon. Le deuxième niveau vous offre une mezzanine avec accès balcon, une salle d'eau avec W.C. et une chambre.
Le bien est équipé d'un garage double en longueur avec accès par les communs et d'une place de stationnement extérieure privée.
Ce bien a été entièrement rénové fin 2023, chauffe eau éléctrique neuf.
Travaux de toiture réalisé en 2024.
La localisation de l'appartement est également un atout majeur, car il est situé dans une zone très demandée de la ville d'Eckbolsheim. Vous pourrez profiter de la proximité des transports en commun, des commerces et des restaurants tout en profitant d'un cadre de vie paisible.
Ne manquez pas cette opportunité et contactez-nous dès maintenant pour organiser une visite.
Honoraires à la charge du vendeur. Dans une copropriété de 15 lots. Quote-part moyenne du budget prévisionnel 1 024 €/an. Aucune procédure n'est en cours. Classe énergie D, Classe climat B Montant moyen estimé des dépenses annuelles d'énergie pour un usage standard, établi à partir des prix de l'énergie de l'année 2021 : entre 1430.00 et 1990.00 €. Les informations sur les risques auxquels ce bien est exposé sont disponibles sur le site Géorisques : georisques.gouv.fr.
Informations sur ce bien :
L'intérieur :
-
4 pièces
-
99 m²
-
3 Chambres
-
Cuisine séparéeInformations complémentairesSéparée
-
1 Salle de bain
-
1 Salle d'eau
-
2 Toilettes
-
Séjour de 20 m²
L'extérieur :
-
2 Balcons
-
Parking
-
Box
Autres :
-
Chauffage :Individuel, Électrique
-
Année de construction :1991
-
Vue :Dégagée
-
Étage :1er étageInformations complémentairesNombre d'étages de la construction : 1
Copropriété :
-
Copropriété :Oui
-
Nombre de lots :15
-
Charges annuelles :1 024 €
Localisation :
Performance énergétique :
Ventes d'appartements à proximité
- 7 ventes d'appartements à Wolfisheim (1.7 km)
- 42 ventes d'appartements à Lingolsheim (2.8 km)
- 19 ventes d'appartements à Oberhausbergen (3 km)
- 7 ventes d'appartements à Oberschaeffolsheim (3.3 km)
- 17 ventes d'appartements à Holtzheim (3.5 km)
- 20 ventes d'appartements à Mittelhausbergen (3.9 km)
- 16 ventes d'appartements à Ostwald (4.3 km)
- 1 vente d'appartement à Achenheim (4.7 km)
- 975 ventes d'appartements à Strasbourg (4.7 km)