Maison - 94 m² - 4 pièces à Dracé

favoris
  • Maison - 94 m² - 4 pièces
  • Maison - 94 m² - 4 pièces
  • Maison - 94 m² - 4 pièces
  • Maison - 94 m² - 4 pièces
  • Maison - 94 m² - 4 pièces
  • Maison - 94 m² - 4 pièces
  • Maison - 94 m² - 4 pièces
  • Maison - 94 m² - 4 pièces
  • Maison - 94 m² - 4 pièces
270 000 €
94 m²
4 pièces
3 chambres

Description :

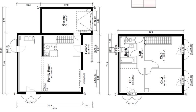
Offre exceptionnelle 50 ans Maisons Punch:10m2 offerts + Pack Déco et Pack Cuisine offerts!Réalisez votre projet de construction à Chalamont.Venez découvrir ce très beau terrain de 601m² dans un petit lotissement viabilisé, à 5 minutes de Belleville et, à seulement 55 minutes de Lyon.Nous vous proposons une maison de 94m², un modèle contemporain avec de beaux volumes, composé d'un grand séjour lumineux, de ses 3 chambres spacieuses de 10 à 13 m² ainsi qu'un garage de 18 m².Une maison contemporaine, idéale pour toute la famille!Sont incluses dans le tarif proposé, les options suivantes:- volets roulants électriques connectés,- 2 WC séparés,- Débords de toit PVC- Pompe à chaleur AIR/EAU- Plancher chauffant- Carrelage 45 x 45 cmPrix total de 270000 euros incluant les frais de notaire, VRD et Viabilités (estimation)Exemple de projet de construction entièrement personnalisable et sur mesure:Pour plus de renseignements, merci de contacter votre conseiller en habitat Mr Gregory GUILLEMAUD chez Maisons Punch à Villefranche sur Saône

Afficher plus de détails

Informations sur ce bien :

L'intérieur :

  • 4 pièces
  • 94 m²
  • 3 Chambres
  • 1 Salle de bain

L'extérieur :

  • Garage

À proximité :

  • Accès voie rapide
  • Centre-ville
  • Commerces
  • Ecoles
  • Transports en commun

Autres :

  • Style :
    Traditionnelle
Synthèse
Maison à Dracé
270 000 €
Surface : 94 m²
Prix au m² : 2 872 €
Transaction :
Neuf
Référence :
7611 GUILLEMAUD Grégory
Date de publication :
Aujourd'hui à 10:46
Maison - 94 m² - 4 pièces
Agent
Maisons Punch - Villefranche
Maisons Punch - Villefranche
Grégory GUILLEMAUD
Appeler
Écrire
Mettre en avant cette annonce
Signaler une erreur

Localisation :

L'adresse exacte n'est pas renseignée. Le bien se situe dans cette zone.
Annonces similaires
Annonces immobilières récentes