Maison - 94 m² - 4 pièces à Dracé

favoris
  • Maison - 94 m² - 4 pièces
  • Maison - 94 m² - 4 pièces
  • Maison - 94 m² - 4 pièces
  • Maison - 94 m² - 4 pièces
290 000 €
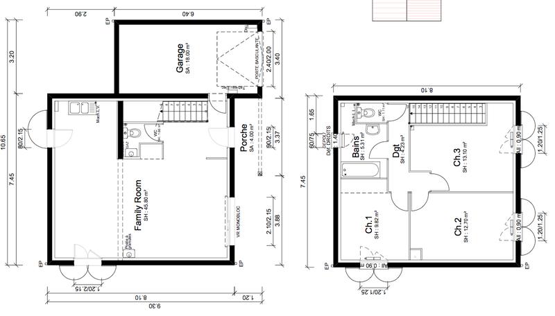
94 m²
4 pièces
3 chambres

Description :

OFFRE EXCEPTIONNELLE POUR LES 50 ANS DU GROUPE : 10M² OFFERTS + PACK CUISINE + PACK DECO OFFERTMaisons Punch est fier de vous présenter un nouveau projet de construction dans la charmante commune de Dracé. Nous vous offrons la chance unique de devenir propriétaire d'une maison moderne et confortable de 94m² avec un étage, sur un terrain de 830m².Caractéristiques de la maison :Surface habitable : 94m²Nombre d'étages : 1Nombre de chambres : 3 chambres spacieusesNombre de salles de bain : 1Espace de vie : Grand séjour lumineux avec cuisine ouverteExtérieur : Jardin privéEmplacement idéal : Situé à Dracé, à proximité des écoles et commercesConception moderne : Matériaux de qualité, finitions soignées, et respect des normes énergétiques RE 2020 pour une maison économe en énergie.Personnalisation : Plans modifiables selon vos envies et besoins pour créer un espace qui vous ressemble.Accompagnement complet : De la conception à la remise des clés, Maisons Punch vous accompagne à chaque étape de votre projet.Ne manquez pas cette opportunité unique de construire la maison de vos rêves dans un environnement privilégié ! Pour plus d'informations, rendez-vous sur notre site web ou contactez-nous dès aujourd'hui pour planifier une visite du terrain et une rencontre avec notre équipe.Votre contact : Kyllian DA SILVA

Afficher plus de détails

Informations sur ce bien :

L'intérieur :

  • 4 pièces
  • 94 m²
  • 3 Chambres
  • 1 Salle de bain

L'extérieur :

  • Garage

À proximité :

  • Accès voie rapide
  • Centre-ville
  • Commerces
  • Ecoles
  • Transports en commun

Autres :

  • Style :
    Traditionnelle
Synthèse
Maison à Dracé
290 000 €
Surface : 94 m²
Prix au m² : 3 085 €
Transaction :
Neuf
Référence :
6513 Da Silva Kyllian
Date de publication :
Il y a plus de 7 jours
Maison - 94 m² - 4 pièces
Agent
Maisons Punch - Villefranche
Maisons Punch - Villefranche
Appeler
Écrire
Mettre en avant cette annonce
Signaler une erreur

Localisation :

L'adresse exacte n'est pas renseignée. Le bien se situe dans cette zone.
Annonces similaires
Annonces immobilières récentes