Terrain constructible - 554 m² à Distroff
favoris
150 081 €
Description :
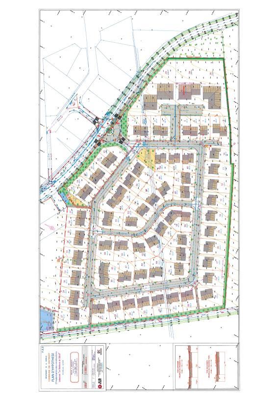
DISTROFF : Situé dans un nouveau Lotissement à DSITROFF, terrain viabilisé de 5 ares 54. Libre de constructeur
Prix de vente : 150 081 €
Afficher plus de détails
Informations sur ce bien :
L'intérieur :
-
554 m²
Terrain :
-
Viabilisé :Oui
-
Raccordé au gaz :Oui
Synthèse
Terrain constructible à Distroff
150 081 €
Surface :
554 m²
Prix au m² :
271 €
Transaction :
Achat
Référence :
TERRAIN_DISTROFF
Disponibilité :
01/03/2026
Date de publication :
Il y a plus de 7 jours
Contacter l'annonceur
Agent
ECI ESPACE CONSEIL IMMOBILIER
Mettre en avant cette annonce
Signaler une erreur
Localisation :
L'adresse exacte n'est pas renseignée. Le bien se situe dans cette zone.
Ventes de terrains à proximité
- 2 ventes de terrains à Volstroff (2.2 km)
- 1 vente de terrain à Kuntzig (2.3 km)
- 3 ventes de terrains à Metzervisse (2.4 km)
- 4 ventes de terrains à Inglange (3.1 km)
- 3 ventes de terrains à Metzeresche (4.9 km)
- 2 ventes de terrains à Bertrange (5.6 km)
- 1 vente de terrain à Basse-Ham (6.2 km)
- 1 vente de terrain à Kédange-sur-Canner (6.4 km)
- 1 vente de terrain à Rurange-lès-Thionville (7.1 km)