• Appartement - 73 m² - 3 pièces
  • Appartement - 73 m² - 3 pièces
  • Appartement - 73 m² - 3 pièces
389 000 €
73 m²
3 pièces
2 chambres

Description :

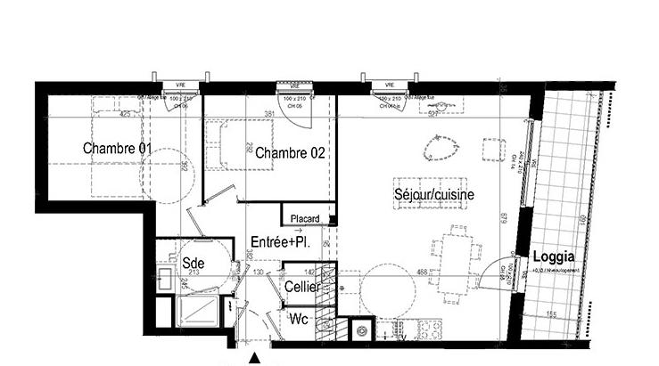
DINARD - A 800 mètres de la Mer - Appartement 3 pièces - 72.88m²- 1er étage avec ascenseur - loggia de 10.45m² - garage en sous-sol sécurisé. Frais de notaire offerts Dans une résidence contemporaine idéalement située à seulement 800 mètres de la plage, non loin des commerces, du Club de Tennis et des activités nautiques, du GR34 et de la célèbre Promenade au Clair de Lune, cet appartement de 3 pièces de 72,88 m² vous séduira par son confort et sa praticité. Situé au premier étage avec ascenseur, il offre une entrée avec placard, un lumineux séjour-salon de 33,20 m² avec cuisine aménagée ouverte, s'ouvrant sur une loggia de 10,45 m². L'espace nuit comprend deux chambres, une salle d'eau, un WC indépendant et un cellier. Bénéficiant d'un système de chauffage au gaz, cet appartement dispose d'un accès sécurisé par badge et visiophone. Un garage sécurisé en sous-sol complète ce bien. Que ce soit pour une résidence principale, un pied-à-terre en bord de mer ou un investissement locatif, cette adresse allie emplacement privilégié et cadre de vie balneaire. Prix promoteur - Les informations sur les risques auxquels ce bien est exposé sont disponibles sur le site Géorisques : www.georisques.gouv.fr. Photos non contractuelles - Suggestions d'aménagements Copropriété de 44 lots - dont 44 lots habitation. (Pas de procédure en cours). Charges annuelles : 1036 euros.

Afficher plus de détails

Informations sur ce bien :

L'intérieur :

  • 3 pièces
  • 73 m²
    Informations complémentaires
    Surface habitable : 73 m²
  • 2 Chambres
  • Cuisine aménagée
    Informations complémentaires
    Aménagée
  • 1 Salle d'eau
  • 1 Toilette

L'extérieur :

  • Balcon de 10 m²
  • Garage

Les équipements :

  • Ascenseur
  • Tout à l'égout
  • Double vitrage

Autres :

  • Chauffage :
    Individuel, Radiateur, Gaz
  • Étage :
    1er étage
    Informations complémentaires
    Nombre d'étages de la construction : 2
  • Nombre de niveaux :
    1

Copropriété :

  • Copropriété :
    Oui
  • Nombre de lots :
    44
  • Charges annuelles :
    1 036 €
  • Procédure :
    Pas de procédure en cours
Synthèse
Appartement à Dinard
389 000 €
Surface : 73 m²
Prix au m² : 5 329 €
Transaction :
Achat
Référence :
55681-B101
Date de publication :
Il y a plus de 7 jours
Appartement - 73 m² - 3 pièces
Agent
Cabinet Moraine Immobilier
Cabinet Moraine Immobilier
Appeler
Écrire
Mettre en avant cette annonce
Signaler une erreur

Localisation :

L'adresse exacte n'est pas renseignée. Le bien se situe dans cette zone.

Performance énergétique :

Bien non soumis au Diagnostic de Performance Énergétique (DPE)

Annonces similaires
Annonces immobilières récentes