• Appartement - 57 m² - 2 pièces
  • Appartement - 57 m² - 2 pièces
361 560 €
57 m²
2 pièces
1 chambre

Description :

OPPORTUNITÉ A SAISIR
Appartement 2 pièces à Dinard

A seulement 300 mètres de la plage et à deux pas du centre-ville, découvrez ce charmant appartement 2 pièces idéalement situé à Dinard.

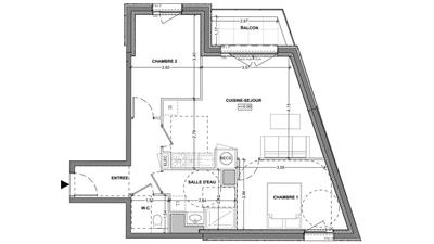
D'une surface bien agencée, il se compose de :
- Une entrée,
- Une salle d'eau avec WC,
- Une cuisine indépendante,
- Une chambre,
- Une agréable pièce de vie lumineuse, idéale pour se détendre ou recevoir.

En complément, l'appartement dispose d'un grenier et d'une cave, offrant des espaces de rangement appréciables.

Les +

Emplacement privilégié proche mer et commerces

Faibles charges de copropriété : 510 euros/an

Parfait pour un pied-à-terre, un premier achat ou un investissement locatif

Ne tardez pas à visiter cette belle opportunité au coeur de Dinard !

Selon l'article L.561.5 du Code Monétaire et Financier, pour l'organisation de la visite, la présentation d'une pièce d'identité vous sera demandée.
Cette vente est garantie 12 mois.
Le professionnel garantit et sécurise votre projet immobilier.
Prix de vente 345 000 euros dont 4,8 % honoraires TTC inclus charge acquéreur soit 361560 euros .
Consommation énergétique DPE E- 316 kwh/m²/an
Emission de gaz à effet de serre E- 69 kg CO2/m²/an
Montant moyen estimé des dépenses annuelles d'énergie pour un usage standard établi à partir des prix de l'énergie de l'année 2021 : entre 1210 euros et 1690 euros
DPE? GES?
Pour visiter et vous accompagner dans votre projet, contactez Ludwig LEVAVASSEUR, au 0783300492 ou, par courriel à l.levavasseur@proprietes-privees.com.
Selon l'article L.561.5 du Code Monétaire et Financier, pour l'organisation de la visite, la présentation d'une pièce d'identité vous sera demandée.
Cette présente annonce a été rédigée sous la responsabilité éditoriale de Ludwig LEVAVASSEUR agissant sous le statut d'agent commercial immatriculé au RSAC SAINT MALO 528331432 auprès de SAS PROPRIETES PRIVEES, au capital de 44 920 euros, ZAC LE CHÊNE FERRÉ - 44 ALLÉE DES CINQ CONTINENTS 44120 VERTOU; SIRET 487 624 777 00040, RCS Nantes. Carte Professionnelle Transactions sur immeubles et fonds de commerce (T) et Gestion immobilière (G) n°CPI 4401 2016 000 010 388 délivrée par la CCI Nantes - Saint Nazaire. Compte séquestre n°30932508467 BPA SAINT-SEBASTIEN-SUR-LOIRE (44230). Garantie GALIAN-SMABTP - 89 rue de la Boétie, 75008 Paris - n°28137 J pour 2 000 000 euros pour T et 120 000 euros pour G. Assurance responsabilité civile professionnelle par GALIAN-SMABTP n° de police 28137.J

Mandat réf : 429628 - Le professionnel garantit et sécurise votre projet immobilier. (4.80 % honoraires TTC à la charge de l'acquéreur.)

Ludwig LEVAVASSEUR (EI) Agent Commercial - Numéro RSAC : SAINT MALO 528331432 - .

Afficher plus de détails

Informations sur ce bien :

L'intérieur :

  • 2 pièces
  • 57 m²
    Informations complémentaires
    Surface habitable : 57 m²
  • 1 Chambre
  • 1 Salle d'eau

Autres :

  • Étage :
    RDC
Synthèse
Appartement à Dinard
361 560 €
Surface : 57 m²
Prix au m² : 6 343 €
Transaction :
Achat
Référence :
429628LLEV
Date de publication :
Il y a plus de 7 jours
Appartement - 57 m² - 2 pièces
Performance énergétique
A
B
C
D
E
F
G
Gaz à effet de serre
A
B
C
D
E
F
G
Agent
Propriétés Privées
Propriétés Privées
Ludwig LEVAVASSEUR
Appeler
Écrire
Mettre en avant cette annonce
Signaler une erreur

Localisation :

Performance énergétique :

Logement économe
A
B
C
D
E
316
kWh/m²/an
69
kg CO₂/m²/an
F
G
Logement énergivore
Faible émission de CO₂
A
B
C
D
E
69
kg CO₂/m²/an
F
G
Forte émission de CO₂
Date du diagnostic : 24 mai 2024
Annonces similaires
Annonces immobilières récentes