• Appartement - 26 m² - 1 pièce
  • Appartement - 26 m² - 1 pièce
  • Appartement - 26 m² - 1 pièce
275 000 €
26 m²
1 pièce

Description :

La réhabilitation de cet ancien siège d'entreprise propose 14 appartements de standing allant du studio au 5 pièces, harmonieusement organisés, dans un cadre paysager ayant fait l'objet d'une attention toute particulière.

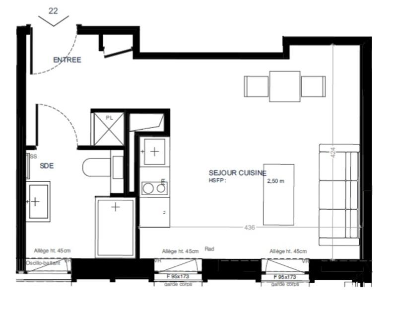
Ce studio au 2e étage exposé sud, (équivalent 3e étage sur rez-de-jardin), comprend un ensemble séjour/cuisine de 17.4 m2, une entrée avec placard et une salle de douche avec wc.

Le projet répondra à la NRA (Nouvelle Réglementation Acoustique) et à la RE2020 pour les parties neuves, à la
RT élément par élément pour les parties rénovées. Les prestations de chacune des parties conduiront à la même
finition dans le respect des règles thermiques qui leur sont applicables.

La production ECS sera assurée par un dispositif collectif de pompe à chaleur air/eau, le chauffage de type individuel électrique sera assuré par des convecteurs à chaleur douce connectés et dotés d'une commande centralisée.

D'autres lots sont disponibles, réservation et renseignements sur simple appel téléphonique, pour une livraison annoncée dans le courant du 3e trimestre 2026.
Les informations sur les risques auxquels ce bien est exposé sont disponibles sur le site Géorisques : www. georisques. gouv. fr.

Réseau Immobilier CAPIFRANCE - Votre agent commercial (RSAC N°320 483 217 - Greffe de ROUEN) Thierry DUGAT Entrepreneur Individuel 06 60 60 40 10 - Réf.304121

Afficher plus de détails

Informations sur ce bien :

L'intérieur :

  • 1 pièce
  • 26 m²
    Informations complémentaires
    Surface habitable : 26 m²
  • 1 Salle d'eau

Autres :

  • Exposition :
    Sud
  • Étage :
    2nd étage
Synthèse
Appartement à Courbevoie
275 000 €
Surface : 26 m²
Prix au m² : 10 577 €
Transaction :
Achat
Référence :
340935802093
Date de publication :
Il y a plus de 7 jours
Appartement - 26 m² - 1 pièce
Agent
CAPIFRANCE
CAPIFRANCE
Monsieur Thierry DUGAT
Appeler
Écrire
Mettre en avant cette annonce
Signaler une erreur

Localisation :

L'adresse exacte n'est pas renseignée. Le bien se situe dans cette zone.

Performance énergétique :

Bien non soumis au Diagnostic de Performance Énergétique (DPE)

Annonces similaires
Annonces immobilières récentes