• Appartement - 37 m² - 1 pièce
  • Appartement - 37 m² - 1 pièce
  • Appartement - 37 m² - 1 pièce
  • Appartement - 37 m² - 1 pièce
351 000 €
37 m²
1 pièce

Description :

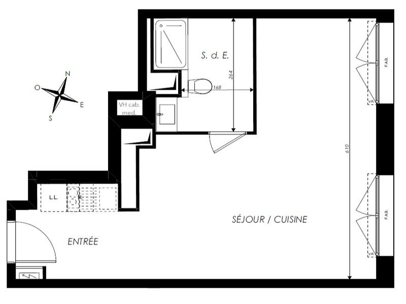
Ce studio de 37.39 m2 exposé est, au 1er étage d'un ensemble immobilier bâtiment B, comprenant 64 logements allant du studio au 5 pièces

Il comprend, pièce à vivre constituée de séjour/cuisine/entrée d'une surface de 31.69 m2 et d'une salle d'eau avec wc. Une place de parking en sous-sol sécurisé complète le bien.

D'autres lots sont disponibles : renseignements sur simple appel téléphonique, ainsi que pour une réservation sans plus tarder, afin d'avoir l'assurance de devenir propriétaire à la date de livraison envisagée au 3e trimestre 2028.

L'excellente desserte en transports (Transilien, RER A et E, Métro ligne 1 et futur métro 15) renforce l'attractivité durable de ce bien.Dans un quartier privilégié alliant tranquillité résidentielle et commodités urbaines, la résidence répond parfaitement aux attentes d'une clientèle exigeante.

La présente opération sera conforme à :
- la réglementation environnementale RE 2020
- la nouvelle réglementation Acoustique (NRA)
- la norme électrique NFC 15-100
- la réglementation d'accessibilité des bâtiments d'habitation
- la certification environnementale BEE de chez Prestaterre

La production d'eau chaude sanitaire et le chauffage seront assurés par une sous-station raccordée au réseau de chaleur urbain. Le chauffage des logements sera assuré par des radiateurs à eau chaude en acier laqué type Plan Compact PK0 de chez KERMI ou HM Thema Uni de chez HM RADIATEURS ou équivalent.
Les informations sur les risques auxquels ce bien est exposé sont disponibles sur le site Géorisques : www. georisques. gouv. fr.

Réseau Immobilier CAPIFRANCE - Votre agent commercial (RSAC N°320 483 217 - Greffe de ROUEN) Thierry DUGAT Entrepreneur Individuel 06 60 60 40 10 - Réf.304121

Afficher plus de détails

Informations sur ce bien :

L'intérieur :

  • 1 pièce
  • 37 m²
    Informations complémentaires
    Surface habitable : 37 m²
  • 1 Salle d'eau

Autres :

  • Exposition :
    Est
  • Étage :
    1er étage
Synthèse
Appartement à Courbevoie
351 000 €
Surface : 37 m²
Prix au m² : 9 486 €
Transaction :
Achat
Référence :
340932210854
Date de publication :
Il y a plus de 7 jours
Appartement - 37 m² - 1 pièce
Agent
CAPIFRANCE
CAPIFRANCE
Monsieur Thierry DUGAT
Appeler
Écrire
Mettre en avant cette annonce
Signaler une erreur

Localisation :

L'adresse exacte n'est pas renseignée. Le bien se situe dans cette zone.

Performance énergétique :

Bien non soumis au Diagnostic de Performance Énergétique (DPE)

Annonces similaires
Annonces immobilières récentes