• Appartement - 56 m² - 3 pièces
  • Appartement - 56 m² - 3 pièces
  • Appartement - 56 m² - 3 pièces
  • Appartement - 56 m² - 3 pièces
  • Appartement - 56 m² - 3 pièces
195 000 €
56 m²
3 pièces
2 chambres

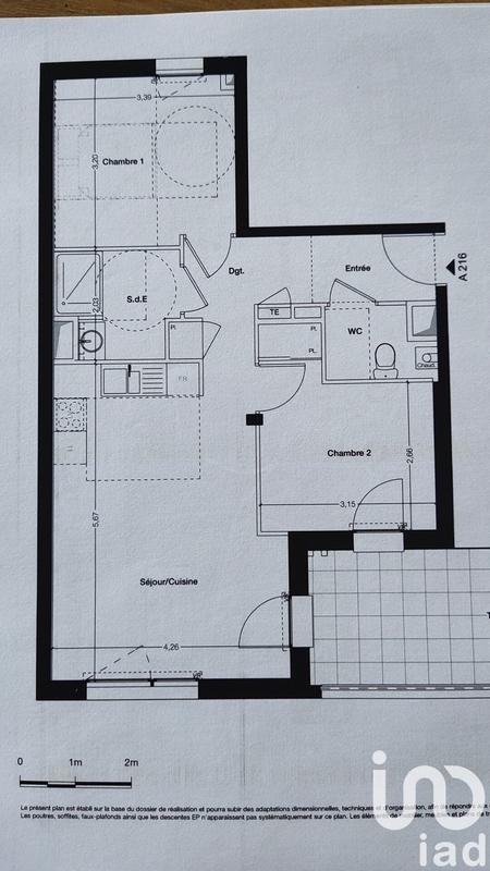
Description :

Iad France - Guillaume Bourgeteau vous propose : * Appartement Lumineux de 3 pièces avec Terrasse à Coueron * Situé à Coueron, dans une résidence récente de 2018, cet appartement de 56 m² vous séduira par sa luminosité et son agencement optimal. Niché au 2ème étage d'un immeuble de 3 étages, ce bien offre un espace de vie confortable et moderne. * Description des Pièces : * L'appartement se compose de 3 pièces dont 2 chambres, 1 salle d'eau avec WC séparé, 1 cuisine équipée, 1 salle à manger. La configuration des lieux a été pensée pour offrir une atmosphère chaleureuse et fonctionnelle. Chaque espace a été optimisé pour garantir un confort de vie optimal. * Localisation : * Idéalement situé proche de toutes commodités (commerces, écoles, transports en commun), cet appartement vous offre un cadre de vie agréable et pratique au quotidien. Profitez d'un environnement calme et verdoyant tout en restant connecté aux activités urbaines. Cet appartement moderne, lumineux et bien agencé est une opportunité à ne pas manquer. N'hésitez pas à visiter. La presente annonce immobiliere vise 3 lots situés dans une copropriété de 127 lots au total et ne faisant l'objet d'aucune procédure en cours citée à l'article L. 721-1 du code de la construction et de l'habitation. Montant moyen mensuel de charges déclaré par le vendeur : 107.66€ par mois (soit 1291.96 € annuel). Honoraires d'agence à la charge du vendeur. Information d'affichage énergétique sur ce bien : classe ENERGIE C indice 72 et classe CLIMAT C indice 12. Les informations sur les risques auxquels ce bien est exposé, y compris l'obligation légale de débroussaillement, sont disponibles sur le site Géorisques : http://www.georisques.gouv.fr. La présente annonce immobilière a été rédigée sous la responsabilité éditoriale de M Guillaume Bourgeteau mandataire indépendant en immobilier (sans détention de fonds), agent commercial de la SAS I@D France immatriculé au RSAC de LE MANS sous le numéro 990834616, titulaire de la carte de démarchage immobilier pour le compte de la société I@D France SAS.

Afficher plus de détails

Informations sur ce bien :

L'intérieur :

  • 3 pièces
  • 56 m²
    Informations complémentaires
    Surface habitable : 56 m²
  • 2 Chambres

L'extérieur :

  • Terrasse
  • Parking

Autres :

  • Chauffage :
    Individuel, Électrique
  • Année de construction :
    2018
  • Mitoyenneté :
    Non
  • Étage :
    2nd étage
    Informations complémentaires
    Nombre d'étages de la construction : 3

Copropriété :

  • Copropriété :
    Oui
  • Nombre de lots :
    127
  • Charges annuelles :
    1 291,96 €
Synthèse
Appartement à Couëron
195 000 €
Surface : 56 m²
Prix au m² : 3 482 €
Transaction :
Achat
Référence :
1910247
Date de publication :
Il y a plus de 7 jours
Appartement - 56 m² - 3 pièces
Performance énergétique
A
B
C
D
E
F
G
Gaz à effet de serre
A
B
C
D
E
F
G
Agent
iad france
iad france
Guillaume Bourgeteau
Appeler
Écrire
Mettre en avant cette annonce
Signaler une erreur

Localisation :

L'adresse exacte n'est pas renseignée. Le bien se situe dans cette zone.

Performance énergétique :

Logement économe
A
B
C
72
kWh/m²/an
12
kg CO₂/m²/an
D
E
F
G
Logement énergivore
Faible émission de CO₂
A
B
C
12
kg CO₂/m²/an
D
E
F
G
Forte émission de CO₂
Date du diagnostic : 08 juillet 2025
Annonces similaires
Annonces immobilières récentes