Maison - 110 m² - 5 pièces à Condrieu

favoris
  • Maison - 110 m² - 5 pièces
  • Maison - 110 m² - 5 pièces
  • Maison - 110 m² - 5 pièces
  • Maison - 110 m² - 5 pièces
  • Maison - 110 m² - 5 pièces
315 000 €
110 m²
5 pièces
4 chambres

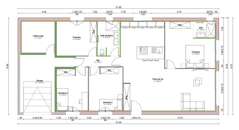
Description :

10 m² OFFERT + CUISINE OFFERTE + PACK DECO OFFERT (peintures + parquet des chambres + faïence sdb + placards pour nos 50 ans.Produit rare à saisir au plus vite.Situé sur la jolie commune de Vérin dans un cadre calme et arboré.Sur une parcelle de 500 entièrement viabilisée, Maisons punch vous propose une construction neuve de plein pied de 110m² avec une magnifique vue.Cette maison est composée d’une partie jour avec une très belle pièce de vie de 45m² avec cuisine ouverte sur le séjour. De grandes baie viennent inonder de lumière la partie jour. La partie nuit est répartie en 4 chambres dont 1 avec suite parental de 17 m² avec une salle d'eau , et 3 autres chambres de10 et 11 m².Une salle de bain indépendante avec baignoire ou douche au choix, un lavabo et un WC séparé.Plancher chauffant dans toutes les pièces, volets roulants motorisé et centraliser de partout, crépis gratté contemporain etc...Pour finir, la maison possède un garage ainsi qu'un grand cellier isolé de 7m². Grand jardin restant.Plan entièrement personnalisables au bon vouloir des futurs acquéreurs.Nombreuses prestations possiblesCONSTRUCTION, TERRAIN ET VRD INCLUS DANS LE PRIX.Prestations de qualités : volets roulants intégrés électrique et connectés, Pompe à chaleurMaison conforme à la RE 2020

Afficher plus de détails

Informations sur ce bien :

L'intérieur :

  • 5 pièces
  • 110 m²
  • 4 Chambres
  • 2 Salles de bain

L'extérieur :

  • Garage

À proximité :

  • Accès voie rapide
  • Centre-ville
  • Commerces
  • Ecoles
  • Transports en commun

Autres :

  • Style :
    Traditionnelle
Synthèse
Maison à Condrieu
315 000 €
Surface : 110 m²
Prix au m² : 2 864 €
Transaction :
Neuf
Référence :
4938 DUFOR Arnaud
Date de publication :
Aujourd'hui à 18:46
Maison - 110 m² - 5 pièces
Agent
Maisons Punch - Saint Priest
Maisons Punch - Saint Priest
Arnaud DUFOR
Appeler
Écrire
Mettre en avant cette annonce
Signaler une erreur

Localisation :

L'adresse exacte n'est pas renseignée. Le bien se situe dans cette zone.
Annonces similaires
Annonces immobilières récentes