Retour
Rechercher
Lieu
Où ?
    Type de bien
    Quel type de projet ?
    Particulier Entreprise
    Quel type de bien ?
        Prix
        Quel budget ?
              Surface
              Quelle surface ?
                    Pièces
                    Combien de pièces ?
                      Combien de chambres ?

                          Locations de locaux commerciaux à Clichy-sous-Bois et aux alentours

                          Recherche 0
                          Carte
                          1

                          Location de local commercial à Livry-Gargan

                          (1.2 km)
                          • Local commercial - 80 m² - 5 pièces
                          • Local commercial - 80 m² - 5 pièces
                          • Local commercial - 80 m² - 5 pièces
                          • Local commercial - 80 m² - 5 pièces
                          • Local commercial - 80 m² - 5 pièces
                          • Local commercial - 80 m² - 5 pièces Cliquez pour voir les 10 photos

                          Local commercial - 80 m² - 5 pièces

                          1 600 € / mois
                          EXCLUSIVITÉ - SECTEUR JACOB   En plein coeur du quartier Jacob, EMPLACEMENT N°1, un local commercial ou professionnel au 1er et dernier étage d'un immeuble sur axe passant, disponible immédiatement, peinture refaite ce mois-ci, composé en l'état de 5 bureaux séparés dont 2 complètement vitrés ainsi qu'un WC séparé. LOCATION pure. Bail NEUF. 1400€ HT/HC pour le loyer + provisio
                          Professionnel Publié il y a plus de 7 jours
                          Livry-Gargan
                          1

                          Location de local commercial au Raincy

                          (2.3 km)
                          • Local commercial - 238 m²
                          • Local commercial - 238 m²
                          • Local commercial - 238 m²
                          • Local commercial - 238 m²
                          • Local commercial - 238 m²
                          • Local commercial - 238 m² Cliquez pour voir les 6 photos

                          Local commercial - 238 m²

                          3 000 € / mois
                          Le Cabinet GHT IMMO vous propose : À Le Raincy, un local destiné à un usage de bureaux et petit stockage, idéalement situé à 1,1 km de la gare du Raincy - Villemomble - Montfermeil, soit environ 15 minutes à pied. Cette gare, desservie par la ligne E du RER, permet un accès direct à Paris, facilitant vos déplacements professionnels. nGHT IMMO - 01 48 93 81 23 - Plus d'informa
                          Professionnel Publié il y a plus de 7 jours Non géolocalisée
                          Le Raincy
                          1

                          Location de local commercial aux Pavillons-sous-Bois

                          (3.1 km)
                          • Local commercial - 530 m²
                          • Local commercial - 530 m²
                          • Local commercial - 530 m²
                          • Local commercial - 530 m²
                          • Local commercial - 530 m²

                          Local commercial - 530 m²

                          12 500 € HT / mois
                          Le groupe B&B Conseils vous propose à la LOCATION dans la ville des Pavillons-sous-bois - Avenue Aristide Briand Adresse : 104 avenue Aristides Briand, Les pavillons sous bois 93320 Un COMMERCE de 530m² dont 240m2 RDC, 260m2 à l'étage et un Sous-sol de 30m² Idéal pour un coffee shop, épicerie, restauration, garage automobile.. Possibilité d'installer une extraction Situé dan
                          Professionnel Publié le 03 avril à 07:12 Non géolocalisée
                          Les Pavillons-sous-Bois Parking
                          1

                          Location de local commercial à Courtry

                          (4.2 km)
                          • Local commercial - 100 m²
                          • Local commercial - 100 m²
                          • Local commercial - 100 m²
                          • Local commercial - 100 m²
                          • Local commercial - 100 m²
                          • Local commercial - 100 m² Cliquez pour voir les 12 photos

                          Local commercial - 100 m²

                          1 900 € / mois
                          Iad France - Philippe Konstantinidis (07 66 14 15 42) vous propose : Superbe EXCLUSIVITE À louer : Local professionnel neuf et climatisé, situé au 1er et dernier étage d'un bâtiment récemment construit à Courtry. D'une surface de 100 m² environ, ce local extrêmement lumineux est idéal pour diverses activités tertiaires. Il se trouve en plein cOEur d'une zone en développement, f
                          Professionnel Publié il y a plus de 7 jours
                          Courtry
                          1

                          Location de local commercial à Aulnay-sous-Bois

                          (4.9 km)
                          • Local commercial - 45 m²
                          • Local commercial - 45 m²
                          • Local commercial - 45 m²

                          Local commercial - 45 m²

                          1 800 € / mois
                          Iad France - Marie Chantal Kipindila (06 01 07 31 20) vous propose : Opportunité à Saisir : Local d'activité sans accueil du public- A Aulnay-sous-Bois. Nous sommes ravis de vous présenter ce local d'une surface de 45 m² environ. Un espace rénové et lumineux, avec une cuisine séparée, une salle de d eau, et un garage. Il offre aussi l' accès à un jardin à l arrière du bâtiment.
                          Professionnel Publié il y a plus de 7 jours
                          Aulnay-sous-Bois
                          1

                          Location de local commercial à Gournay-sur-Marne

                          (5.7 km)
                          • Local commercial - 280 m²
                          • Local commercial - 280 m²
                          • Local commercial - 280 m²

                          Local commercial - 280 m²

                          3 050 € / mois
                          Le cabinet GHT IMMO vous propose : Dans le centre ville de GOURNAY, une surface commerciale de 280 m². Local prêt à l'utilisation. Parking à disposition proche du bien. Emplacement passant et commercial. Bail commercial 3-6-9. nGHT IMMO - 01 48 93 81 23 - Plus d'informations sur www.ghtimmo.fr (réf. 940047935)
                          Professionnel Publié il y a plus de 7 jours Non géolocalisée
                          Gournay-sur-Marne
                          1

                          Location de local commercial à Neuilly-Plaisance

                          (5.8 km)
                          • Local commercial - 20 m² - 2 pièces
                          • Local commercial - 20 m² - 2 pièces
                          • Local commercial - 20 m² - 2 pièces
                          • Local commercial - 20 m² - 2 pièces
                          • Local commercial - 20 m² - 2 pièces
                          • Local commercial - 20 m² - 2 pièces Cliquez pour voir les 6 photos

                          Local commercial - 20 m² - 2 pièces

                          700 € / mois
                          13 avenue du Maréchal Foch Centre ville de Neuilly Plaisance Petit local sur rue composé de 2 pièces et wc. Libre à compter du 1er juin 2026.
                          Professionnel Publié il y a plus de 7 jours
                          Neuilly-Plaisance
                          4

                          Locations de locaux commerciaux à Neuilly-sur-Marne

                          (6.1 km)
                          • Local commercial - 660 m²
                          • Local commercial - 660 m²

                          Local commercial - 660 m²

                          15 400 € / mois
                          Le cabinet GHT Immo vous propose: plusieurs locaux commerciaux à la location au cœur du nouveau quartier Maison Blanche, un secteur en plein essor situé à Neuilly-sur-Marne, à proximité immédiate de l'autoroute A4. Un quartier dynamique en développement : Plus de 4 200 logements livrés Un environnement résidentiel dense et attractif Équipements publics : crèches, écoles Comm
                          Professionnel Publié il y a plus de 7 jours Non géolocalisée
                          Neuilly-sur-Marne Parking
                          • Local commercial - 114 m²
                          • Local commercial - 114 m²

                          Local commercial - 114 m²

                          2 660 € / mois
                          Le cabinet GHT Immo vous propose: plusieurs locaux commerciaux à la location au cœur du nouveau quartier Maison Blanche, un secteur en plein essor situé à Neuilly-sur-Marne, à proximité immédiate de l'autoroute A4. Un quartier dynamique en développement : Plus de 4 200 logements livrés Un environnement résidentiel dense et attractif Équipements publics : crèches, écoles Comm
                          Professionnel Publié il y a plus de 7 jours Non géolocalisée
                          Neuilly-sur-Marne Parking
                          • Local commercial - 297 m²
                          • Local commercial - 297 m²

                          Local commercial - 297 m²

                          5 940 € / mois
                          Le cabinet GHT Immo vous propose: plusieurs locaux commerciaux à la location au cœur du nouveau quartier Maison Blanche, un secteur en plein essor situé à Neuilly-sur-Marne, à proximité immédiate de l'autoroute A4. Un quartier dynamique en développement : Plus de 4 200 logements livrés Un environnement résidentiel dense et attractif Équipements publics : crèches, écoles Comm
                          Professionnel Publié il y a plus de 7 jours Non géolocalisée
                          Neuilly-sur-Marne Parking
                          • Local commercial - 54 m²
                          • Local commercial - 54 m²

                          Local commercial - 54 m²

                          1 512 € / mois
                          Le cabinet GHT Immo vous propose: plusieurs locaux commerciaux à la location au cœur du nouveau quartier Maison Blanche, un secteur en plein essor situé à Neuilly-sur-Marne, à proximité immédiate de l'autoroute A4. Un quartier dynamique en développement : Plus de 4 200 logements livrés Un environnement résidentiel dense et attractif Équipements publics : crèches, écoles Comm
                          Professionnel Publié il y a plus de 7 jours Non géolocalisée
                          Neuilly-sur-Marne Parking
                          1

                          Location de local commercial à Bobigny

                          (7.8 km)
                          • Local commercial - 200 m² - 1 pièce
                          • Local commercial - 200 m² - 1 pièce
                          • Local commercial - 200 m² - 1 pièce
                          • Local commercial - 200 m² - 1 pièce
                          • Local commercial - 200 m² - 1 pièce
                          • Local commercial - 200 m² - 1 pièce Cliquez pour voir les 12 photos

                          Local commercial - 200 m² - 1 pièce

                          4 450 € / mois
                          Local d'angle sur la rue de Paris à Bobigny proche de Pantin et du Canal. Grande visibilité. Utilisé actuellement en espace bureau et pour l'accueil du public, le local est tous commerces et addapté à toutes les activités Aménagé en 2021 dans les règles de l'art avec des matériaux de qualité, il est en parfait état. Espace d'accueil, 4 salles de réunion, un open space, pièce de
                          Professionnel Publié il y a plus de 7 jours
                          Bobigny
                          1

                          Location de local commercial au Perreux-sur-Marne

                          (8.3 km)
                          • Local commercial - 220 m²
                          • Local commercial - 220 m²
                          • Local commercial - 220 m²
                          • Local commercial - 220 m²
                          • Local commercial - 220 m²
                          • Local commercial - 220 m² Cliquez pour voir les 9 photos

                          Local commercial - 220 m²

                          5 430 € / mois
                          Le cabinet GHT IMMO vous propose : Sur un axe passant, très visible, une boutique ave bureaux à l'étage. 130 m² de boutique au RDC et 90 à l'étage. nGHT IMMO - 01 48 93 81 23 - Plus d'informations sur www.ghtimmo.fr (réf. 940049410)
                          Professionnel Publié il y a plus de 7 jours Non géolocalisée
                          Le Perreux-sur-Marne
                          5

                          Locations de locaux commerciaux à Fontenay-sous-Bois

                          (8.4 km)
                          • Local commercial - 50 m²
                          • Local commercial - 50 m²
                          • Local commercial - 50 m²
                          • Local commercial - 50 m²

                          Local commercial - 50 m²

                          2 192 € HT / mois
                          Notre groupe vous propose en location pure un local commercial de 50m² situé à Fontenay-sous-Bois (94). Loyer mensuel 2 084€ HT-HC/mois (soit 25 000€ HT-HC/an) Honoraires agence : 10 000€ HT. Superficie totale : 50m² de plain-pied (selon propriétaire, en attente diagnostics) Nouveau bail 3/6/9/12. 3 mois de dépôt de garantie + garantie complémentaire selon éléments comptable
                          Professionnel Publié le 03 avril à 06:15 Non géolocalisée
                          Fontenay-sous-Bois Parking
                          • Local commercial - 105 m²
                          • Local commercial - 105 m²
                          • Local commercial - 105 m²
                          • Local commercial - 105 m²

                          Local commercial - 105 m²

                          2 550 € HT / mois
                          Le groupe B&B Conseils vous propose à la LOCATION dans la ville de Fontenay-Sous-bois Adresse : 1 rue Dalayrac, 94120 Fontenay-sous-bois Un COMMERCE de 70 m² RDC, ainsi qu'un sous-sol de 15 m². Équipée d'une extraction de 400mm Idéal pour une boulangerie Situé dans un environnement commerçant attractif avec de nombreux commerces, restauration et services. Loyer : 2550 € HT
                          Professionnel Publié il y a plus de 7 jours Non géolocalisée
                          Fontenay-sous-Bois Parking
                          • Local commercial - 87 m²
                          • Local commercial - 87 m²
                          • Local commercial - 87 m²
                          • Local commercial - 87 m²

                          Local commercial - 87 m²

                          2 700 € HT / mois
                          Le groupe B&B Conseils vous propose à la LOCATION un local commercial dans la ville de Fontenay-sous-bois. Adresse : 2 Avenue de la République, 94120 Fontenay-sous-bois Un LOCAL COMMERCIAL AVEC EXTRACTION d'une surface totale de 87 m², comprenant 45 m² en rez-de-chaussée, et, un sous-sol de 42m² Activités autorisées : Toutes activités y compris restauration chaude. Situé sur
                          Professionnel Publié il y a plus de 7 jours Non géolocalisée
                          Fontenay-sous-Bois Parking
                          • Local commercial - 147 m²
                          • Local commercial - 147 m²
                          • Local commercial - 147 m²
                          • Local commercial - 147 m²
                          • Local commercial - 147 m²
                          • Local commercial - 147 m² Cliquez pour voir les 11 photos

                          Local commercial - 147 m²

                          3 886 € HT / mois
                          Sur la première parcelle, les 4 premiers bâtiments (A, B, C & D) seront édifiés en 192 logements en accession avec 3 locaux d'activités. La résidence Inflor&Sens s'érige autour d'un îlot paysager central qui sera le poumon vert du nouveau quartier. Située dans le Quartier de la Redoute proche du centre-ville de Fontenay-sous-Bois, la résidence Inflor&Sens est au coeur d'un cho
                          Professionnel Publié il y a plus de 7 jours
                          Fontenay-sous-Bois Parking
                          Local commercial - 90 m² - 1 pièce

                          Local commercial - 90 m² - 1 pièce

                          1 500 € / mois
                          Fontenay sous Bois secteur des Rigolots, Opportunity vous propose un bureau de 90m2 situé au 1 er étage d'un petit immeuble . Aménagée en: - Au Rez de chaussée, une entrée. - Au Sous Sol, deux toilettes. - Au 1er étage, une grande salle de 90m2. Le local est agréable, spacieux et lumineux. Pas de travaux à prévoir. Loyer 1 500 euros. Information d'affichage énergétique sur ce b
                          Professionnel Publié il y a plus de 7 jours Non géolocalisée
                          Fontenay-sous-Bois
                          6

                          Locations de locaux commerciaux à Montreuil

                          (8.8 km)
                          Local commercial - 90 m² - 1 pièce

                          Local commercial - 90 m² - 1 pièce

                          1 000 € / mois
                          Dans le Bas-Montreuil/Bobillot, 5min du Métro, local commercial 90m², 1000€ de loyer, environnement agréable. Pas de conduit d'extraction. Travaux à prévoir. Garanties demandées. Les informations sur les risques auxquels ce bien est exposé sont disponibles sur le site Géorisques : www.georisques.gouv.fr
                          Professionnel Publié il y a plus de 7 jours
                          Montreuil Parking
                          • Local commercial - 94 m² - 1 pièce
                          • Local commercial - 94 m² - 1 pièce
                          • Local commercial - 94 m² - 1 pièce
                          • Local commercial - 94 m² - 1 pièce
                          • Local commercial - 94 m² - 1 pièce
                          • Local commercial - 94 m² - 1 pièce Cliquez pour voir les 8 photos

                          Local commercial - 94 m² - 1 pièce

                          2 208 € / mois
                          Belle opportunité située au 254 bld de la Boissière à Montreuil dans le quartier de la ZAC Boissière Acacia, nouvel éco-quartier situé à moins de 4mn à pied de la future ligne 11, qui comprend environ 1 200 logements et deux résidences gérées (étudiante et senior), ainsi que 7 000 m² d'équipements publics dont un nouveau groupe scolaire, un plateau sportif, une crèche et des es
                          Professionnel Publié il y a plus de 7 jours
                          Montreuil
                          • Local commercial - 90 m² - 1 pièce
                          • Local commercial - 90 m² - 1 pièce
                          • Local commercial - 90 m² - 1 pièce
                          • Local commercial - 90 m² - 1 pièce
                          • Local commercial - 90 m² - 1 pièce
                          • Local commercial - 90 m² - 1 pièce Cliquez pour voir les 8 photos

                          Local commercial - 90 m² - 1 pièce

                          2 115 € / mois
                          Belle opportunité située au 254 bld de la Boissière à Montreuil dans le quartier de la ZAC Boissière Acacia, nouvel éco-quartier situé à moins de 4mn à pied de la future ligne 11, qui comprend environ 1 200 logements et deux résidences gérées (étudiante et senior), ainsi que 7 000 m² d'équipements publics dont un nouveau groupe scolaire, un plateau sportif, une crèche et des es
                          Professionnel Publié il y a plus de 7 jours
                          Montreuil
                          • Local commercial - 97 m² - 1 pièce
                          • Local commercial - 97 m² - 1 pièce
                          • Local commercial - 97 m² - 1 pièce
                          • Local commercial - 97 m² - 1 pièce
                          • Local commercial - 97 m² - 1 pièce
                          • Local commercial - 97 m² - 1 pièce Cliquez pour voir les 6 photos

                          Local commercial - 97 m² - 1 pièce

                          2 279 € / mois
                          Belle opportunité située au 254 bld de la Boissière à Montreuil dans le quartier de la ZAC Boissière Acacia, nouvel éco-quartier situé à moins de 4mn à pied de la future ligne 11, qui comprend environ 1 200 logements et deux résidences gérées (étudiante et senior), ainsi que 7 000 m² d'équipements publics dont un nouveau groupe scolaire, un plateau sportif, une crèche et des es
                          Professionnel Publié il y a plus de 7 jours
                          Montreuil
                          • Local commercial - 162 m² - 1 pièce
                          • Local commercial - 162 m² - 1 pièce
                          • Local commercial - 162 m² - 1 pièce
                          • Local commercial - 162 m² - 1 pièce

                          Local commercial - 162 m² - 1 pièce

                          3 807 € / mois
                          Belle opportunité située au 252 bld de la Boissière à Montreuil dans le quartier de la ZAC Boissière Acacia, nouvel éco-quartier situé à moins de 4mn à pied de la future ligne 11, qui comprend environ 1 200 logements et deux résidences gérées (étudiante et senior), ainsi que 7 000 m² d'équipements publics dont un nouveau groupe scolaire, un plateau sportif, une crèche et des es
                          Professionnel Publié il y a plus de 7 jours
                          Montreuil
                          1

                          Location de local commercial aux Lilas

                          (9.8 km)
                          • Local commercial - 240 m²
                          • Local commercial - 240 m²
                          • Local commercial - 240 m²
                          • Local commercial - 240 m²
                          • Local commercial - 240 m²
                          • Local commercial - 240 m² Cliquez pour voir les 6 photos

                          Local commercial - 240 m²

                          2 800 € HT / mois
                          Contact : Jason AZOULAY - 06 51 00 72 49 Le Réseau Immo vous propose en exclusivité la location de ce local situé au sein d'une monopropriété, d'une surface totale de 240 m², idéalement implanté rue du Coq Français, dans un environnement dynamique et commerçant. Description du bien : Au rez-de-chaussée, 175 m² de surface en plain-pied avec accès par porte sectionnelle, idéal
                          Professionnel Publié le 03 avril à 06:01
                          Les Lilas Parking
                          1

                          Location de local commercial à Bagnolet

                          (10 km)
                          • Local commercial - 100 m²
                          • Local commercial - 100 m²
                          • Local commercial - 100 m²
                          • Local commercial - 100 m²
                          • Local commercial - 100 m²
                          • Local commercial - 100 m² Cliquez pour voir les 7 photos

                          Local commercial - 100 m²

                          3 150 € / mois
                          LE CABINET GHT IMMO VOUS PROPOSE : Un local professionnel d'une superficie d'environ 100 m², idéalement situé à proximité immédiate de Porte de Bagnolet et du Centre commercial Gallieni. Le bien se compose de 4 bureaux cloisonnés, fonctionnels et prêts à l'emploi, parfaitement adaptés à l'installation d'un centre médical ou de toute activité professionnelle similaire. Dispon
                          Professionnel Publié il y a plus de 7 jours
                          Bagnolet
                          4

                          Locations de locaux commerciaux à Pantin

                          (10.1 km)
                          • Local commercial - 54 m²
                          • Local commercial - 54 m²
                          • Local commercial - 54 m²
                          • Local commercial - 54 m²
                          • Local commercial - 54 m²
                          • Local commercial - 54 m² Cliquez pour voir les 15 photos

                          Local commercial - 54 m²

                          1 660 € / mois
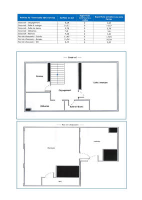
                          A LOUER Local commercial avec vitrine Pantin (Avenue Jean Lolive) Situé sur l'avenue Jean Lolive à Pantin, axe passant et commerçant, ce local commercial de 54.31 m² bénéficie d'une excellente visibilité. Le local se compose de 3 pièces (voir plan en annexe), offrant une organisation fonctionnelle et modulable selon votre activité. Il dispose également d'une salle d'eau ave
                          Professionnel Publié il y a plus de 7 jours Non géolocalisée
                          Pantin
                          • Local commercial - 160 m²
                          • Local commercial - 160 m²
                          • Local commercial - 160 m²
                          • Local commercial - 160 m²
                          • Local commercial - 160 m²

                          Local commercial - 160 m²

                          1 300 € HT / mois
                          Contact Jason AZOULAY : 06 51 00 72 49 Le Réseau Immo vous propose en exclusivité la location de ce local d'une surface totale de 160 m² localisé au 1er étage d'un ensemble immobilier à Pantin, chemin des Vignes, en location pure. Toutes les activités sont possibles sauf nuisances. Idéalement situé, vous retrouverez à proximité commerces, bureaux et transports.
                          Professionnel Publié il y a plus de 7 jours
                          Pantin Parking
                          • Local commercial - 75 m²
                          • Local commercial - 75 m²
                          • Local commercial - 75 m²
                          • Local commercial - 75 m²
                          • Local commercial - 75 m²
                          • Local commercial - 75 m² Cliquez pour voir les 7 photos

                          Local commercial - 75 m²

                          1 000 € HT / mois
                          Contact Jason AZOULAY : 06 51 00 72 49 Le Réseau Immo vous propose en exclusivité la location de ce local d'une surface totale de 75 m² localisé au premier étage d'un ensemble immobilier situé à Pantin, chemin des Vignes, en location pure. Il est composé d'un espace bureau / showroom. Toutes les activités sont possibles sauf nuisances. Idéalement situé, vous retrouverez à proxi
                          Professionnel Publié il y a plus de 7 jours
                          Pantin Parking
                          • Local commercial - 120 m²
                          • Local commercial - 120 m²
                          • Local commercial - 120 m²
                          • Local commercial - 120 m²
                          • Local commercial - 120 m²
                          • Local commercial - 120 m² Cliquez pour voir les 6 photos

                          Local commercial - 120 m²

                          1 200 € HT / mois
                          Contact Jason AZOULAY : 06 51 00 72 49 Le Réseau Immo vous propose en exclusivité la location de ce local d'une surface totale de 120 m² localisé au 1er étage d'un ensemble immobilier à Pantin, chemin des Vignes, en location pure. Toutes les activités sont possibles sauf nuisances. Idéalement situé, vous retrouverez à proximité commerces, bureaux et transports.
                          Professionnel Publié il y a plus de 7 jours
                          Pantin Parking
                          4

                          Locations de locaux commerciaux à Vincennes

                          (10.5 km)
                          • Local commercial - 227 m²
                          • Local commercial - 227 m²

                          Local commercial - 227 m²

                          5 500 € / mois
                          Le cabinet GHTIMMO propose un local commercial en plein centre de Saint-Mandé (métro Saint-Mandé / Porte de Vincennes – L1). 225 m² avec 10 m de vitrine, composé de : RDC : 165 m² R+1 : 12 m² Réserve : 50 m² Cave : 10 m² 2 extractions Idéal restauration, salle de sport ou toute activité commerciale. Droit au bail : 280 000 € — bien rare, à saisir.nGHT IMMO - 01 48 93 81 23 -
                          Professionnel Publié il y a plus de 7 jours Non géolocalisée
                          Vincennes
                          • Local commercial - 360 m²
                          • Local commercial - 360 m²
                          • Local commercial - 360 m²
                          • Local commercial - 360 m²
                          • Local commercial - 360 m²

                          Local commercial - 360 m²

                          12 250 € / mois
                          Le cabinet GHTIMMO vous propose: sur la commune de Vincennes limite Saint Mande, un local de 360m2 de plain pied. le local commercial est idéal pour un centre médical ou une crèche. norme ERPnGHT IMMO - 01 48 93 81 23 - Plus d'informations sur www.ghtimmo.fr (réf. 940049549)
                          Professionnel Publié il y a plus de 7 jours Non géolocalisée
                          Vincennes Parking
                          • Local commercial - 405 m²
                          • Local commercial - 405 m²
                          • Local commercial - 405 m²
                          • Local commercial - 405 m²
                          • Local commercial - 405 m²
                          • Local commercial - 405 m² Cliquez pour voir les 6 photos

                          Local commercial - 405 m²

                          7 684 € / mois
                          LE CABINET GHTIMMO VOUS PROPOSE : AU CENTRE VILLE, UN LOCAL COMMERCIAL DE 305M2 SUR 2 NIVEAUX. RDC:176M2 R-1: 129M2 R-1:100M2 CAVE LOYER : 6250€ /HT/HC / MOIS IDEAL PROFESSION LIBERALE/ CRECHE /CABINET MEDICAL/DENTAIREnGHT IMMO - 01 48 93 81 23 - Plus d'informations sur www.ghtimmo.fr (réf. 940046558)
                          Professionnel Publié il y a plus de 7 jours Non géolocalisée
                          Vincennes Parking
                          • Local commercial - 91 m²
                          • Local commercial - 91 m²

                          Local commercial - 91 m²

                          1 209 € / mois
                          Le cabinet GHTIMMO vous propose: A Vincennes sur un axe très passant , un fond de commerce restauration de 91m2 Extraction 400mm RDC: 46M2 R-1:45M2 Jusqu'à 20 couverts Loyer 1209€ Prix 70.000€nGHT IMMO - 01 48 93 81 23 - Plus d'informations sur www.ghtimmo.fr (réf. 940046927)
                          Professionnel Publié il y a plus de 7 jours Non géolocalisée
                          Vincennes

                          Locations de locaux commerciaux à Clichy-sous-Bois. Toutes les ventes immobilières à Clichy-sous-Bois et aux environs.

                          Recherche en cours...
                          Rechercher dans cette zone