• Terrain agricole - 12 476 m²
  • Terrain agricole - 12 476 m²
  • Terrain agricole - 12 476 m²
  • Terrain agricole - 12 476 m²
  • Terrain agricole - 12 476 m²
  • Terrain agricole - 12 476 m²
  • Terrain agricole - 12 476 m²
  • Terrain agricole - 12 476 m²
87 000 €
12 476 m²

Description :

VENTE TERRAIN AGRICOLE 12476M² AVEC PERMIS DE CONSTRUIRE ACCEPTE A CLERMONT L HERAULT 34800

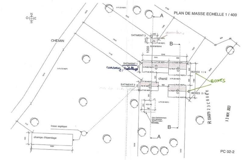
J'ai le plaisir de vous proposer ce terrain agricole de 12 476m² situé à Clermont l'Hérault, La Canourgue, avec un permis de construire accepté pour box et locaux canin (voir plan dans l'annonce).
La SPANC a donné l'autorisation d'un assainissement non collectif, les fouilles archéologiques ont été réalisées.
Enedis a donné son accord pour un raccordement à l'électricité.

Les informations sur les risques auxquels ce bien est exposé sont disponibles sur le site Géorisques : www.georisques.gouv.fr Pour voir ce terrain, vous pouvez me contacter au 06 02 59 39 98. Sandrine Garcia RSAC de Montpellier 901 110 304. * Honoraires à la charge du vendeur Votre agent commercial 3G IMMO sur place EI - Sandrine GARCIA Inscrite au RSAC de MONTPELLIER 901 110 304, Tel : 06 02 59 39 98, Site 3gimmo : https://www.3gimmobilier.com/sgarcia

Honoraires à la charge du vendeur
Votre agent commercial 3G IMMO sur place EI - Sandrine GARCIA inscrite au RSAC de MONTPELLIER n° 901 110 304
Selon l'article L.561.5 du Code Monétaire et Financier, pour l'organisation de la visite, la présentation d'une pièce d'identité vous sera demandée.
Les informations sur les risques auxquels ce bien est exposé sont disponibles sur le site Géorisques : www.georisques.gouv.fr

Les informations sur les risques auxquels ce bien est exposé sont disponibles sur le site Géorisques : www.georisques.gouv.fr

Afficher plus de détails

Informations sur ce bien :

L'intérieur :

  • 12 476 m²

L'extérieur :

  • Parking

Terrain :

  • Viabilisé :
    Non
Synthèse
Terrain agricole à Clermont-l'Hérault
87 000 €
Surface : 12 476 m²
Prix au m² : 7 €
Transaction :
Achat (professionnels)
Référence :
216343SG
Mandat :
Exclusif
Date de publication :
Il y a plus de 7 jours
Terrain agricole - 12 476 m²
Agent
3gimmo
3gimmo
EI - Sandrine GARCIA
Appeler
Écrire
Mettre en avant cette annonce
Signaler une erreur

Localisation :

L'adresse exacte n'est pas renseignée. Le bien se situe dans cette zone.

Performance énergétique :

Bien non soumis au Diagnostic de Performance Énergétique (DPE)

Annonces similaires
Annonces immobilières récentes