• Appartement - 70 m² - 3 pièces
  • Appartement - 70 m² - 3 pièces
  • Appartement - 70 m² - 3 pièces
  • Appartement - 70 m² - 3 pièces
  • Appartement - 70 m² - 3 pièces
  • Appartement - 70 m² - 3 pièces
  • Appartement - 70 m² - 3 pièces
  • Appartement - 70 m² - 3 pièces
395 000 €
70 m²
3 pièces
2 chambres

Description :

Exclusivité ORPI :
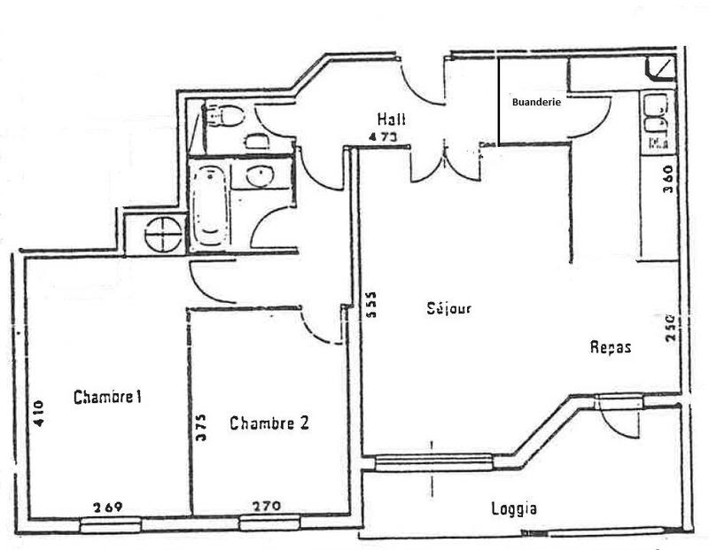
À proximité immédiate des écoles Jules Verne, Gay Lussac et Marcel Doré, du tramway T6 station Centre de Châtillon et du charmant Vieux Bourg, nous vous invitons à découvrir ce bel appartement lumineux orienté à l'Ouest. Son agréable balcon de 9 m² vous permettra de profiter pleinement des belles journées.

Le séjour, spacieux et chaleureux, s'ouvre sur une cuisine semi-ouverte pour former un bel espace de vie de 30 m² idéal pour des moments conviviaux en famille. La résidence, parfaitement entretenue, offre un excellent confort thermique grâce à une isolation de qualité et un DPE classé C.

Pour compléter ce bien, vous bénéficierez d'une place de parking sécurisée en sous-sol ainsi que d'une cave.
Nous sommes à votre disposition pour organiser une visite.
Contactez-nous sans attendre !

Référence agence : 9384

Afficher plus de détails

Informations sur ce bien :

L'intérieur :

  • 3 pièces
  • 70 m²
    Informations complémentaires
    Surface habitable : 70 m²
  • 2 Chambres
  • 1 Salle d'eau
  • 1 Toilette

L'extérieur :

  • Balcon
  • Parking extérieur
    Informations complémentaires
    Extérieur

Les équipements :

  • Ascenseur
  • Tout à l'égout

Autres :

  • Chauffage :
    Individuel, Électrique
  • État :
    bon
  • Étage :
    2nd étage

Copropriété :

  • Copropriété :
    Oui
  • Nombre de lots :
    250
  • Charges annuelles :
    2 036 €
  • Taxe foncière :
    1 220 €
Synthèse
Appartement à Châtillon
395 000 €
Surface : 70 m²
Prix au m² : 5 643 €
Transaction :
Achat
Référence :
Q3B3-KMR-7HG
Mandat :
Exclusif
Date de publication :
Il y a plus de 7 jours
Appartement - 70 m² - 3 pièces
Performance énergétique
A
B
C
D
E
F
G
Gaz à effet de serre
A
B
C
D
E
F
G
Agent
Chatillon Immobilier CIG
Chatillon Immobilier CIG
Appeler
Écrire
Mettre en avant cette annonce
Signaler une erreur

Localisation :

Performance énergétique :

Logement économe
A
B
C
153
kWh/m²/an
4
kg CO₂/m²/an
D
E
F
G
Logement énergivore
Faible émission de CO₂
A
4
kg CO₂/m²/an
B
C
D
E
F
G
Forte émission de CO₂
Date du diagnostic : 26 janvier 2023
Annonces similaires
Annonces immobilières récentes