• Terrain constructible - 1 246 m²
430 000 €
1 246 m²

Description :

Venez découvrir ces 6 terrains situés dans un petit lotissement qui offre l’opportunité d’y construire une jolie maison sur-mesure qui vous ressemble.

Au sein d'un merveilleux site verdoyant, ce petit domaine se trouve à proximité de golfs, commerces et écoles.

Dans cet environnement idyllique vous aurez la possibilité d’y créer une maison offrant tout le confort tout en restant en parfaite harmonie avec son environnement.

Possibilité de créer une emprise au sol d’environ 99 m2 + 1 étage, qui vous permettra de planifier un dessin qui répondra à vos besoins.
Possibilité d’y ajouter piscine.

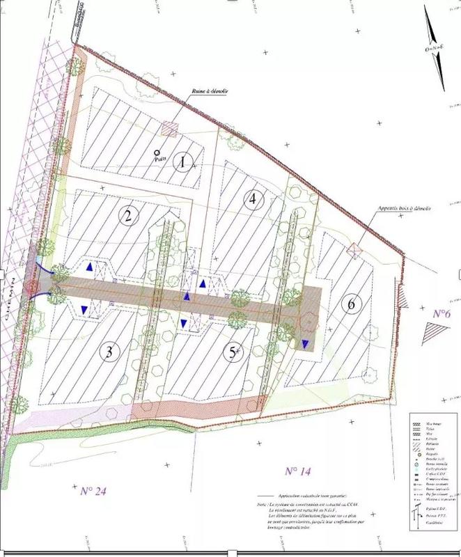
Trois lots disponible:

N°1 1246m2 DISPONIBLE 410 000 €
N°2 1052m2 DISPONIBLE 420 000 €
N°3 1168m2 DISPONIBLE 430 000 €
N°4 1144m2 DISPONIBLE 470 000 €

5 1144 M² RESERVEE
6 1121 M² RESERVEE Bat collectif social de 4 lots

Libre constructeur.

Contactez-nous pour plus d’information.

Illustrations d'inspiration, imaginez la maison de vos rêves!

Afficher plus de détails

Informations sur ce bien :

L'intérieur :

  • 1 246 m²

Terrain :

  • Viabilisé :
    Non
Synthèse
Terrain constructible à Châteauneuf-Grasse
430 000 €
Surface : 1 246 m²
Prix au m² : 345 €
Transaction :
Achat
Référence :
84630115
Date de publication :
Il y a plus de 7 jours
Terrain constructible - 1 246 m²
Agent
Wretman Estate Valbonne
Wretman Estate Valbonne
Caroline GRIOLET
Appeler
Écrire
Mettre en avant cette annonce
Signaler une erreur

Localisation :

L'adresse exacte n'est pas renseignée. Le bien se situe dans cette zone.
Annonces similaires
Annonces immobilières récentes