• Appartement - 60 m² - 3 pièces
  • Appartement - 60 m² - 3 pièces
  • Appartement - 60 m² - 3 pièces
  • Appartement - 60 m² - 3 pièces
  • Appartement - 60 m² - 3 pièces
  • Appartement - 60 m² - 3 pièces
  • Appartement - 60 m² - 3 pièces
  • Appartement - 60 m² - 3 pièces
  • Appartement - 60 m² - 3 pièces
179 000 €
60 m²
3 pièces
2 chambres

Description :

Appartement T3 avec jardin privatif et parking - Chartres proche gare et colisée !

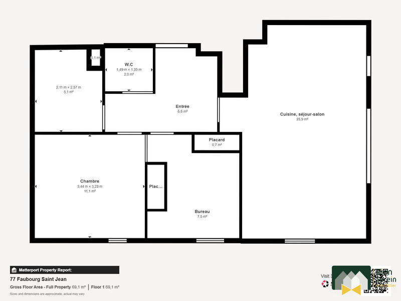
Bienvenue dans votre futur chez-vous ! Nous sommes ravis de vous présenter cet appartement T3 de 59,63 m², situé en rez-de-jardin dans une résidence de 2012. Ce bien offre un cadre de vie confortable, idéal pour une résidence principale.

Découvrez un appartement composé comme suit :

-Une entrée fonctionnelle,
-Un séjour spacieux et lumineux de 25 m²,
-Une cuisine américaine aménagée et équipée, ouverte sur la pièce de vie,
-Deux chambres confortables et bien agencées, avec de nombreux rangements,
-Une salle de bains,
-Un WC indépendant,

À l'extérieur :

-Une terrasse de 7 m²,
-Un jardin privatif de 78 m²,
-Deux places de stationnement en souterrain,

Côté confort :

-Une terrasse,
-Un jardin privatif ,
-Deux places de stationnement en intérieur,
-Parties communes très bien entretenues,

L'emplacement :

Situé dans un environnement pratique et agréable, cet appartement permet un quotidien facilité avec la gare, les écoles maternelle et élémentaire accessibles à pied en quelques minutes, les commerces et restaurants à proximité immédiate, les médecins généralistes à moins de dix minutes à pied, les collèges et les hôpitaux rapidement accessibles en voiture ainsi qu'un arrêt de bus à quelques pas de la résidence.

N'hésitez pas à contacter votre agent au Noeud Pap' pour obtenir plus d'informations et organiser une visite de cet appartement aux nombreux atouts !

Honoraires à la charge du vendeur. Dans une copropriété de 34 lots. Aucune procédure n'est en cours. DPE en cours. Les informations sur les risques auxquels ce bien est exposé sont disponibles sur le site Géorisques : georisques.gouv.fr.

Afficher plus de détails

Informations sur ce bien :

L'intérieur :

  • 3 pièces
  • 60 m²
  • 2 Chambres
  • Cuisine américaine, équipée
    Informations complémentaires
    Américaine, équipée
  • 1 Salle de bain
  • 1 Toilette
  • Séjour de 25 m²

L'extérieur :

  • Terrasse
  • Parking
  • 2 Box

Autres :

  • Chauffage :
    Individuel, Électrique
  • Année de construction :
    2012
  • Étage :
    1er étage
    Informations complémentaires
    Nombre d'étages de la construction : 3

Copropriété :

  • Copropriété :
    Oui
  • Nombre de lots :
    34
Synthèse
Appartement à Chartres
179 000 €
Surface : 60 m²
Prix au m² : 2 983 €
Transaction :
Achat
Référence :
834-BIENSEREIN28
Mandat :
Exclusif
Date de publication :
Il y a plus de 7 jours
Appartement - 60 m² - 3 pièces
Agent
Bien Serein immobilier
Haris TUFEKOVIC
Appeler
Écrire
Mettre en avant cette annonce
Signaler une erreur

Localisation :

Annonces similaires
Annonces immobilières récentes