• Appartement - 54 m² - 3 pièces
  • Appartement - 54 m² - 3 pièces
  • Appartement - 54 m² - 3 pièces
  • Appartement - 54 m² - 3 pièces
  • Appartement - 54 m² - 3 pièces
  • Appartement - 54 m² - 3 pièces
  • Appartement - 54 m² - 3 pièces
  • Appartement - 54 m² - 3 pièces
  • Appartement - 54 m² - 3 pièces
124 000 €
54 m²
3 pièces
1 chambre

Description :

SUPERBE 3 PIÈCES REFAIT À NEUF AVEC PARKING :

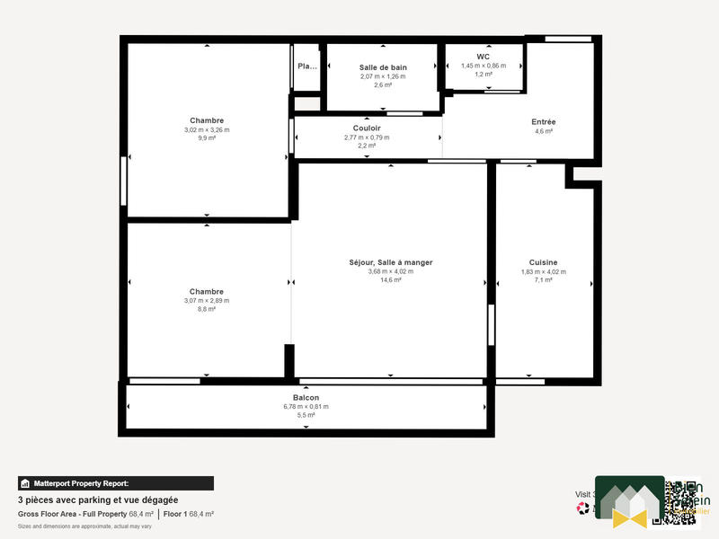
Nous sommes ravis de vous présenter ce bel appartement 3 pièces modulable (2 chambres ou 1 chambre + une salle à manger séparée) de 52,40 m², situé à quelques minutes à pieds du centre-ville de Chartres. Il est vendu avec une place de stationnement, et une cave.
Aucun travaux ne sont à prévoir, l'appartement a été entièrement rénové et la copropriété est en cours d'isolation + ravalement (travaux déjà réglés).

L'APPARTEMENT EST COMPOSE DE
- Une entrée avec rangements
- Séjour avec balcon
- Une très belle cuisine indépendante, aménagée et équipée (four, plaque hotte, lave vaisselle, réfrigérateur)
- Une chambre principale confortable
- Une salle à manger ou Chambre selon votre choix
- Une salle d'eau refaite à neuf
- Un WC suspendu indépendant

ESPACE EXTERIEUR
- Balcon exposé Sud-Ouest
- Cave privative de 2,80 m² incluse
- Un stationnement extérieur

COTE CONFORT
- Ascenseur
- Double vitrage PVC
- Isolation extérieure
- Cave

A PROPOS DE LA COPROPRIETE
Résidence bien tenue, avec parties communes en bon état et sans travaux votés.
Les charges mensuelles comprennent :
- Eau chaude
- Eau froide
- Chauffage
- Entretien des parties communes
- Charges d'ascenseur
- Entretien des espaces verts
- Honoraires de syndic
Elle s'élèvent à 235€/mois, avec une baisse significative suite à l'isolation en cours.

L'EMPLACEMENT
La résidence est appréciée pour sa localisation à la fois au calme, et proche de toutes les commodités. Les écoles et commerces d'alimentations et bus sont à quelques minutes à pieds. Vous pourrez profiter de belles promenades sur les bords de l'Eure à seulement 5 minutes à pied.

N'hésitez pas à contacter votre agent au Noeud Pap' pour obtenir plus d'informations et organiser une visite !

Honoraires à la charge du vendeur. Dans une copropriété de 824 lots. Aucune procédure n'est en cours. Classe énergie D, Classe climat C Montant moyen estimé des dépenses annuelles d'énergie pour un usage standard, établi à partir des prix de l'énergie de l'année 2021 : entre 900.00 et 1100.00 €. Les informations sur les risques auxquels ce bien est exposé sont disponibles sur le site Géorisques : georisques.gouv.fr.

Afficher plus de détails

Informations sur ce bien :

L'intérieur :

  • 3 pièces
  • 54 m²
  • 1 Chambre
  • Cuisine séparée, équipée
    Informations complémentaires
    Séparée, équipée
  • 1 Salle d'eau
  • 1 Toilette
  • Séjour de 15 m²
  • Cave

L'extérieur :

  • Balcon de 3 m²
  • Parking

Les équipements :

  • Ascenseur

Autres :

  • Chauffage :
    Collectif, Gaz
  • Année de construction :
    1965
  • Exposition :
    Sud, Ouest
  • Vue :
    Dégagée
  • Étage :
    4ème étage
    Informations complémentaires
    Nombre d'étages de la construction : 7

Copropriété :

  • Copropriété :
    Oui
  • Nombre de lots :
    824
Synthèse
Appartement à Chartres
124 000 €
Surface : 54 m²
Prix au m² : 2 296 €
Transaction :
Achat
Référence :
751-BIENSEREIN28
Mandat :
Exclusif
Date de publication :
Il y a plus de 7 jours
Appartement - 54 m² - 3 pièces
Performance énergétique
A
B
C
D
E
F
G
Gaz à effet de serre
A
B
C
D
E
F
G
Agent
Bien Serein immobilier
Fabien HEMERY
Appeler
Écrire
Mettre en avant cette annonce
Signaler une erreur

Localisation :

Performance énergétique :

Logement économe
A
B
C
D
237
kWh/m²/an
14
kg CO₂/m²/an
E
F
G
Logement énergivore
Faible émission de CO₂
A
B
C
14
kg CO₂/m²/an
D
E
F
G
Forte émission de CO₂
Estimation des coûts annuels d’énergie du logement : 900 € à 1 100 €
Annonces similaires
Annonces immobilières récentes