• Maison - 92 m² - 5 pièces
  • Maison - 92 m² - 5 pièces
  • Maison - 92 m² - 5 pièces
  • Maison - 92 m² - 5 pièces
  • Maison - 92 m² - 5 pièces
  • Maison - 92 m² - 5 pièces
  • Maison - 92 m² - 5 pièces
  • Maison - 92 m² - 5 pièces
  • Maison - 92 m² - 5 pièces
  • Maison - 92 m² - 5 pièces
  • Maison - 92 m² - 5 pièces
184 500 €
92 m²
5 pièces
3 chambres

Description :

Bienvenue dans votre futur chez-vous ! Nous sommes ravis de vous présenter cette jolie maison mitoyenne idéalement située dans un environnement calme et résidentiel, proche des grands axes, des commerces et des écoles. Offrant des prestations de qualité, et idéale pour une famille en quête de confort et tranquillité, cette maison ne nécessitera que quelques petits rafraichissements pour être mise au goût du jour.

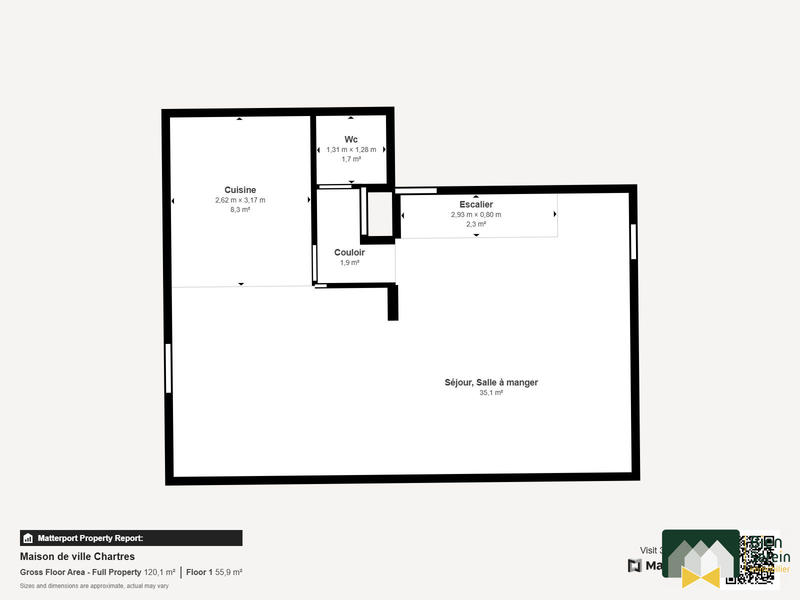
Découvrez au rez de chaussée :
- Entrée sur une vaste espace de vie de plus de 35 m² avec cheminée insert
- Une cuisine ouverte aménagée
- Un wc

A l'étage :
- Un palier
- Trois grandes chambres
- Une salle de bains
- Un wc indépendant
- Un espace dressing (possible buanderie)
- Un accès au grenier de stockage

Espace extérieur :
- Un jardin entièrement clos
- Un garage avec espace buanderie

Côté confort :
- Très bonne classification énergétique
- Rénovations récentes et prestations additionnelles : panneaux solaires, adoucisseur, ballon thermodynamique.
- Exposition Est - Ouest traversante

L'emplacement :
Située dans un quartier paisible, cette maison est proche de toutes commodités. À seulement 5 minutes à pied, vous trouverez une école primaire et un arrêt de bus, et à moins 5 minutes en voiture, vous trouverez collège et grandes surfaces.

N'hésitez pas à contacter votre agent au Noeud Pap' pour obtenir plus d'informations et visiter cette maison !

Honoraires à la charge du vendeur. Classe énergie C, Classe climat A Montant estimé des dépenses annuelles d'énergie pour un usage standard : entre 990.00 € et 1410.00 € sur les années 2021, 2022 et 2023 (abonnements compris). Les informations sur les risques auxquels ce bien est exposé sont disponibles sur le site Géorisques : georisques.gouv.fr.

Votre conseiller Bien Serein immobilier : Morgan GOHIER
Agent commercial (Entreprise individuelle)
RSAC 910254119

Afficher plus de détails

Informations sur ce bien :

L'intérieur :

  • 5 pièces
  • 92 m²
  • 3 Chambres
  • Cuisine américaine, équipée
    Informations complémentaires
    Américaine, équipée
  • 1 Salle de bain
  • 2 Toilettes
  • Séjour de 35 m²

L'extérieur :

  • Parking
  • Box

Les équipements :

  • Cheminée

Autres :

  • Chauffage :
    Électrique
  • Année de construction :
    1984
  • Exposition :
    Est, Ouest
Synthèse
Maison à Chartres
184 500 €
Surface : 92 m²
Prix au m² : 2 005 €
Transaction :
Achat
Référence :
608-BIENSEREIN28
Date de publication :
Il y a plus de 7 jours
Maison - 92 m² - 5 pièces
Performance énergétique
A
B
C
D
E
F
G
Gaz à effet de serre
A
B
C
D
E
F
G
Agent
Bien Serein immobilier
Morgan GOHIER
Appeler
Écrire
Mettre en avant cette annonce
Signaler une erreur

Localisation :

Performance énergétique :

Logement économe
A
B
C
133
kWh/m²/an
5
kg CO₂/m²/an
D
E
F
G
Logement énergivore
Faible émission de CO₂
A
5
kg CO₂/m²/an
B
C
D
E
F
G
Forte émission de CO₂
Date du diagnostic : 05 juin 2025
Estimation des coûts annuels d’énergie du logement : 990 € à 1 410 €
Annonces similaires
Annonces immobilières récentes