Local d'activité / Entrepôt - 141 m² à Charancieu
favoris
154 980 €
Description :
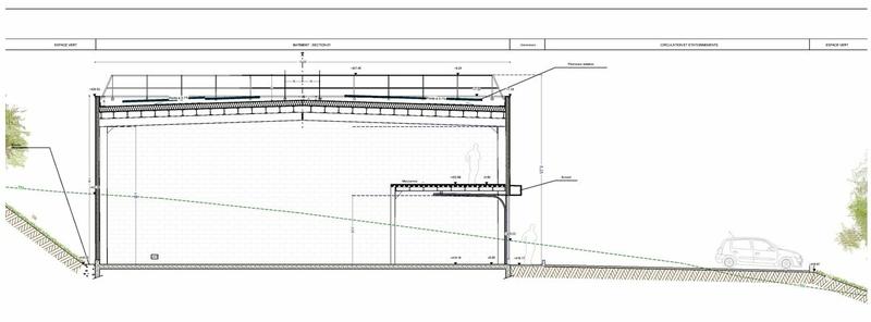
Programme neuf livraison prévue courant 2025 différents lots à partir de 141 m² dont 40 m² de mezzanine avec escalier en option - bâtiment entièrement isolé avec des hauteurs sous toiture de 6.30 à 6.40 m - sol béton charge lourde - livré brut fluides en attente - porte sectionnelle de 3.00 x 3.00 m (motorisation possible) - terrain bitumé - site clos avec portail sur horloge - implantation dans une zone artisanale proches des axes principaux et à 25 Kms de l'autoroute.
Afficher plus de détails
Informations sur ce bien :
L'intérieur :
-
141 m²Informations complémentairesSurface d'activité : 141 m²
Synthèse
Local d'activité / Entrepôt à Charancieu
154 980 €
Surface :
141 m²
Prix au m² :
1 099 €
Transaction :
Achat (professionnels)
Référence :
38_0317
Date de publication :
Il y a plus de 7 jours
Contacter l'annonceur
Agent
A-S CONSULTANTS
Loic FRANC
Mettre en avant cette annonce
Signaler une erreur
Localisation :
Vente de locaux d'activité et entrepôt à proximité
- 2 vente de locaux d'activité et entrepôt à Fitilieu (2.8 km)
- 3 vente de locaux d'activité et entrepôt à Granieu (8.4 km)
- 1 vente de local d'activité et entrepôt à Saint-Clair-de-la-Tour (9.5 km)
- 2 vente de locaux d'activité et entrepôt à Apprieu (15.2 km)
- 1 vente de local d'activité et entrepôt à Saint-Étienne-de-Crossey (17 km)
- 10 vente de locaux d'activité et entrepôt à Voiron (18 km)
- 2 vente de locaux d'activité et entrepôt à Coublevie (19 km)
- 4 vente de locaux d'activité et entrepôt à Renage (22.5 km)
- 7 vente de locaux d'activité et entrepôt à Mottier (23.8 km)