• Immeuble - 437 m² - 4 pièces
  • Immeuble - 437 m² - 4 pièces
  • Immeuble - 437 m² - 4 pièces
  • Immeuble - 437 m² - 4 pièces
  • Immeuble - 437 m² - 4 pièces
  • Immeuble - 437 m² - 4 pièces
  • Immeuble - 437 m² - 4 pièces
  • Immeuble - 437 m² - 4 pièces
  • Immeuble - 437 m² - 4 pièces
  • Immeuble - 437 m² - 4 pièces
  • Immeuble - 437 m² - 4 pièces
  • Immeuble - 437 m² - 4 pièces
  • Immeuble - 437 m² - 4 pièces
  • Immeuble - 437 m² - 4 pièces
  • Immeuble - 437 m² - 4 pièces
397 000 €
437 m²
4 pièces

Description :

Cet ensemble immobilier de 437 m2 sur un terrain de 808 m2 est idéal un investisseur. Revenu locatif au total : 2370€/mois soit 28440€/an.

Il comprend :
* 2 grands appartements
* un local commercial donnant sur une rue passante
* une cuisine et bureau attenants
* des locaux de travail
* Garage avec places de parking
* un grenier aménageable.

Voici le bien en détails :
* Au rez-de-chaussée côté rue, local commercial de 41 m2, avec cuisine et bureau attenants de 31 m2, cave, débarras.
Loué actuellement 600 € loyer hors charge +40 € de charges (Provision électricité et TF en sus)

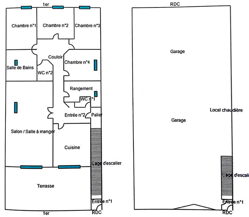
* Au premier étage, T4 de 109 m2. avec 2 chambres, un bureau, buanderie, salle d'eau et WC séparés, entrée indépendante.
Loué actuellement 650 €(+40 €de charges) avec une place de parking dans le garage

* Dans un autre bâtiment au 1er étage (au-dessus du garage), T7 de 160 m2, vide, 4 chambres, cuisine équipée, salon salle à manger de 48 m2, buanderie, salle de bain avec douche et baignoire, 2 WC séparés, terrasse de 45 m2, entrée indépendante
Loué actuellement 1000€ (+40€ de charges) avec une place de parking dans le garage

*Garage de 170 m2, hauteur de 4m avec des places de parking louées aux locataires en place

*Locaux de travail de 97 m2 (4 pièces) actuellement vacants, pouvant être transformés en logement suivant le projet.

Chauffage gaz -DPE COLLECTIF A L'IMMEUBLE CLASSÉ EN D Les honoraires sont à la charge du vendeur.
Les informations sur les risques auxquels ce bien est exposé sont disponibles sur le site Géorisques : www. georisques. gouv. fr.

Réseau Immobilier CAPIFRANCE - Votre agent commercial (RSAC N°845 056 266 - Greffe de BELFORT) Rachel TOSNEY Entrepreneur Individuel à Responsabilité Limitée 06 21 01 79 12 - Réf.937571

Afficher plus de détails

Informations sur ce bien :

L'intérieur :

  • 4 pièces
  • 437 m²

L'extérieur :

  • 2 Parkings
    Informations complémentaires
    Extérieur

Autres :

  • Vue :
    Vue sur Ville

Copropriété :

  • Taxe foncière :
    3 413 €
Synthèse
Immeuble à Champagney
397 000 €
Surface : 437 m²
Prix au m² : 908 €
Transaction :
Achat
Référence :
340934911370
Mandat :
Exclusif
Date de publication :
Il y a plus de 7 jours
Immeuble - 437 m² - 4 pièces
Performance énergétique
A
B
C
D
E
F
G
Gaz à effet de serre
A
B
C
D
E
F
G
Agent
CAPIFRANCE
CAPIFRANCE
Madame Rachel TOSNEY
Appeler
Écrire
Mettre en avant cette annonce
Signaler une erreur

Localisation :

L'adresse exacte n'est pas renseignée. Le bien se situe dans cette zone.

Performance énergétique :

Logement économe
A
B
C
D
164
kWh/m²/an
40
kg CO₂/m²/an
E
F
G
Logement énergivore
Faible émission de CO₂
A
B
C
D
40
kg CO₂/m²/an
E
F
G
Forte émission de CO₂
Date du diagnostic : 21 janvier 2026
Annonces similaires
Annonces immobilières récentes