• Terrain - 788 m²
  • Terrain - 788 m²
  • Terrain - 788 m²
  • Terrain - 788 m²
  • Terrain - 788 m²
  • Terrain - 788 m²
  • Terrain - 788 m²
  • Terrain - 788 m²
  • Terrain - 788 m²
70 000 €
788 m²

Description :

Terrains constructibles à Chambéon - Un cadre de vie idéal pour votre futur projet !

Vous rêvez de construire votre maison dans un environnement calme et verdoyant ? L'agence Pompel Immobilier et Kévin POYET vous proposent de découvrir nos terrains en construction libre situés sur la magnifique commune de Chambéon, offrant un cadre de vie agréable, proche des commodités, de l'école et à seulement 3 minutes de l'accès autoroutier.

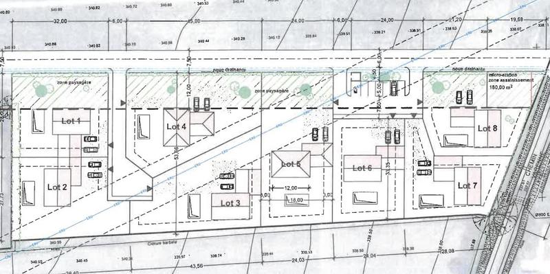
Les lots disponibles (sous réserve des dernières réservations) :

-Lot 1 : 907 m² (523 m² constructibles) VENDU
-Lot 2 : 948 m² (497 m² constructibles)
-Lot 3 : 1 029 m² (613 m² constructibles) VENDU
-Lot 4 : 1 244 m² (474 m² constructibles)
-Lot 5 : 1 233 m² (969 m² constructibles)
-Lot 6 : 837 m² (833 m² constructibles) VENDU
-Lot 7 : 788 m² constructibles VENDU
-Lot 8 : 790 m² (533 m² constructibles) SOUS OPTION

Pourquoi choisir Chambéon ?

Construction libre : Donnez vie à votre projet selon vos envies.

Emplacement stratégique : Proximité des services, écoles et axes routiers.

Environnement paisible : Un cadre de vie préservé et agréable.

À partir de 70 000 €

Ne tardez pas, certains lots sont déjà réservés ! Contactez-nous dès maintenant pour plus d'informations et réservez votre terrain avant qu'il ne soit trop tard.

Mentions légales: Les informations sur les risques auxquels les biens sont exposés sont disponibles sur le site Géorisques: www.georisques.gouv.fr, les honoraires sont à la charge du vendeur, notre barème est consultable sur notre site. KEVIN POYET votre conseiller immobilier Indépendant (R.S.A.C. de SAINT ETIENNE N° 879980050)

Honoraires à la charge du vendeur. Les informations sur les risques auxquels ce bien est exposé sont disponibles sur le site Géorisques : georisques.gouv.fr.

Afficher plus de détails

Informations sur ce bien :

L'intérieur :

  • 788 m²

L'extérieur :

  • Parking

Terrain :

  • Viabilisé :
    Non
Synthèse
Terrain à Chambéon
70 000 €
Surface : 788 m²
Prix au m² : 89 €
Transaction :
Achat
Référence :
VT064-JOURJON
Date de publication :
Il y a plus de 7 jours
Terrain - 788 m²
Agent
JOURJON IMMOBILIER
Kévin POYET
Appeler
Écrire
Mettre en avant cette annonce
Signaler une erreur

Localisation :

L'adresse exacte n'est pas renseignée. Le bien se situe dans cette zone.
Annonces similaires
Annonces immobilières récentes