Maison - 101 m² - 5 pièces à Chaingy

favoris
  • Maison - 101 m² - 5 pièces
  • Maison - 101 m² - 5 pièces
  • Maison - 101 m² - 5 pièces
  • Maison - 101 m² - 5 pièces
  • Maison - 101 m² - 5 pièces
  • Maison - 101 m² - 5 pièces
  • Maison - 101 m² - 5 pièces
  • Maison - 101 m² - 5 pièces
  • Maison - 101 m² - 5 pièces
  • Maison - 101 m² - 5 pièces
  • Maison - 101 m² - 5 pièces
  • Maison - 101 m² - 5 pièces
  • Maison - 101 m² - 5 pièces
  • Maison - 101 m² - 5 pièces
  • Maison - 101 m² - 5 pièces
232 000 €
101 m²
5 pièces
4 chambres

Description :

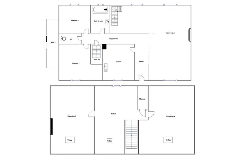
Située dans un environnement paisible, venez découvrir cette maison d'environ 100m² habitable sur sous-sol complet.

Elle se compose d'une entrée donnant sur une pièce de vie avec cheminée traversante d'environ 30m², avec accès à la terrasse et au jardin.
Une cuisine individuelle, une première chambre, un bureau/dressing, une salle de bains et un W.C complètent le rez-de-chaussée.
À l'étage, un palier actuellement aménagé en bureau dessert deux belles chambres de plus de 15m².

Le sous-sol, complet, se compose d'une partie garage, buanderie, atelier et cave.

À l'extérieur, vous profiterez d'un agréable terrain de 613m² sur lequel se trouve un abri de jardin et un bûcher.

Vous trouverez en annonce des propositions d'aménagement de certaines pièces ainsi que les plans de la maison.

Pour en savoir plus ou visiter, contactez votre conseiller via les coordonnées se trouvant en dernière photo de l'annonce.

Honoraires inclus de 4.5% TTC à la charge de l'acquéreur. Prix hors honoraires 222 000 €. Classe énergie D, Classe climat B Montant estimé des dépenses annuelles d'énergie pour un usage standard : entre 1917.00 € et 2594.00 € sur les années 2021, 2022 et 2023 (abonnements compris). Les informations sur les risques auxquels ce bien est exposé sont disponibles sur le site Géorisques : georisques.gouv.fr.

Votre conseiller IMMODREAM : Damien LERICOLAIS
Agent commercial (Entreprise individuelle)
RCP SEGAP LLOYD'S

Afficher plus de détails

Informations sur ce bien :

L'intérieur :

  • 5 pièces
  • 101 m²
  • 4 Chambres
  • Cuisine séparée, équipée
    Informations complémentaires
    Séparée, équipée
  • 1 Salle de bain
  • 1 Toilette
  • Séjour de 35 m²

L'extérieur :

  • Terrasse
  • 2 Parkings
  • 2 Box

Autres :

  • Chauffage :
    Individuel
  • Année de construction :
    1980
Synthèse
Maison à Chaingy
232 000 €
Surface : 101 m²
Prix au m² : 2 297 €
Transaction :
Achat
Référence :
VM5535-IMMODREAM
Date de publication :
Aujourd'hui à 05:46
Maison - 101 m² - 5 pièces
Performance énergétique
A
B
C
D
E
F
G
Gaz à effet de serre
A
B
C
D
E
F
G
Agent
IMMODREAM
Damien LERICOLAIS
Appeler
Écrire
Mettre en avant cette annonce
Signaler une erreur

Localisation :

L'adresse exacte n'est pas renseignée. Le bien se situe dans cette zone.

Performance énergétique :

Logement économe
A
B
C
D
234
kWh/m²/an
8
kg CO₂/m²/an
E
F
G
Logement énergivore
Faible émission de CO₂
A
B
8
kg CO₂/m²/an
C
D
E
F
G
Forte émission de CO₂
Date du diagnostic : 02 mars 2026
Estimation des coûts annuels d’énergie du logement : 1 917 € à 2 594 €
Annonces similaires
Annonces immobilières récentes