• Terrain - 1 425 m²
  • Terrain - 1 425 m²
  • Terrain - 1 425 m²
  • Terrain - 1 425 m²
65 000 €
1 425 m²

Description :

A Castellane, dans un quartier calme, proche de la nature, saisissez une belle opportunité de construire votre maison sur un terrain plat ayant toutes les viabilités en bordure de terrain.
Vous bénéficierez d'une surface de 1425m2 et 1 263 m2 pour édifier votre chez-soi (parcelle D2593). Vous bénéficiez d'une belle exposition Sud.
Le centre ville est à proximité et accessible à pied : 5-10mn dans le quartier Notre Dame à quelques minutes du gymnase.
Castellane est LA commune aux Portes des Gorges du Verdon et vous propose toutes les activités pour résider à l'année ou profiter en résidence secondaire des nombreuses activités de pleine nature du Parc du Verdon.
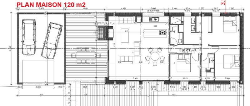
Un permis de construire pour une maison de 120m2 est en cours de validité sur ce terrain (4 chambres, garage). De petites modifications peuvent être envisagées.
Les viabilités sont en bord de terrain.
La construction sera à démarrer dans le délai du permis de construire soit avant le 26/10/2027.
Un dépôt de permis de construire différent est envisageable mais avec des impératifs liés au statut du terrain (détails sur demande).

Afficher plus de détails

Informations sur ce bien :

L'intérieur :

  • 1 425 m²
  • Sans cuisine
    Informations complémentaires
    Sans cuisine

L'extérieur :

  • Parking

Autres :

  • Étage :
    RDC

Terrain :

  • Viabilisé :
    Non
Synthèse
Terrain à Castellane
65 000 €
Surface : 1 425 m²
Prix au m² : 46 €
Transaction :
Achat
Référence :
127
Date de publication :
Il y a plus de 7 jours
Terrain - 1 425 m²
Agent
INTENDANCE ET SERVICES IMMOBILIERS
INTENDANCE ET SERVICES IMMOBILIERS
Appeler
Écrire
Mettre en avant cette annonce
Signaler une erreur

Localisation :

L'adresse exacte n'est pas renseignée. Le bien se situe dans cette zone.
Annonces similaires
Annonces immobilières récentes