• Appartement - 41 m² - 2 pièces
  • Appartement - 41 m² - 2 pièces
  • Appartement - 41 m² - 2 pièces
  • Appartement - 41 m² - 2 pièces
211 000 €
41 m²
2 pièces

Description :

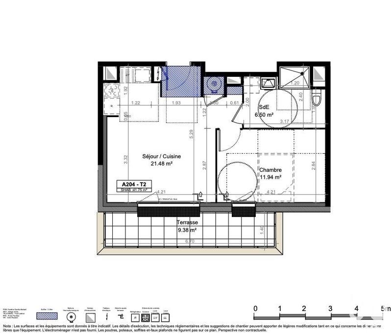
Iad France - Benoit Loisel (07 45 10 04 04) vous propose : Découvrez ce magnifique appartement T2 de 42 m² environ Situé au cOEur d'une résidence moderne, confortable et lumineuse en plein centre-ville. À seulement 100 mètres de la mairie, dans un nouveau quartier dynamique offrant commerces et services à proximité. Situé au 2ème étage il se compose d’une entrée, une chambre, une salle d'eau, un séjour / cuisine et une terrasse de 9 m² environ. Prestations de qualité : •Accès sécurisé par visiophone •Isolation renforcée pour un confort optimal •Volets roulants motorisés •Hall d'entrée décoré et sécurisé •Parking sous-sol avec portail électrique à télécommande •Parking aérien avec barrière levante à télécommande •Eau chaude sanitaire ballon thermodynamique •Chauffage électrique panneaux rayonnants Avantages supplémentaires : •Bâtiment économe en énergie (norme RE 2020 - seuil 2025) •Éligible au Prêt à Taux Zéro et au dispositif Loi Pinel •Résidence avec jardins privatifs pour les logements en rez-de-chaussée •Local à vélos Livraison 4ème trimestre 2026 Ne manquez pas cette opportunité d'acquérir un appartement alliant confort moderne et emplacement idéal. D'autres appartements sont également disponibles dans cette résidence. Pour plus d'informations ou pour organiser une visite, n'hésitez pas à me contacter. Honoraires d’agence à la charge du vendeur. Bien non soumis au DPE. Les informations sur les risques auxquels ce bien est exposé sont disponibles sur le site Géorisques : www.georisques.gouv.fr. La présente annonce immobilière a été rédigée sous la responsabilité éditoriale de M. Benoit Loisel EI (ID 77566), mandataire indépendant en immobilier (sans détention de fonds), agent commercial de la SAS I@D France immatriculé au RSAC de CAEN sous le numéro 951884220, titulaire de la carte de démarchage immobilier pour le compte de la société I@D France SAS. Retrouvez tous nos biens sur notre site internet. www.iadfrance.fr.

Afficher plus de détails

Informations sur ce bien :

L'intérieur :

  • 2 pièces
  • 41 m²
    Informations complémentaires
    Surface habitable : 41 m²
  • Cuisine

L'extérieur :

  • Terrasse
  • Parking

Les équipements :

  • Ascenseur
  • Interphone
  • Digicode

Autres :

  • Chauffage :
    Individuel, Radiateur, Électrique
  • Année de construction :
    2026
  • Mitoyenneté :
    Non
  • Étage :
    2nd étage
    Informations complémentaires
    Nombre d'étages de la construction : 3
Synthèse
Appartement à Carpiquet
211 000 €
Surface : 41 m²
Prix au m² : 5 146 €
Transaction :
Achat
Référence :
1707742
Date de publication :
Il y a plus de 7 jours
Appartement - 41 m² - 2 pièces
Agent
iad france
iad france
Benoit Loisel
Appeler
Écrire
Mettre en avant cette annonce
Signaler une erreur

Localisation :

L'adresse exacte n'est pas renseignée. Le bien se situe dans cette zone.
Annonces similaires
Annonces immobilières récentes