Terrain - 509 m² à Carnac
favoris
512 187 €
Description :
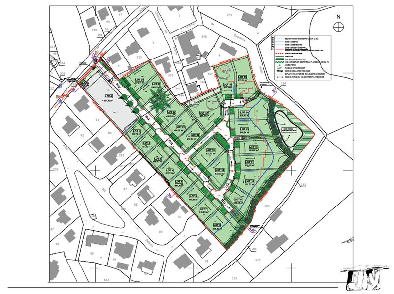
CARNAC très bien situé entre bourg et plages, Superbe terrain viabilisé à bâtir dans un environnement calme et recherché. D'une superficie de 509 m² vous pourrez réaliser la maison de vos rêves s'une surface plancher de 140 m² (hors garage cellier...). Au coeur d'une résidence sécurisée de 24 lots, terrains libre de constructeur. Livraison 06/2025 Contactez nous pour plus d'informations. Prix : 512187 euros HAI euros ( 500 000 euros net vendeur - Hono charge acquéreur : 2.5%) Les informations sur les risques auxquels ce bien est exposé sont disponibles sur le site Géorisques : www.georisques.gouv.fr (2.44 % honoraires TTC à la charge de l'acquéreur.)
Afficher plus de détails
Informations sur ce bien :
L'intérieur :
-
509 m²Informations complémentairesSurface habitable : 509 m²
Autres :
-
Nombre de niveaux :1
Terrain :
-
Viabilisé :Non
Synthèse
Terrain à Carnac
512 187 €
Surface :
509 m²
Prix au m² :
1 006 €
Transaction :
Achat
Référence :
2207-5
Date de publication :
Il y a plus de 7 jours
Contacter l'annonceur
Agent
Agence des Druides Carnac
Mettre en avant cette annonce
Signaler une erreur
Localisation :
L'adresse exacte n'est pas renseignée. Le bien se situe dans cette zone.
Ventes de terrains à proximité
- 2 ventes de terrains à La Trinité-sur-Mer (3.8 km)
- 1 vente de terrain à Saint-Philibert (5.9 km)
- 4 ventes de terrains à Crach (6.8 km)
- 2 ventes de terrains à Ploemel (7.4 km)
- 6 ventes de terrains à Saint-Pierre-Quiberon (8.2 km)
- 2 ventes de terrains à Erdeven (8.7 km)
- 8 ventes de terrains à Locmariaquer (10.1 km)
- 24 ventes de terrains à Auray (11.5 km)
- 4 ventes de terrains à Quiberon (11.8 km)