• Appartement - 41 m² - 2 pièces
  • Appartement - 41 m² - 2 pièces
  • Appartement - 41 m² - 2 pièces
52 900 €
41 m²
2 pièces
1 chambre

Description :

À Carcassonne, ce T2 de 41 m² vendu loué représente une excellente opportunité pour les investisseurs souhaitant bénéficier d'une rentabilité immédiate de plus de 10 % brut.

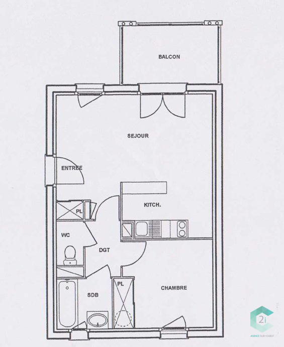
L'appartement se compose d'un séjour lumineux avec espace cuisine, d'une chambre avec placard, d'une salle de bains fonctionnelle et de WC séparés. Le bien est complété par une place de parking privative.

Le loyer mensuel est de 454,32 €, dont 61 € de provisions sur charges.
Les charges de copropriété s'élèvent à 1 109 € par an et la taxe foncière à 1 001 €, dont 138 € de TEOM.

Actuellement occupé, ce bien garantit un flux locatif immédiat et sécurisé. Bien entretenu, lumineux et fonctionnel, il est idéal pour un premier investissement ou pour compléter un patrimoine immobilier avec une rentabilité maîtrisée.

Le dossier complet et toutes les informations complémentaires sont disponibles sur demande.

Honoraires à la charge du vendeur. Dans une copropriété de 277 lots. Aucune procédure n'est en cours. DPE en cours. Les informations sur les risques auxquels ce bien est exposé sont disponibles sur le site Géorisques : georisques.gouv.fr.

Afficher plus de détails

Informations sur ce bien :

L'intérieur :

  • 2 pièces
  • 41 m²
  • 1 Chambre
  • 1 Salle de bain
  • 1 Toilette
  • Séjour de 21 m²

L'extérieur :

  • Balcon de 7 m²
  • Parking

Autres :

  • Étage :
    2nd étage (dernier)
    Informations complémentaires
    Nombre d'étages de la construction : 2

Copropriété :

  • Copropriété :
    Oui
  • Nombre de lots :
    277
Synthèse
Appartement à Carcassonne
52 900 €
Surface : 41 m²
Prix au m² : 1 290 €
Transaction :
Achat
Référence :
VA3260-C2ISUDOUEST2
Mandat :
Exclusif
Date de publication :
Aujourd'hui à 05:48
Appartement - 41 m² - 2 pièces
Performance énergétique
A
B
C
D
E
F
G
Gaz à effet de serre
A
B
C
D
E
F
G
Agent
C2i SUD OUEST
C2i SUD OUEST
Appeler
Écrire
Mettre en avant cette annonce
Signaler une erreur

Localisation :

L'adresse exacte n'est pas renseignée. Le bien se situe dans cette zone.

Performance énergétique :

Logement économe
A
B
C
180
kWh/m²/an
5
kg CO₂/m²/an
D
E
F
G
Logement énergivore
Faible émission de CO₂
A
5
kg CO₂/m²/an
B
C
D
E
F
G
Forte émission de CO₂
Annonces similaires
Annonces immobilières récentes