• Appartement - 44 m² - 2 pièces
  • Appartement - 44 m² - 2 pièces
  • Appartement - 44 m² - 2 pièces
  • Appartement - 44 m² - 2 pièces
  • Appartement - 44 m² - 2 pièces
  • Appartement - 44 m² - 2 pièces
  • Appartement - 44 m² - 2 pièces
210 000 €
44 m²
2 pièces
1 chambre

Description :

CANNES LA BOCCA, secteur Ranguin proche collège Gérard Philippe, au 1er étage avec ascenseur d'une résidence moderne et sécurisée de 2019. Au calme, expo Sud, pas de vis à vis.
Idéal premier achat, investissement locatif ou pied à terre !
Appartement 2 pièces de 44m2 avec terrasse et parking en souterrain.
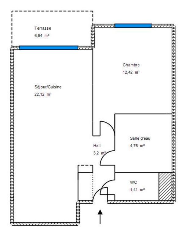
L'appartement se découpe de la manière suivante: un hall avec rangements, un séjour de 22m2 avec cuisine équipée, une terrasse couverte exposée Sud, une chambre de 12,5m2, et d'une salle d'eau, et WC individuel.
Appartement climatisé.
Nombre de lots de la copropriété : 32, Montant moyen annuel de la quote-part de charges (budget prévisionnel) : 1200€ soit 100€ par mois. Les honoraires sont à la charge du vendeur.
Les informations sur les risques auxquels ce bien est exposé sont disponibles sur le site Géorisques : www. georisques. gouv. fr.

Réseau Immobilier CAPIFRANCE - Votre agent commercial (RSAC N°440 891 729 - Greffe de GRASSE) Anthony TIBIER Entrepreneur Individuel à Responsabilité Limitée 06 76 72 19 61 - Réf.874125

Afficher plus de détails

Informations sur ce bien :

L'intérieur :

  • 2 pièces
  • 44 m²
    Informations complémentaires
    Surface habitable : 44 m²
  • 1 Chambre
  • 1 Salle d'eau
  • Séjour de 22 m²

L'extérieur :

  • Parking couvert
    Informations complémentaires
    Couvert

Autres :

  • Année de construction :
    2019
  • Étage :
    1er étage

Copropriété :

  • Copropriété :
    Oui
  • Nombre de lots :
    32
  • Charges annuelles :
    1 200 €
  • Taxe foncière :
    1 000 €
Synthèse
Appartement à Cannes
210 000 €
Surface : 44 m²
Prix au m² : 4 773 €
Transaction :
Achat
Référence :
340937511341
Date de publication :
Il y a plus de 7 jours
Appartement - 44 m² - 2 pièces
Performance énergétique
A
B
C
D
E
F
G
Gaz à effet de serre
A
B
C
D
E
F
G
Agent
CAPIFRANCE
CAPIFRANCE
Monsieur Anthony TIBIER
Appeler
Écrire
Mettre en avant cette annonce
Signaler une erreur

Localisation :

L'adresse exacte n'est pas renseignée. Le bien se situe dans cette zone.

Performance énergétique :

Logement économe
A
B
C
72
kWh/m²/an
12
kg CO₂/m²/an
D
E
F
G
Logement énergivore
Faible émission de CO₂
A
B
C
12
kg CO₂/m²/an
D
E
F
G
Forte émission de CO₂
Date du diagnostic : 18 septembre 2024
Annonces similaires
Annonces immobilières récentes