• Terrain - 1 160 m²
  • Terrain - 1 160 m²
  • Terrain - 1 160 m²
  • Terrain - 1 160 m²
  • Terrain - 1 160 m²
  • Terrain - 1 160 m²
85 040 €
1 160 m²

Description :

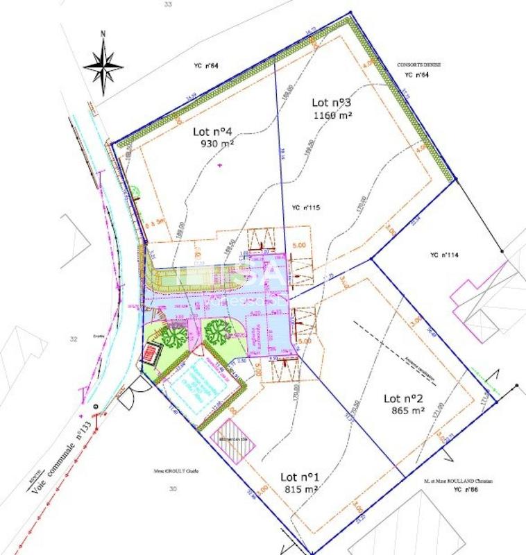
À Cahagnes, dans un petit lotissement calme de 4 lots, découvrez ce terrain constructible de 1160 m², plat, borné et viabilisé (eau et électricité). L'assainissement individuel reste à prévoir. Emplacement idéal : À 700 m des écoles À 1 km des commerces À proximité de l'axe Caen-Vire Environnement résidentiel, agréable et en plein développement. Parcelle orientée plein sud, sans vis-à-vis direct. Idéal pour maison individuelle ou projet familial. N'esitez pas à me contacter, je serais ravie de vous accompagner dans votre projet de construction Les informations sur les risques auxquels ce bien est exposé sont disponibles sur le site Géorisques : www.georisques.gouv.fr Prix de vente : 85 040 € Honoraires charge vendeur Contactez votre conseiller SAFTI : Vanessa SERRET, Tél. : 06 67 94 74 35, E-mail : vanessa.serret@safti.fr - EI - Agent commercial immatriculé au RSAC de Caen sous le numéro 518 565 445.

Afficher plus de détails

Informations sur ce bien :

L'intérieur :

  • 1 160 m²

Autres :

  • Mitoyenneté :
    Non

Terrain :

  • Viabilisé :
    Non
Synthèse
Terrain à Cahagnes
85 040 €
Surface : 1 160 m²
Prix au m² : 73 €
Transaction :
Achat
Référence :
1535724
Date de publication :
Il y a plus de 7 jours
Terrain - 1 160 m²
Agent
SAFTI
SAFTI
Vanessa SERRET
Appeler
Écrire
Mettre en avant cette annonce
Signaler une erreur

Localisation :

L'adresse exacte n'est pas renseignée. Le bien se situe dans cette zone.
Annonces similaires
Annonces immobilières récentes