• Local commercial - 283 m²
  • Local commercial - 283 m²
  • Local commercial - 283 m²
  • Local commercial - 283 m²
  • Local commercial - 283 m²
652 579 € HT
283 m²

Description :

Votre cabinet TH2 CONSEIL ET TRANSACTION GRAND OUEST vous propose :

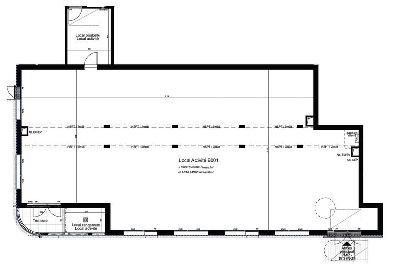
Un local commercial/bureau de 283,73m² en pied d'immeuble neuf situé à Mondeville au coeur de la zone commerciale de la Vallée Barrey. Très bonne visibilité.
Local livré brut de béton, fluides en attente - Aménagement libre selon vos besoins
Jardin privatif de 118m²

Accès facile : proximité bus, périphérique, autoroute
Emplacement stratégique : en pied d'immeuble d'habitation, flux de résidents et visiteurs
2 places de stationnement privatives / Local vélos commun
Accès PMR
ERP 5ème catégorie type W

Disponible janvier 2026

Prix de vente : 652 579€ HT
Honoraires en sus charge acquéreur : 5% HT
Frais d'acte réduits

TH2 Conseil et Transaction 06.61.52.64.68
Nous ne manquerons pas de vous donner plus d'informations concernant ce bien.

Dans une copropriété de 30 lots. Aucune procédure n'est en cours. Non soumis au DPE. Les informations sur les risques auxquels ce bien est exposé sont disponibles sur le site Géorisques : georisques.gouv.fr.

Votre conseiller TH2 C&T : Quentin LEGRAND
Agent commercial (Entreprise individuelle)
RSAC 829854124

Afficher plus de détails

Informations sur ce bien :

L'intérieur :

  • 283 m²

L'extérieur :

  • 2 Parkings

Les équipements :

  • Accès handicapé

Autres :

  • Année de construction :
    2025
  • Étage :
    RDC

Copropriété :

  • Copropriété :
    Oui
  • Nombre de lots :
    30
Synthèse
Local commercial à Caen
652 579 € HT
Surface : 283 m²
Prix au m² : 2 306 €
Transaction :
Achat (professionnels)
Référence :
VP407-TH2
Date de publication :
Il y a plus de 7 jours
Local commercial - 283 m²
Agent
TH2 CONSEIL ET TRANSACTION
TH2 CONSEIL ET TRANSACTION
Quentin LEGRAND
Appeler
Écrire
Mettre en avant cette annonce
Signaler une erreur

Localisation :

Performance énergétique :

Bien non soumis au Diagnostic de Performance Énergétique (DPE)

Annonces similaires
Annonces immobilières récentes