• Appartement - 47 m² - 2 pièces
  • Appartement - 47 m² - 2 pièces
  • Appartement - 47 m² - 2 pièces
252 000 €
47 m²
2 pièces
1 chambre

Description :

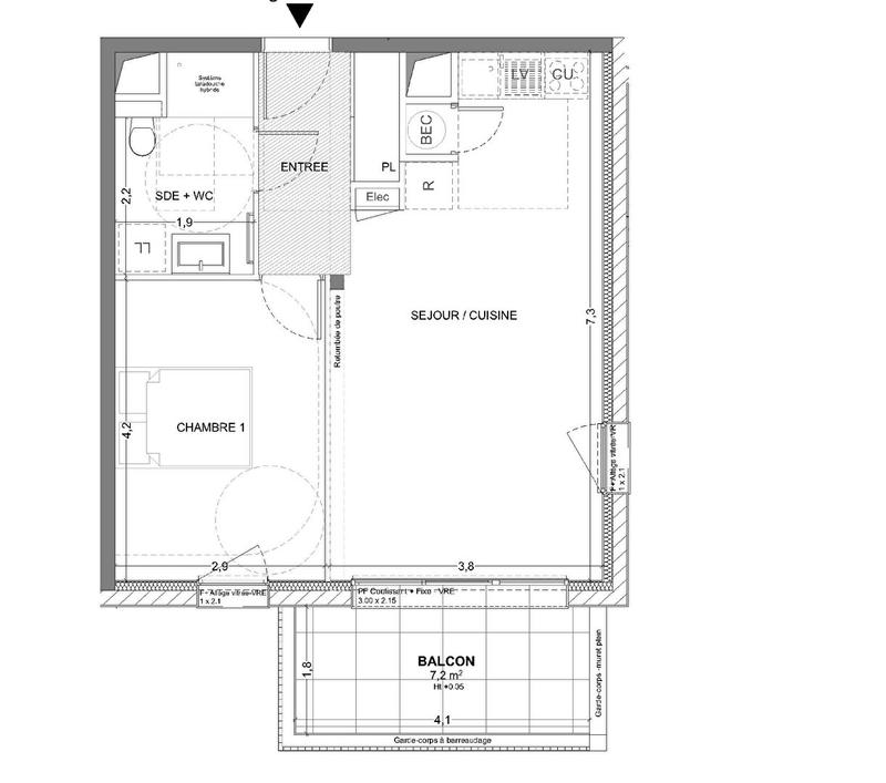
Bruz - Appartement 2 pièces 47.06m² Sud -1er étage - ascenseur - balcons 7.17m² - stationnement en sous-sol sécurisé. A 9 km de Rennes, au coeur d'un secteur recherché pour sa qualité de vie et sa proximité immédiate avec l'hyper-centre, découvrez cet appartement 2 pièces. Situé au premier étage d'une résidence contemporaine RE2020 avec ascenseur, ce bien allie design moderne, haute performance énergétique et confort de vie optimal. Offrant 47,06 m² parfaitement agencés et une exposition plein Sud, cet appartement séduit par son atmosphère lumineuse et son confort. Il se compose d'une entrée avec placard, d'un séjour lumineux avec cuisine ouverte, ouvert sur un balcon de 7,17 m², idéal pour profiter d'un extérieur ensoleillé. Une chambre agréable, une salle d'eau avec WC ainsi qu'un stationnement sécurisé en sous-sol complètent ce bien. Côté mobilité, l'emplacement est tout simplement exceptionnel : Rennes accessible en seulement 10 minutes grâce à la gare TER de Bruz, Réseau de bus STAR pour des déplacements quotidiens simplifiés, Aéroport Rennes Bretagne à proximité, un véritable atout pour voyager sereinement. Un appartement moderne et idéalement situé : une belle opportunité aux portes de Rennes. Prix promoteur - frais de notaire réduits, Les informations sur les risques auxquels ce bien est exposé sont disponibles sur le site Géorisques : www.georisques.gouv.fr. Copropriété de 39 lots - dont 17 lots habitation. (Pas de procédure en cours). Charges annuelles : 676 euros.

Afficher plus de détails

Informations sur ce bien :

L'intérieur :

  • 2 pièces
  • 47 m²
    Informations complémentaires
    Surface habitable : 47 m²
  • 1 Chambre
  • Cuisine ouverte
    Informations complémentaires
    Ouverte
  • 1 Salle d'eau
  • 1 Toilette

L'extérieur :

  • Balcon de 7 m²
  • Parking

Les équipements :

  • Ascenseur
  • Tout à l'égout

Autres :

  • Chauffage :
    Individuel, Radiateur
  • Exposition :
    Sud
  • Étage :
    1er étage
    Informations complémentaires
    Nombre d'étages de la construction : 2
  • Nombre de niveaux :
    1

Copropriété :

  • Copropriété :
    Oui
  • Nombre de lots :
    39
  • Charges annuelles :
    676 €
  • Procédure :
    Pas de procédure en cours
Synthèse
Appartement à Bruz
252 000 €
Surface : 47 m²
Prix au m² : 5 362 €
Transaction :
Achat
Référence :
6221-13
Date de publication :
Il y a plus de 7 jours
Appartement - 47 m² - 2 pièces
Agent
Cabinet Moraine Immobilier
Cabinet Moraine Immobilier
Appeler
Écrire
Mettre en avant cette annonce
Signaler une erreur

Localisation :

L'adresse exacte n'est pas renseignée. Le bien se situe dans cette zone.

Performance énergétique :

Bien non soumis au Diagnostic de Performance Énergétique (DPE)

Annonces similaires
Annonces immobilières récentes